Astora Art House

Eladó téglalakás
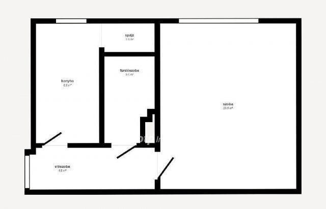
Nyíregyháza, földszint

+ 10 kép 1/13
36 500 000 Ft36.5 M Ft 986 486 Ft/m2
1 szoba
37 m2
földszint
építés éve:1980

Részletes adatok

Állapot: Átlagos
Fűtés: Gázkonvektor
Emelet: földszint
Energetikai besorolás: Nem adta meg a hirdető

Az OTP Bank lakáshitel ajánlataFizetett hirdetés

+36 20 468
Kissné Orosz Ildikó Krisztina
OTPIP Nyíregyháza Hunyadi u.

Érdekel az OTP Bank kedvezményes lakáshitel ajánlata? *

* A kérdésre „Igen” válasz bejelölése esetén, az „Üzenet küldése” gombra kattintva kijelentem, hogy az OTP Bank Nyrt. Adatkezelési tájékoztatójának tartalmát megismertem és tudomásul vettem.

Eladó téglalakás leírása

Nyíregyháza belvárosában, a Bessenyei tér kulturális negyedében eladó egy földszinti, 1 szobás, 37 nm-es tégla lakás.

Az ingatlan elhelyezkedése kiváló: a belváros szívében található, így minden fontos közintézmény, boltok, iskola, óvoda és a tömegközlekedés néhány perc sétával elérhető. A ház előtt szabadidőpark biztosít lehetőséget sportolásra és futásra.

A lakás fűtéséről gázkonvektor gondoskodik, elrendezése időseknek, egyedülállóknak és egyetemistáknak egyaránt ideális. Az ingatlan tehermentes és azonnal költözhető.

Kivételes elhelyezkedésének köszönhetően befektetésnek is remek választás.

OTP Banki hátterünknek köszönhetően finanszírozási igényekben (pl. Otthon Start Hitelprogram, Babaváró, Falusi CSOK, CSOK Plusz, Lakáshitel, Személyi kölcsön stb.), illetve biztosítások tekintetében is díjmentesen, soron kívüli ügyintézéssel segítem ügyfeleim! Referenciaszám: M310747

Hirdetés feltöltve: 2025. 11. 25. Utoljára módosítva: 2026. 01. 23.

1 szobás téglalakások ára Nyíregyházán

Ebből az összehasonlításból megtudhatod, hogyan viszonyul a lakás ára a környékbeli téglalakások átlagos árához. Ez nem azt jelenti, hogy ennyivel olcsóbb vagy drágább, mint amennyit a lakás ér, hanem hogy ennyivel tér el a környékbeli átlagtól.

Ennek a m² ára
Nyíregyháza m² ár
986 e Ft
1026 e Ft 4%
Ennek az ára
Nyíregyháza átlagár
36.5 M Ft m Ft
42.1 m Ft 13%

Az ingatlan elhelyezkedése

Cím: Nyíregyháza, földszint

Eladó téglalakások a környékről

Eladó téglalakás
Eladó téglalakás

Nyíregyháza

72.5 M Ft
3 + 1 szoba
170 m2
Eladó téglalakás
Eladó téglalakás

Nyíregyháza

53.7 M Ft
2 szoba
83 m2
Eladó téglalakás
Eladó téglalakás

Nyíregyháza, Örökösföld, Törzs utca 2

74.9 M Ft
3 szoba
75 m2
Eladó téglalakás
Eladó téglalakás

Nyíregyháza

53.7 M Ft
2 szoba
103 m2
Eladó téglalakás
Eladó téglalakás

Nyíregyháza

72.5 M Ft
3 + 1 szoba
170 m2
Eladó téglalakás
Eladó téglalakás

Nyíregyháza

55.5 M Ft
2 szoba
78 m2
Eladó téglalakás
Eladó téglalakás

Nyíregyháza

53.7 M Ft
2 szoba
103 m2
Eladó téglalakás
Eladó téglalakás

Nyíregyháza

43.5 M Ft
3 + 1 szoba
79 m2
Eladó téglalakás
Eladó téglalakás

Nyíregyháza

54.5 M Ft
3 szoba
67 m2
Eladó téglalakás
Eladó téglalakás

Nyíregyháza

49.7 M Ft
3 szoba
83 m2
Eladó téglalakás
Eladó téglalakás

Nyíregyháza

39.5 M Ft
2 + 2 szoba
79 m2
Eladó téglalakás
Eladó téglalakás

Nyíregyháza

36 M Ft
2 szoba
58 m2
Eladó téglalakás
Eladó téglalakás

Nyíregyháza

36 M Ft
2 szoba
58 m2
Eladó téglalakás
Eladó téglalakás

Nyíregyháza

53.7 M Ft
2 szoba
83 m2
Eladó téglalakás
Eladó téglalakás

Nyíregyháza

43.5 M Ft
3 + 1 szoba
79 m2
Eladó téglalakás
Eladó téglalakás

Nyíregyháza, Örökösföld, Törzs utca 2

74.9 M Ft
3 szoba
75 m2
Eladó téglalakás
Eladó téglalakás

Nyíregyháza

43.5 M Ft
3 + 1 szoba
79 m2
Eladó téglalakás
Eladó téglalakás

Nyíregyháza

77.5 M Ft
4 szoba
120 m2
Eladó téglalakás
Eladó téglalakás

Nyíregyháza

36 M Ft
2 szoba
58 m2
Eladó téglalakás
Eladó téglalakás

Nyíregyháza

37.5 M Ft
1 szoba
44 m2
Eladó téglalakás
Eladó téglalakás

Nyíregyháza

37.5 M Ft
1 szoba
44 m2
Eladó téglalakás
Eladó téglalakás

Kisvárda

54.2 M Ft
4 szoba
74 m2
Eladó téglalakás
Eladó téglalakás

Nyíregyháza

39.5 M Ft
2 + 2 szoba
79 m2
Eladó téglalakás
Eladó téglalakás

Nyíregyháza

104.9 M Ft
5 szoba
209 m2

Falusi CSOK ingatlanok

Eladó családi ház
Eladó családi ház

Hajmáskér

62.5 M Ft
3 szoba
85 m2
Eladó családi ház
Eladó családi ház

Balatonszárszó

178 M Ft
6 szoba
260 m2
Eladó családi ház
Eladó családi ház

Fülöpszállás

299 M Ft
14 + 5 szoba
680 m2
Eladó családi ház
Eladó családi ház

Halogy

6.9 M Ft
2 szoba
53 m2
Eladó családi ház
Eladó családi ház

Gersekarát

21.9 M Ft
3 szoba
80 m2
Eladó családi ház
Eladó családi ház

Nagytevel

41.9 M Ft
2 + 1 szoba
75 m2
Eladó családi ház
Eladó családi ház

Újlengyel

110 M Ft
4 szoba
121 m2
Eladó családi ház
Eladó családi ház

Mezőlak, Arany János utca

35.7 M Ft
3 szoba
104 m2