Astora Olive Club House

Eladó téglalakás
Nyíregyháza, 1. emelet

+ 10 kép 1/13
55 150 000 Ft55.15 M Ft 1 125 510 Ft/m2
1 szoba
49 m2
1. emelet
építés éve:2025

Részletes adatok

Fűtés: Gázkazán
Energetikai besorolás: Nem adta meg a hirdető

Az OTP Bank lakáshitel ajánlataFizetett hirdetés

+36 20 278
Elek Ágnes
referens

Érdekel az OTP Bank kedvezményes lakáshitel ajánlata? *

* A kérdésre „Igen” válasz bejelölése esetén, az „Üzenet küldése” gombra kattintva kijelentem, hogy az OTP Bank Nyrt. Adatkezelési tájékoztatójának tartalmát megismertem és tudomásul vettem.

Eladó téglalakás leírása

Nyíregyháza Belvárosában csendes utcában újépítésű 10 lakásos társasházban 1. emeleti és 2. emeleti lakások várják új tulajdonosukat! KEDVEZŐ ÁRON, KIVÁLÓ MINŐSÉGBEN!

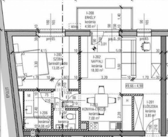
Nappali + 1 szobás lakások foglalhatóak!

Nyíregyháza Belvárosában, annak egyik legkedveltebb részén, csendes utcában eladásra kínálok, egy IGÉNYES MEGJELENÉSŰ, MINIMÁL STÍLUSÚ, 10 lakásos ÚJÉPÍTÉSŰ TÁRSASHÁZ, 1 . emeletén és 2. emeletén lévő nagy erkélyes vagy loggiás lakásokatt!

Az ingatlanok kelet-nyugat fekvésű, a kiváló elrendezésűek, TÖKÉLETES VÁLASZTÁS LEHET BEFEKTETŐK SZÁMÁRA IS! A jól átgondolt tervezésnek köszönhetően egy kiváló adottságokkal rendelkező, igényes, a mai kor igényeknek megfelelő társasház kerül megépítésre, melyben nappali + 1 szobás és loggiás vagy erkélyes 40-60 nm-es lakások találhatóak. Elhelyezkedése kiváló, a belváros gyalogosan könnyen megközelíthető. A tásasház belső udvarában lévő autóbeállók megvásárlásával lehetőség van az ingatlan területén parkolni, de lehetőség van garázs vásárlására is!

További jellemzők:

30-as tégla falazat, 15 cm homlokzati szigeteléssel
3 rétegű műanyag nyílászáró
gázcirkó fűtés padló és radiátor fűtéssel kombinálva
nagyméretű loggia és erkély
belső zárt udvarban autóbeálló vásárolható
várható átadás: 2026. I. negyedév
Társasházban található lakások:

1. emelet 1. lakás:

49,66 nm + 4,9 nm erkély Ára: 58.390.000 Ft

emelet 2. lakás
48,16 nm + 64,9 nm erkély Ára: 56.690.000 Ft

1. emelet 3. lakás:

46,39 nm + 4,9 nm erkély Ára: 54.790.000 Ft

1. emelet 4. lakás:

47,96 nm + 3,6 nm erkély Ára:55.790.000Ft

1. emelet 5. lakás:

47,3 nm + 3,6 nm erkély Ára:55.15.000 Ft

2. emelet 6. lakás:

49,66 nm + 4,9 nm erkély Ára: 58.390.000 Ft

2. emelet 7. lakás:

48,16 nm + 64,9 nm erkély Ára: 56.690.000 Ft

2. emelet 8. lakás:

46,39 nm + 4,9 nm erkély Ára: 54.790.000 Ft

2. emelet 9. lakás:

44,78 nm + 3,6 nm erkély Ára:52.290.000 Ft

2. emelet 10. lakás:

44,79 nm + 3,6 nm erkély Ára:52.290.000 Ft



Garázs vételára: 10.000.000 Ft

Autóbeálló vételára: 3.500.000 Ft

Ne hagyja ki ezt a remek lehetőséget, hívjon bizalommal! Amennyiben felkeltette érdeklődését a fenti ajánlat keressen bizalommal és tekintsük meg együtt ezt a REMEK elhelyezkedésű, Kiváló fekvésű és elrendezésű ingatlant!
Elek Ágnes- ingatlanszakértő, irodavezető +36202785838

Referencia szám: HK-5085071-ZE

Hirdetés feltöltve: 2025. 11. 14. Utoljára módosítva: 2025. 12. 02.

1 szobás téglalakások ára Nyíregyházán

Ebből az összehasonlításból megtudhatod, hogyan viszonyul a lakás ára a környékbeli téglalakások átlagos árához. Ez nem azt jelenti, hogy ennyivel olcsóbb vagy drágább, mint amennyit a lakás ér, hanem hogy ennyivel tér el a környékbeli átlagtól.

Ennek a m² ára
Nyíregyháza m² ár
1126 e Ft
1021 e Ft -10%
Ennek az ára
Nyíregyháza átlagár
55.15 M Ft m Ft
41.9 m Ft -32%

Az ingatlan elhelyezkedése

Cím: Nyíregyháza, 1. emelet

Eladó téglalakások a környékről

Eladó téglalakás
Eladó téglalakás

Nyíregyháza

40.5 M Ft
3 + 1 szoba
79 m2
Eladó téglalakás
Eladó téglalakás

Nyíregyháza

53.7 M Ft
2 szoba
83 m2
Eladó téglalakás
Eladó téglalakás

Nyíregyháza

72.5 M Ft
3 + 1 szoba
170 m2
Eladó téglalakás
Eladó téglalakás

Nyíregyháza

39.5 M Ft
2 + 2 szoba
79 m2
Eladó téglalakás
Eladó téglalakás

Nyíregyháza

46.5 M Ft
2 szoba
102 m2
Eladó téglalakás
Eladó téglalakás

Nyíregyháza, Örökösföld, Törzs utca 2

65.9 M Ft
3 szoba
71 m2
Eladó téglalakás
Eladó téglalakás

Nyíregyháza

99.9 M Ft
4 szoba
128 m2
Eladó téglalakás
Eladó téglalakás

Nyíregyháza

46.5 M Ft
2 szoba
102 m2
Eladó téglalakás
Eladó téglalakás

Nyíregyháza

53.7 M Ft
2 szoba
103 m2
Eladó téglalakás
Eladó téglalakás

Nyíregyháza

54.5 M Ft
2 + 1 szoba
67 m2
Eladó téglalakás
Eladó téglalakás

Nyíregyháza, Örökösföld, Törzs utca 2

74.9 M Ft
3 szoba
75 m2
Eladó téglalakás
Eladó téglalakás

Kisvárda

54.2 M Ft
4 szoba
74 m2
Eladó téglalakás
Eladó téglalakás

Nyíregyháza

40.5 M Ft
3 + 1 szoba
79 m2
Eladó téglalakás
Eladó téglalakás

Nyíregyháza

55.5 M Ft
2 szoba
78 m2
Eladó téglalakás
Eladó téglalakás

Nyíregyháza

40.5 M Ft
3 + 1 szoba
79 m2
Eladó téglalakás
Eladó téglalakás

Nyíregyháza

54.5 M Ft
3 szoba
67 m2
Eladó téglalakás
Eladó téglalakás

Nyíregyháza

104.9 M Ft
5 szoba
209 m2
Eladó téglalakás
Eladó téglalakás

Nyíregyháza

104.9 M Ft
5 szoba
209 m2
Eladó téglalakás
Eladó téglalakás

Nyíregyháza

53.7 M Ft
2 szoba
83 m2
Eladó téglalakás
Eladó téglalakás

Nyíregyháza

39.5 M Ft
2 + 1 szoba
79 m2
Eladó téglalakás
Eladó téglalakás

Nyíregyháza

62.9 M Ft
2 + 2 szoba
130 m2
Eladó téglalakás
Eladó téglalakás

Nyíregyháza

55.5 M Ft
2 szoba
78 m2
Eladó téglalakás
Eladó téglalakás

Nyíregyháza

62.9 M Ft
2 + 2 szoba
130 m2
Eladó téglalakás
Eladó téglalakás

Nyíregyháza, Örökösföld, Törzs utca 2

74.9 M Ft
3 szoba
75 m2

Falusi CSOK ingatlanok

Eladó családi ház
Eladó családi ház

Magyarszék

48.5 M Ft
3 + 1 szoba
86 m2
Eladó családi ház
Eladó családi ház

Kunadacs

114.9 M Ft
4 szoba
174 m2
Eladó családi ház
Eladó családi ház

Devecser

42.9 M Ft
3 szoba
100 m2
Eladó családi ház
Eladó családi ház

Bakonya

38.5 M Ft
2 szoba
75 m2
Eladó sorház
Eladó sorház

Bokod

41.7 M Ft
2 szoba
52 m2
Eladó családi ház
Eladó családi ház

Berkesd

39.5 M Ft
5 szoba
175 m2
Eladó családi ház
Eladó családi ház

Törtel

74.9 M Ft
6 szoba
143 m2
Eladó családi ház
Eladó családi ház

Kétpó

14.9 M Ft
1 + 2 szoba
86 m2