Astora Márvány8

Eladó téglalakás
Levél, 1. emelet

1/2
52 980 000 Ft52.98 M Ft 1 018 846 Ft/m2
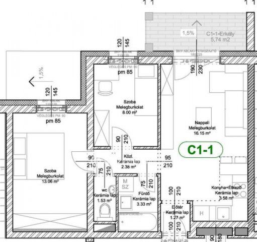
3 szoba
52 m²
1. emelet
építés éve:2025

Részletes adatok

Fűtés: Gázkazán
Emelet: 1. emelet
Komfort: Összkomfortos
Energetikai besorolás: Nem adta meg a hirdető

Az OTP Bank lakáshitel ajánlataFizetett hirdetés

+36 70 393
Tamásiné Hujber Margit
referens

Érdekel az OTP Bank kedvezményes lakáshitel ajánlata? *

* A kérdésre „Igen” válasz bejelölése esetén, az „Üzenet küldése” gombra kattintva kijelentem, hogy az OTP Bank Nyrt. Adatkezelési tájékoztatójának tartalmát megismertem és tudomásul vettem.

Eladó téglalakás leírása

Győr-Moson-Sopron vármegyében, Levélen, modern lakások átgondolt műszaki tartalommal, jó minőségű beépített anyagokkal, új építésű projektben leköthetők! Épületszerkezet: Monolit vasbeton vázszerkezet, falazata: Leiertherm 30 N+F tégla, válaszfalak 10cm-es hanggátló téglából készülnek. Homlokzati hőszigetelés 15 cm vastagságú Austrotherm Dryvit rendszerrel, zárófödém szigetelés AUSTROTHERM AT-N100 rendszer. Nyílászárók: 3 rétegű 5 légkamrás üvegezéssel ellátott. A földszinti lakások - szinte mindegyike - kizárólagos használatú kerttel, az emeleti lakások erkéllyel rendelkeznek. A lakásokhoz tároló, és parkoló igény szerint vásárolható. A fűtésről-melegvízellátásról központi turbó gázkazán gondoskodik, padlófűtéssel egyedi hőmennyiségmérővel. A feltöltött képek csak illusztrációk! Modern megoldásokkal és változatos alaprajzokkal várja Önt is leendő lakása. Nyugodt, zöld környezet,tágas, napfényes lakások-hozzátartozó teraszokkal, kertekkel, több éves tapasztalattal rendelkező kivitelező! Kiemelt bérbeadhatóság, garantált bérleti díj! Otthon start hitelprogram!
Amennyiben további kérdése van forduljon hozzám bizalommal elérhetőségeimen!

Az energetikai tanúsítvány készítése folyamatban van, amint rendelkezésre áll, úgy azzal a hirdetés frissítésre kerül.

Megtalálta álmai ingatlanát, de nem áll rendelkezésére a teljes vételár? Forduljon hozzám bizalommal ingatlanközvetítés és hitelmegoldások egy helyen, az OTP Bank szakmai hátterével! INGYENESEN ELŐSZŰRÉS! Gyorsított ügyintézéssel, személyesen, vagy akár telefonon keresztül, de igény esetén ügyfeleink otthonában, és banki nyitva tartáson túl is. További információért hívjon a megadott telefonszámon. Tel:70/393-4979

Referencia szám: M312822-ZE

Hirdetés feltöltve: 2026. 03. 21. Utoljára módosítva: 2026. 05. 27.

3 szobás téglalakások ára Levélen

Ebből az összehasonlításból megtudhatod, hogyan viszonyul a lakás ára a környékbeli téglalakások átlagos árához. Ez nem azt jelenti, hogy ennyivel olcsóbb vagy drágább, mint amennyit a lakás ér, hanem hogy ennyivel tér el a környékbeli átlagtól.

Ennek a m² ára
Levél m² ár
1019 e Ft
879 e Ft -16%
Ennek az ára
Levél átlagár
52.98 M Ft m Ft
54.2 m Ft 2%

Az ingatlan elhelyezkedése

Cím: Levél, 1. emelet

Eladó téglalakások a környékről

Nagycenk
Eladó téglalakás

Nagycenk

68.9 M Ft
1 + 2 szoba
62 m²
Sopron
Eladó téglalakás

Sopron

9.9 M Ft
320 m²
Győr
Eladó téglalakás

Győr

38.99 M Ft
2 szoba
43 m²
Levél, Napsugár
Eladó téglalakás

Levél

50.9 M Ft
2 szoba
46 m²
Levél
Eladó téglalakás

Levél

42.98 M Ft
2 szoba
41 m²
Levél
Eladó téglalakás

Levél

46.9 M Ft
2 szoba
46 m²
Győr
Eladó téglalakás

Győr

48.99 M Ft
3 szoba
57 m²
Levél
Eladó téglalakás

Levél

49.9 M Ft
43 m²
43 m²
Győr
Eladó téglalakás

Győr

82.6 M Ft
4 szoba
101 m²
Sopron, Gólya utca
Eladó téglalakás

Sopron

46.9 M Ft
2 szoba
44 m²
Levél, Napsugár
Eladó téglalakás

Levél

61.9 M Ft
3 szoba
60 m²
Levél
Eladó téglalakás

Levél

42.98 M Ft
2 szoba
41 m²
Levél
Eladó téglalakás

Levél

45.2 M Ft
2 szoba
46 m²
Levél
Eladó téglalakás

Levél

36.682 M Ft
1 szoba
30 m²
Győr
Eladó téglalakás

Győr

114 M Ft
4 szoba
94 m²
Nagycenk
Eladó téglalakás

Nagycenk

59.9 M Ft
1 + 2 szoba
54 m²
Győr
Eladó téglalakás

Győr

38.99 M Ft
2 szoba
43 m²
Sopron
Eladó téglalakás

Sopron

73.9 M Ft
2 szoba
49 m²
Győr
Eladó téglalakás

Győr

38.99 M Ft
2 szoba
46 m²
Levél
Eladó téglalakás

Levél

47.5 M Ft
2 szoba
46 m²
Győr, Sziget, Knézich utca
Eladó téglalakás

Győr

79 M Ft
3 szoba
98 m²
Győr
Eladó téglalakás

Győr

38.99 M Ft
2 szoba
46 m²
Győr
Eladó téglalakás

Győr

48.99 M Ft
3 szoba
57 m²
Hegyeshalom
Eladó téglalakás

Hegyeshalom

21.9 M Ft
63 m²

Falusi CSOK ingatlanok

Tokaj
Eladó családi ház

Tokaj

125 M Ft
9 szoba
230 m²
Ceglédbercel
Eladó családi ház

Ceglédbercel

64.99 M Ft
5 szoba
140 m²
Újlengyel
Eladó családi ház

Újlengyel

77.9 M Ft
4 szoba
0 m²
Hegyeshalom, Margaréta utca 12
Eladó téglalakás

Hegyeshalom

35.92 M Ft
1 szoba
31 m²
Nyáregyháza
Eladó ikerház

Nyáregyháza

75.9 M Ft
4 szoba
0 m²
Tápiógyörgye
Eladó családi ház

Tápiógyörgye

12 M Ft
2 szoba
89 m²
Nyáregyháza
Eladó ikerház

Nyáregyháza

75.9 M Ft
4 szoba
0 m²
Balatonszemes
Eladó téglalakás

Balatonszemes

125.2 M Ft
2 szoba
50 m²