Aerogate Homes

Eladó téglalakás
Győr, Révfalu, Szigethy A, 3. emelet

+ 13 kép 1/16
63 942 525 Ft63.943 M Ft 1 278 851 Ft/m2
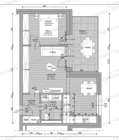
2 szoba
50 m²
3. emelet
építés éve:2026

Részletes adatok

Telekméret: 50 m2
Fűtés: Gázkazán
Emelet: 3. emelet
Parkolás: Garázs
Közmű: Víz, Gáz, Villany, Csatorna, Szélessáv
Komfort: Összkomfortos
Energetikai besorolás: A+

Az OTP Bank lakáshitel ajánlataFizetett hirdetés

+36 20 481
Hartmann-né Ildikó Viki
Dr. Fekete Ingatlan Iroda

Érdekel az OTP Bank kedvezményes lakáshitel ajánlata? *

* A kérdésre „Igen” válasz bejelölése esetén, az „Üzenet küldése” gombra kattintva kijelentem, hogy az OTP Bank Nyrt. Adatkezelési tájékoztatójának tartalmát megismertem és tudomásul vettem.

Eladó téglalakás leírása

Győr egyik legkeresettebb városrészében, Nádorváros dinamikusan fejlődő környezetében kínálunk megvételre egy új építésű, 15 lakásos társasházban kiváló adottságú lakásokat.
NE MARADJ LE! A lakások 30 %-a már elkelt.
A 3. emeleten elhelyezkedő, lakótér 45,4 nm-es lakás +10,23 nm erkélyes ingatlan tökéletes választás:
– első lakásnak,
– kiadásra (albérlet / rövid táv),
– vagy értékálló befektetésként.
Az A / A+ energetikai besorolás garantálja az alacsony fenntartási költségeket – ami ma már nem extra, hanem elvárás.Nagyszerű élhető tér – alacsony rezsi

2026.05.30-ig: - 2 M Ft kedvezmény a garázs árából, minden lakás mellé!

Műszaki tartalom – ami hosszú távon számít
3 rétegű hőszigetelt műanyag nyílászárók
Redőny előkészítés
20–30 cm vasbeton teherhordó szerkezet
20 cm kőzetgyapot homlokzati hőszigetelés
Intenzív zöldtető rendszer
Közösségi tetőterasz

Gépészet:
Központi gázkazán (2 db)
Padlófűtés – modern komfort
Elektromos törölközőszárító - kiállás
Klíma előkészítés - opcionális, külön fizetendő

Extra lehetőségek (limitált darabszám!)
– Mélygarázs beálló: 8,5 M Ft / db (16 db)
– Tároló (2–2,59 nm): 1,75 M Ft / db (6 db)

Átadás: Fűtéskész állapotban, tervezetten 2027-ben
Fűtéskész hirdetési ár, igény esetén kulcsrakész kivitelezéssel, egyedi ajánlat szerint.

Miért most érdemes lépned?
– Új építés → nincs felújítási kockázat
– Nádorváros → stabil, könnyen kiadható lokáció
– Kis méret → magas hozam, gyors bérbeadás
– Korai foglalás → jobb ár és választék
Ne csak gondolkodj rajta – foglald le most, és biztosítsd a helyed Győr egyik legígéretesebb projektjében!
A képek és látványtervek az értékesítést szolgálják, illusztrációk.
Mégtöbb ajánlat a drfeketeingatlanponthu oldalon.

Hirdetés feltöltve: 2026. 04. 08. Utoljára módosítva: 2026. 05. 12.

2 szobás téglalakások ára Győrött

Ebből az összehasonlításból megtudhatod, hogyan viszonyul a lakás ára a környékbeli téglalakások átlagos árához. Ez nem azt jelenti, hogy ennyivel olcsóbb vagy drágább, mint amennyit a lakás ér, hanem hogy ennyivel tér el a környékbeli átlagtól.

Ennek a m² ára
Révfalu m² ár
Győr m² ár
1279 e Ft
1063 e Ft -20%
1085 e Ft -18%
Ennek az ára
Révfalu átlagár
Győr átlagár
63.943 M Ft m Ft
111.1 m Ft 42%
55.7 m Ft -15%

Az ingatlan elhelyezkedése

Cím: Győr, Révfalu, Szigethy A, 3. emelet

Eladó téglalakások a környékről

Győr
Eladó téglalakás

Győr

56.9 M Ft
2 szoba
107 m²
Győr
Eladó téglalakás

Győr

89 M Ft
4 szoba
112 m²
Győr
Eladó téglalakás

Győr

45.99 M Ft
1 szoba
57 m²
Győr
Eladó téglalakás

Győr

38.99 M Ft
2 szoba
43 m²
Sopron
Eladó téglalakás

Sopron

9.9 M Ft
320 m²
Nagycenk
Eladó téglalakás

Nagycenk

68.9 M Ft
1 + 2 szoba
62 m²
Győr
Eladó téglalakás

Győr

38.99 M Ft
2 szoba
43 m²
Sopron
Eladó téglalakás

Sopron

73.9 M Ft
2 szoba
49 m²
Győr
Eladó téglalakás

Győr

89 M Ft
4 szoba
112 m²
Győr
Eladó téglalakás

Győr

54.99 M Ft
3 szoba
64 m²
Győr
Eladó téglalakás

Győr

38.99 M Ft
2 szoba
46 m²
Győr
Eladó téglalakás

Győr

72.25 M Ft
4 szoba
84 m²
Győr, Sziget, Knézich utca
Eladó téglalakás

Győr

79 M Ft
3 szoba
98 m²
Nagycenk
Eladó téglalakás

Nagycenk

59.9 M Ft
1 + 2 szoba
54 m²
Győr
Eladó téglalakás

Győr

130 M Ft
3 szoba
72 m²
Hegyeshalom
Eladó téglalakás

Hegyeshalom

21.9 M Ft
63 m²
Győr, Gyárváros, TT L7 40/36+5
Eladó téglalakás

Győr

47.99 M Ft
1 szoba
40 m²
Sopron
Eladó téglalakás

Sopron

109 M Ft
5 szoba
130 m²
Győr
Eladó téglalakás

Győr

199.99 M Ft
3 + 1 szoba
160 m²
Győr
Eladó téglalakás

Győr

89.9 M Ft
5 szoba
115 m²
Győr
Eladó téglalakás

Győr

54.99 M Ft
3 szoba
64 m²
Győr
Eladó téglalakás

Győr

38.99 M Ft
2 szoba
43 m²
Győr
Eladó téglalakás

Győr

38.99 M Ft
2 szoba
46 m²
Győr
Eladó téglalakás

Győr

82.6 M Ft
4 szoba
101 m²

Falusi CSOK ingatlanok

Hegyeshalom, Margaréta utca 12
Eladó téglalakás

Hegyeshalom

32.89 M Ft
1 szoba
27 m²
Kétegyháza
Eladó családi ház

Kétegyháza

21 M Ft
3 szoba
105 m²
Balinka, Petőfi S. utca 27
Eladó családi ház

Balinka

12.65 M Ft
1 + 2 szoba
79 m²
Hosszúpereszteg
Eladó családi ház

Hosszúpereszteg

27.9 M Ft
4 szoba
0 m²
Lovasberény
Eladó sorház

Lovasberény

78 M Ft
4 + 1 szoba
124 m²
Parád
Eladó családi ház

Parád

140 M Ft
4 szoba
200 m²
Zsámbok
Eladó családi ház

Zsámbok

30 M Ft
2 szoba
58 m²
Balatonszemes
Eladó téglalakás

Balatonszemes

119.9 M Ft
2 szoba
0 m²