Stay Family Park

Eladó téglalakás
Fonyód, 1. emelet

Figyelem!

Ez az ingatlan a 2019.07.01-től induló falusi CSOK által támogatott településen található

+ 8 kép 1/11
73 400 000 Ft73.4 M Ft 1 310 714 Ft/m2
2 szoba
56 m2
1. emelet
építés éve:2025

Részletes adatok

Telekméret: 56 m2
Fűtés: Egyéb
Közmű: Víz, Villany, Csatorna
Energetikai besorolás: Nem adta meg a hirdető

Az OTP Bank lakáshitel ajánlataFizetett hirdetés

+36 70 778
Szűcs Gergely
City Cartel, Siófok

Érdekel az OTP Bank kedvezményes lakáshitel ajánlata? *

* A kérdésre „Igen” válasz bejelölése esetén, az „Üzenet küldése” gombra kattintva kijelentem, hogy az OTP Bank Nyrt. Adatkezelési tájékoztatójának tartalmát megismertem és tudomásul vettem.

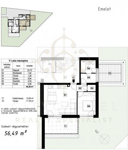
Eladó téglalakás leírása

Fonyód kedvelt, állandóan lakott részén ÚJ ÉPÍTÉSŰ első emeleti lakás eladó!

A City Cartel Ingatlaniroda eladásra kínál egy 56 m²-es, modern kialakítású lakást egy 4 lakásos, exkluzív társasházban. Az ingatlan jelenleg szerkezetkész, de kulcsrakész állapotban kerül átadásra, így még lehetőség van bizonyos belső kialakítások személyre szabására.

A lakás elosztása:

- gardrób

- tágas, amerikai konyhás nappali

- 1 hálószoba

- 1 kádas fürdőszoba Wc-vel

- 13 m²-es fedett és 11 m2-es nem fedett terasz, amely kiváló helyszín pihenéshez vagy vendégfogadáshoz

Műszaki tartalom:

- modern hőszivattyús rendszer

- padlófűtés

- mennyezeti hűtés-fűtés, a teljes lakás komfortos klímájáért

A Balaton partja kb. 2 km távolságra található, így a nyugalom és a tó közelségének tökéletes kombinációját kínálja.

Akció az előértékesítés keretében: AJÁNDÉK gépkocsibeálló!

Ideális választás állandó lakhatásra, nyaralónak vagy befektetésnek egyaránt.

További információkért írjon, vagy hívjon, a hét bármely napján az alábbi elérhetőségeim egyikén!

Irodáink:
8600 Siófok, Fő tér 6. (Sió Pláza -1. szint)
8640 Fonyód, Ady Endre u. 5. (Balaton Áruház földszint)
8638 Balatonlelle, Rákóczi út 276.

Kövess minket Facebook-on is: @citycartelbalaton!

Hirdetés feltöltve: 2025. 11. 26.

2 szobás téglalakások ára Fonyódon

Ebből az összehasonlításból megtudhatod, hogyan viszonyul a lakás ára a környékbeli téglalakások átlagos árához. Ez nem azt jelenti, hogy ennyivel olcsóbb vagy drágább, mint amennyit a lakás ér, hanem hogy ennyivel tér el a környékbeli átlagtól.

Ennek a m² ára
Fonyód m² ár
1311 e Ft
1314 e Ft 0%
Ennek az ára
Fonyód átlagár
73.4 M Ft m Ft
69.6 m Ft -5%

Az ingatlan elhelyezkedése

Cím: Fonyód, 1. emelet

Eladó téglalakások a környékről

Eladó téglalakás
Eladó téglalakás

Balatonfenyves

149 M Ft
2 szoba
59 m2
Eladó téglalakás
Eladó téglalakás

Balatonfenyves

218.75 M Ft
2 szoba
66 m2
Eladó téglalakás
Eladó téglalakás

Balatonfenyves

563.75 M Ft
4 szoba
114 m2
Eladó téglalakás
Eladó téglalakás

Fonyód

55 M Ft
3 szoba
85 m2
Eladó téglalakás
Eladó téglalakás

Fonyód

55 M Ft
3 szoba
85 m2
Eladó téglalakás
Eladó téglalakás

Fonyód

81.9 M Ft
5 szoba
141 m2
Eladó téglalakás
Eladó téglalakás

Balatonfenyves

135.05 M Ft
2 szoba
59 m2
Eladó téglalakás
Eladó téglalakás

Siófok

54.99 M Ft
1 szoba
41 m2
Eladó téglalakás
Eladó téglalakás

Fonyód

79.35 M Ft
2 szoba
53 m2
Eladó téglalakás
Eladó téglalakás

Fonyód

64 M Ft
4 + 1 szoba
120 m2
Eladó téglalakás
Eladó téglalakás

Siófok, Ezustparti utca

84.9 M Ft
3 szoba
58 m2
Eladó téglalakás
Eladó téglalakás

Fonyód

59.99 M Ft
2 szoba
46 m2
Eladó téglalakás
Eladó téglalakás

Balatonszemes, Ady E. utca 6

132.9 M Ft
3 szoba
62 m2
Eladó téglalakás
Eladó téglalakás

Fonyód

75.788 M Ft
3 szoba
51 m2
Eladó téglalakás
Eladó téglalakás

Fonyód

47.99 M Ft
1 szoba
27 m2
Eladó téglalakás
Eladó téglalakás

Balatonfenyves

79 M Ft
1 szoba
35 m2
Eladó téglalakás
Eladó téglalakás

Fonyód

99 M Ft
3 szoba
75 m2
Eladó téglalakás
Eladó téglalakás

Fonyód

101.54 M Ft
3 + 1 szoba
86 m2
Eladó téglalakás
Eladó téglalakás

Fonyód

52.417 M Ft
2 szoba
30 m2
Eladó téglalakás
Eladó téglalakás

Siófok, Ezustparti utca

86.9 M Ft
3 szoba
60 m2
Eladó téglalakás
Eladó téglalakás

Balatonfenyves

127.65 M Ft
2 szoba
51 m2
Eladó téglalakás
Eladó téglalakás

Fonyód

101.54 M Ft
3 + 1 szoba
86 m2
Eladó téglalakás
Eladó téglalakás

Siófok, Ezustparti utca

76.4 M Ft
3 szoba
58 m2
Eladó téglalakás
Eladó téglalakás

Siófok

49.9 M Ft
2 szoba
41 m2

Falusi CSOK ingatlanok

Eladó családi ház
Eladó családi ház

Uraiújfalu

15.9 M Ft
4 szoba
100 m2
Eladó családi ház
Eladó családi ház

Újlengyel

110 M Ft
4 szoba
121 m2
Eladó családi ház
Eladó családi ház

Ádánd

57.9 M Ft
5 szoba
190 m2
Eladó családi ház
Eladó családi ház

Simontornya

26 M Ft
3 szoba
60 m2
Eladó családi ház
Eladó családi ház

Nemesszentandrás

75 M Ft
4 szoba
164 m2
Eladó családi ház
Eladó családi ház

Ceglédbercel, Iskola utca

109 M Ft
5 szoba
133 m2
Eladó családi ház
Eladó családi ház

Bükkzsérc

42.5 M Ft
4 szoba
240 m2
Eladó családi ház
Eladó családi ház

Ádánd

53.5 M Ft
6 szoba
180 m2

Falusi CSOK ingatlanok

Eladó családi ház
Eladó családi ház

Gégény, Kossuth

15 M Ft
4 szoba
135 m2
Eladó családi ház
Eladó családi ház

Tiszajenő

25.9 M Ft
3 + 1 szoba
120 m2
Eladó családi ház
Eladó családi ház

Pécsvárad

140 M Ft
2 szoba
79 m2
Eladó családi ház
Eladó családi ház

Nagybörzsöny

36 M Ft
2 + 1 szoba
74 m2
Eladó családi ház
Eladó családi ház

Devecser

14.9 M Ft
2 + 1 szoba
77 m2
Eladó családi ház
Eladó családi ház

Devecser

18.9 M Ft
2 + 1 szoba
57 m2
Eladó családi ház
Eladó családi ház

Ónod, Barátság 9

31.999 M Ft
3 szoba
150 m2
Eladó családi ház
Eladó családi ház

Olaszfa

70.38 M Ft
3 szoba
139 m2