River Life

Eladó téglalakás
Budapest, XX. kerület, 1. emelet

56 900 000 Ft56.9 M Ft 1 161 224 Ft/m2
1 + 1 szoba
49 m²
1. emelet
építés éve:1980

Részletes adatok

Fűtés: Gázkazán
Emelet: 1. emelet
Közmű: Szélessáv
Energetikai besorolás: E

Az OTP Bank lakáshitel ajánlataFizetett hirdetés

+36 70 345
Hován Sándor
referens

Érdekel az OTP Bank kedvezményes lakáshitel ajánlata? *

* A kérdésre „Igen” válasz bejelölése esetén, az „Üzenet küldése” gombra kattintva kijelentem, hogy az OTP Bank Nyrt. Adatkezelési tájékoztatójának tartalmát megismertem és tudomásul vettem.

Eladó téglalakás leírása

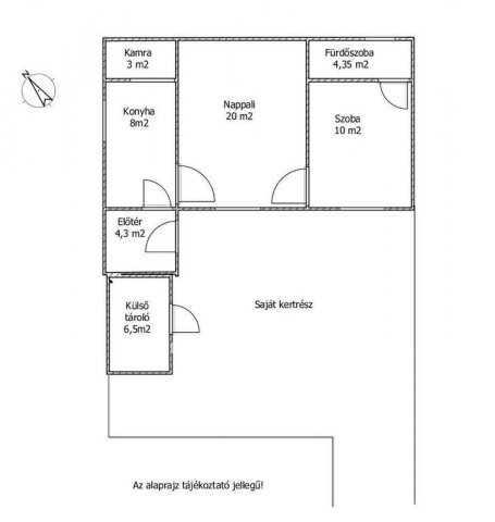
Eladó Budapest, XX., Pesterzsébet nagyon jó közlekedésű, kertvárosias részén br. 63, nettó 49 nm-es, másfél szobás, részben már felújított önálló kis ház. Az ingatlan saját, külön leválasztott bejárattal, kizárólagos használatú kertrésszel rendelkezik. Jelenleg osztatlan közös tulajdon még használati megállapodással, de tavaly júniusban már be lett adva a Földhivatalhoz a társasházzá való nyilvánítási kérelem, az albetétesítés. Felújításra és szigetelésre került a tető, a teljes villanyvezeték hálózat, a külső nyílászárók, belső melegburkolatok. A ház 10 cm-es dryvit szigetelést is kapott. A kert rendezett, új térburkolatos járda került kialakításra. A fürdőszoba még felújítandó - ez már az új tulajdonosra vár!
Kellemes otthon alakítható ki fiatalok, újrakezdők, kis családosok számára. A közelben, sétatávolságra kisboltok, piac, cukrászda, gyógyszertár, iskolák, ovi, bölcsi...
Kiváló közlekedéssel rendelkezik: az 52-es és 2B villamos közvetlen közelségben, a 36, 136, 123, 224, 224E, 966, és 923-as buszok pár perc sétával elérhetők.
Ügyfeleink számára teljes körű ügyintézéssel állunk rendelkezésre. Kínálatunkból választott ingatlan finanszírozásához kedvezményes hitelmegoldásokat kínálunk, illetve az adásvételi szerződés megkötéséhez megbízható ügyvédi közreműködést is tudunk biztosítani!
Ha hirdetésünk felkeltette érdeklődését, kérem hívjon bizalommal a hét bármely napján!

56900000 Ft

Referencia szám: M323895

Hirdetés feltöltve: 2026. 03. 17.

2 szobás téglalakások ára Budapesten

Ebből az összehasonlításból megtudhatod, hogyan viszonyul a lakás ára a környékbeli téglalakások átlagos árához. Ez nem azt jelenti, hogy ennyivel olcsóbb vagy drágább, mint amennyit a lakás ér, hanem hogy ennyivel tér el a környékbeli átlagtól.

Ennek a m² ára
XX. kerület m² ár
Budapest m² ár
1161 e Ft
1135 e Ft -2%
1688 e Ft 31%
Ennek az ára
XX. kerület átlagár
Budapest átlagár
56.9 M Ft m Ft
63 m Ft 10%
90.1 m Ft 37%

Az ingatlan elhelyezkedése

Cím: Budapest, XX. kerület, 1. emelet

Eladó ingatlanok a környékről

XX. kerület
Eladó téglalakás

Budapest, XX. kerület

73.5 M Ft
3 szoba
66 m²
XIII. kerület, Vizafogó, Turóc utca 10
Eladó téglalakás

Budapest, XIII. kerület

147.525 M Ft
3 szoba
64 m²
XX. kerület
Eladó téglalakás

Budapest, XX. kerület

45 M Ft
2 szoba
65 m²
VII. kerület
Eladó téglalakás

Budapest, VII. kerület

329.9 M Ft
4 szoba
112 m²
XX. kerület
Eladó téglalakás

Budapest, XX. kerület

85 M Ft
3 szoba
70 m²
XX. kerület
Eladó téglalakás

Budapest, XX. kerület

99.9 M Ft
659 m²
452 m²
XIII. kerület, Vizafogó, Turóc utca 10
Eladó téglalakás

Budapest, XIII. kerület

138.285 M Ft
3 szoba
64 m²
IX. kerület
Eladó téglalakás

Budapest, IX. kerület

55 M Ft
1 + 1 szoba
31 m²
XX. kerület
Eladó téglalakás

Budapest, XX. kerület

148 M Ft
4 szoba
126 m²
XX. kerület
Eladó téglalakás

Budapest, XX. kerület

85 M Ft
3 szoba
70 m²
XI. kerület, Sasad, Törökugrató utca
Eladó panellakás

Budapest, XI. kerület

110 M Ft
2 + 1 szoba
75 m²
XX. kerület
Eladó téglalakás

Budapest, XX. kerület

68 M Ft
3 szoba
61 m²
XX. kerület
Eladó téglalakás

Budapest, XX. kerület

71 M Ft
2 szoba
46 m²
XX. kerület
Eladó téglalakás

Budapest, XX. kerület

73 M Ft
3 szoba
67 m²
XX. kerület
Eladó téglalakás

Budapest, XX. kerület

79 M Ft
3 szoba
66 m²
XX. kerület, Pacsirtatelep
Eladó téglalakás

Budapest, XX. kerület

83.9 M Ft
3 szoba
100 m²
XIII. kerület, Vizafogó, Turóc utca 10
Eladó téglalakás

Budapest, XIII. kerület

150.57 M Ft
3 szoba
72 m²
XI. kerület, Kelenföld, Budafoki út 64
Eladó téglalakás

Budapest, XI. kerület

84.525 M Ft
2 szoba
41 m²
XIII. kerület, Vizafogó, Turóc utca 10
Eladó téglalakás

Budapest, XIII. kerület

145.11 M Ft
3 szoba
72 m²
XIII. kerület, Vizafogó, Turóc utca 10
Eladó téglalakás

Budapest, XIII. kerület

141.33 M Ft
3 szoba
71 m²
XIII. kerület, Vizafogó, Turóc utca 10
Eladó téglalakás

Budapest, XIII. kerület

133.98 M Ft
3 szoba
63 m²
XX. kerület
Eladó téglalakás

Budapest, XX. kerület

25.5 M Ft
1 szoba
25 m²
V. kerület, Belváros, Bástya utca
Eladó téglalakás

Budapest, V. kerület

139 M Ft
2 + 1 szoba
71 m²
XXIII. kerület
Eladó családi ház

Budapest, XXIII. kerület

32 M Ft
2 szoba
55 m²

Falusi CSOK ingatlanok

Bácsbokod
Eladó családi ház

Bácsbokod

55 M Ft
6 szoba
250 m²
Kőtelek
Eladó családi ház

Kőtelek

25 M Ft
2 szoba
90 m²
Tabdi
Eladó családi ház

Tabdi

95 M Ft
45 szoba
1490 m²
Úri
Eladó családi ház

Úri

260 M Ft
7 szoba
300 m²
Újhartyán
Eladó családi ház

Újhartyán

79.9 M Ft
3 szoba
72 m²
Vásárosdombó
Eladó családi ház

Vásárosdombó

14.99 M Ft
2 szoba
69 m²
Letenye
Eladó családi ház

Letenye

46.5 M Ft
7 szoba
220 m²
Sajóvámos
Eladó családi ház

Sajóvámos

71.9 M Ft
3 szoba
120 m²