Stay Family Park

Eladó téglalakás
Budapest, XX. kerület, 9. emelet

+ 12 kép 1/15
65 000 000 Ft65 M Ft 1 274 510 Ft/m2
2 szoba
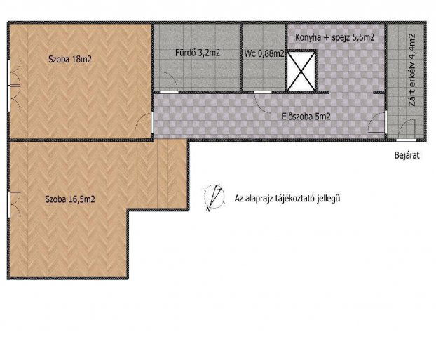
51 m2
9. emelet
építés éve:1987

Részletes adatok

Fűtés: Távfűtés
Extrák: Lift
Energetikai besorolás: Nem adta meg a hirdető

Az OTP Bank lakáshitel ajánlataFizetett hirdetés

+36 70 941
Terjék Nikolett Erzsébet
OTP Ingatlanpont Dunaharaszti

Érdekel az OTP Bank kedvezményes lakáshitel ajánlata? *

* A kérdésre „Igen” válasz bejelölése esetén, az „Üzenet küldése” gombra kattintva kijelentem, hogy az OTP Bank Nyrt. Adatkezelési tájékoztatójának tartalmát megismertem és tudomásul vettem.

Eladó téglalakás leírása

Eladó 2 szobás, felújított panellakás Budapest XX. kerületének szívében, 9. emelet, remek állapot, kiváló közlekedés!

Budapest XX. kerületének központi részén kínálunk megvételre egy 51 m2-es, 9. emeleti, 2 szobás, összkomfortos lakást, mely jó műszaki állapotban van. így akár azonnal költözhető, apró ráncfelvarrással, tisztasági festéssel.

Felújítások és műszaki jellemzők:
Hőszigetelt, új modern műanyag nyílászárók, és bejárati ajtó, új hideg- és meleg burkolatok a vizes helyiségekben és a szobákban egyaránt.

Alacsony költségű távfűtés, jól szabályozható, kiszámítható:

Közös költség 14.000Ft, Rezsi havi szinten kb 20.000 Ft, télen nyáron.

A lépcsőház rendezett, tiszta, az épületben 2 lift segíti a kényelmes közlekedést.

Környék és elhelyezkedés:

A lakás kiváló elhelyezkedésű:

Bevásárlási lehetőségek (kisboltok, szupermarketek, plázák) a közelben.
Óvoda, iskola, orvosi rendelő, patika gyalogosan elérhető.

Kiváló tömegközlekedés: több busz- és villamosjárat, gyors eljutás a belvárosba.

Autósok számára az autópályák könnyen elérhetők, így agglomerációs kapcsolat is kiváló.

Kinek ajánljuk:

Ez a lakás ideális választás lehet:

fiatal pároknak első lakásként, idősebbeknek, akik jó közlekedésű, mégis nyugodt otthont keresnek.

Befektetőknek, kiadásra, a felújítási igény hiánya miatt azonnal hasznosítható. Az OTP Bankcsoport teljes körű ügyintézéssel áll az eladók és a vevők rendelkezésére! A kínálatunkból választott ingatlan finanszírozásához kedvezményes hitelkonstrukciókat kínálunk. Az adásvételi szerződés megkötéséhez igény szerint megbízható ügyvédi közreműködést biztosítunk és segítséget nyújtunk az adásvételhez kapcsolódó ügyek intézéséhez. Referenciaszám: M315810

Hirdetés feltöltve: 2025. 11. 02. Utoljára módosítva: 2025. 12. 08.

2 szobás téglalakások ára Budapesten

Ebből az összehasonlításból megtudhatod, hogyan viszonyul a lakás ára a környékbeli téglalakások átlagos árához. Ez nem azt jelenti, hogy ennyivel olcsóbb vagy drágább, mint amennyit a lakás ér, hanem hogy ennyivel tér el a környékbeli átlagtól.

Ennek a m² ára
XX. kerület m² ár
Budapest m² ár
1275 e Ft
1148 e Ft -11%
1682 e Ft 24%
Ennek az ára
XX. kerület átlagár
Budapest átlagár
65 M Ft m Ft
64.2 m Ft -1%
90.8 m Ft 28%

Az ingatlan elhelyezkedése

Cím: Budapest, XX. kerület, 9. emelet

Eladó ingatlanok a környékről

Eladó téglalakás
Eladó téglalakás

XX. kerület

65.9 M Ft
3 szoba
48 m2
Eladó téglalakás
Eladó téglalakás

XX. kerület

79 M Ft
3 szoba
66 m2
Eladó téglalakás
Eladó téglalakás

VI. kerület, Külső Terézváros, Szófia utca

114.9 M Ft
4 szoba
103 m2
Eladó téglalakás
Eladó téglalakás

XX. kerület

85 M Ft
3 szoba
70 m2
Eladó téglalakás
Eladó téglalakás

VII. kerület, Belső Erzsébetváros, Erzsébet körút

160 M Ft
3 szoba
88 m2
Eladó panellakás
Eladó panellakás

XI. kerület

78 M Ft
2 szoba
48 m2
Eladó téglalakás
Eladó téglalakás

I. kerület, Krisztinaváros, Feszty Árpád utca

78.99 M Ft
1 szoba
28 m2
Eladó téglalakás
Eladó téglalakás

XX. kerület

65.9 M Ft
3 szoba
48 m2
Eladó téglalakás
Eladó téglalakás

XX. kerület, Kossuthfalva

56 M Ft
2 szoba
50 m2
Eladó téglalakás
Eladó téglalakás

XX. kerület

59.9 M Ft
3 szoba
76 m2
Eladó téglalakás
Eladó téglalakás

XX. kerület

34.9 M Ft
33 m2
Eladó téglalakás
Eladó téglalakás

IV. kerület, Újpest, Kassai utca

84.9 M Ft
2 + 1 szoba
71 m2
Eladó téglalakás
Eladó téglalakás

XX. kerület

44.9 M Ft
3 szoba
51 m2
Eladó téglalakás
Eladó téglalakás

XX. kerület

59.9 M Ft
3 szoba
76 m2
Eladó garázs
Eladó garázs

XIII. kerület

1.96 M Ft
4 m2
Eladó téglalakás
Eladó téglalakás

XI. kerület, Gellérthegy, Gombócz Zoltán utca

142 M Ft
2 + 1 szoba
71 m2
Eladó téglalakás
Eladó téglalakás

XX. kerület

59.9 M Ft
3 szoba
76 m2
Eladó téglalakás
Eladó téglalakás

XX. kerület

23 M Ft
1 szoba
32 m2
Eladó téglalakás
Eladó téglalakás

XI. kerület, Gellérthegy, Gyula utca

150 M Ft
2 szoba
56 m2
Eladó üzlethelyiség
Eladó üzlethelyiség

II. kerület, Országút, Margit körút

6.999 M Ft
5 m2
Eladó téglalakás
Eladó téglalakás

V. kerület, Belváros, Belgrád rakpart

78 M Ft
1 + 1 szoba
42 m2
Eladó téglalakás
Eladó téglalakás

XX. kerület

44.9 M Ft
3 szoba
51 m2
Eladó téglalakás
Eladó téglalakás

XIII. kerület, Angyalföld, Fiastyúk utca

39.9 M Ft
1 + 1 szoba
34 m2
Eladó téglalakás
Eladó téglalakás

XX. kerület

44.9 M Ft
3 szoba
51 m2

Falusi CSOK ingatlanok

Eladó családi ház
Eladó családi ház

Balatonfenyves

430 M Ft
4 szoba
274 m2
Eladó családi ház
Eladó családi ház

Rábaszentmihály

65 M Ft
3 szoba
156 m2
Eladó családi ház
Eladó családi ház

Tass

6.999 M Ft
1 szoba
40 m2
Eladó családi ház
Eladó családi ház

Sellye

14.9 M Ft
4 szoba
135 m2
Eladó téglalakás
Eladó téglalakás

Balatonszemes

125.2 M Ft
2 szoba
50 m2
Eladó családi ház
Eladó családi ház

Tiszaroff

12.5 M Ft
2 szoba
63 m2
Eladó téglalakás
Eladó téglalakás

Balatonszemes

119.9 M Ft
2 szoba
81 m2
Eladó ikerház
Eladó ikerház

Balatonakali

129 M Ft
4 szoba
145 m2