BAM Living

Eladó téglalakás
Budapest, XV. kerület, Rákospalota, 1. emelet

1/2
65 500 000 Ft65.5 M Ft 1 129 310 Ft/m2
2 szoba
58 m2
1. emelet
építés éve:2026

Részletes adatok

Fűtés: Egyéb
Emelet: 1. emelet
Energetikai besorolás: Nem adta meg a hirdető

Az OTP Bank lakáshitel ajánlataFizetett hirdetés

+36 1 230
Tecnocasa - Imobiliare Kft.
referens

Érdekel az OTP Bank kedvezményes lakáshitel ajánlata? *

* A kérdésre „Igen” válasz bejelölése esetén, az „Üzenet küldése” gombra kattintva kijelentem, hogy az OTP Bank Nyrt. Adatkezelési tájékoztatójának tartalmát megismertem és tudomásul vettem.

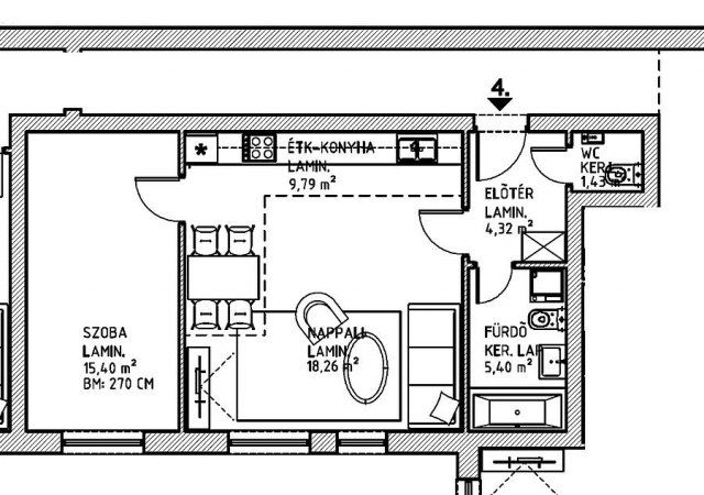
Eladó téglalakás leírása

XV. KERÜLETBEN: FREKVENTÁLT RÉSZEN, ELADÓ ÚJ ÉPÍTÉSŰ, 58 M2, AMERIKAI KONYHÁS NAPPALIS, 1 SZOBÁS, I.EMELETI TÁRSASHÁZI TÉGLALAKÁS.

A LAKÁS JELLEMZŐI:

A lakás várható átadási határideje 2026 év vége. A társasház 7 lakásos lesz, 3 szintes, 30-as porotherm téglából épül, amelyet egy 10 cm-es grafitos szigeteléssel is ellátnak majd.

A lakásban tágas amerikai konyhás nappali, 1 szoba, fürdőszoba, előszoba és mellékhelyiség kerül kialakításra.

A nyílászárók 6 légkamrás, 3 rétegű hőszigetelt ablakok lesznek. A fűtést kondenzációs kazán fogja biztosítani, a hideg burkolatok alatt padlófűtés kerül kialakításra, a szobákban pedig lapradiátorokat szerelnek fel és 1 hűtő-fűtő klímát.

Az ár tartalmazza a burkolatok, szerelvények és szaniterek beépítését, az anyag árat nem.

Igény esetén extra költséggel kérhető: elektromos redőny, kamera, riasztó, konyhabútor, beépített szekrények.

Lehetőség van plusz tároló (2.000.000 Ft/db), illetve udvari autóbeálló (2.500.000 Ft/db.) vásárlásához.

Referencia ingatlanok megtekintése is lehetséges.

FINANSZÍROZÁS:

Az ingatlan TEHERMENTES lesz, hitelre is megvásárolható. Bankfüggetlen tanácsadóink, az ország összes pénzintézete közül gyorsan és gördülékenyen találja meg az Önnek legmegfelelőbb konstrukciót, egyedi kedvezményekkel. A hitel közvetítés díjmentes.

Várjuk hívását munkanapokon 09:00-18:00 között.

A hirdetésben szereplő adatok tájékoztató jellegűek.

Amennyiben eladná saját ingatlanát, több mint 10 éve működő, kifejezetten a kerületre szakosodott irodánktól, INGYENES ÉRTÉKBECSLÉST kérhet.

Hirdetés feltöltve: 2025. 12. 13. Utoljára módosítva: 2026. 01. 13.

2 szobás téglalakások ára Budapesten

Ebből az összehasonlításból megtudhatod, hogyan viszonyul a lakás ára a környékbeli téglalakások átlagos árához. Ez nem azt jelenti, hogy ennyivel olcsóbb vagy drágább, mint amennyit a lakás ér, hanem hogy ennyivel tér el a környékbeli átlagtól.

Ennek a m² ára
Rákospalota m² ár
XV. kerület m² ár
Budapest m² ár
1129 e Ft
1306 e Ft 14%
1278 e Ft 12%
1698 e Ft 33%
Ennek az ára
Rákospalota átlagár
XV. kerület átlagár
Budapest átlagár
65.5 M Ft m Ft
78.8 m Ft 17%
78.6 m Ft 17%
90.6 m Ft 28%

Az ingatlan elhelyezkedése

Cím: Budapest, XV. kerület, Rákospalota, 1. emelet

Eladó ingatlanok a környékről

Eladó téglalakás
Eladó téglalakás

XI. kerület, Lágymányos, Móricz Zsigmond körtér

89.5 M Ft
2 szoba
52 m2
Eladó téglalakás
Eladó téglalakás

XV. kerület, Rákospalota

67 M Ft
2 szoba
72 m2
Eladó téglalakás
Eladó téglalakás

V. kerület, Belváros, Petőfi Sándor utca

134 M Ft
2 szoba
59 m2
Eladó téglalakás
Eladó téglalakás

VI. kerület, Belső Terézváros, Jókai utca

87.6 M Ft
3 szoba
75 m2
Eladó téglalakás
Eladó téglalakás

V. kerület, Belváros, Belgrád rakpart

78 M Ft
1 + 1 szoba
42 m2
Eladó téglalakás
Eladó téglalakás

IV. kerület, Újpest, Kassai utca

84.9 M Ft
2 + 1 szoba
71 m2
Eladó családi ház
Eladó családi ház

XXII. kerület, Budafok, Baross utca

222 M Ft
6 + 1 szoba
200 m2
Eladó téglalakás
Eladó téglalakás

VIII. kerület, Palotanegyed, Rákóczi út

185 M Ft
5 szoba
121 m2
Eladó téglalakás
Eladó téglalakás

XV. kerület

69.5 M Ft
2 szoba
45 m2
Eladó téglalakás
Eladó téglalakás

XV. kerület

96.649 M Ft
3 szoba
65 m2
Eladó téglalakás
Eladó téglalakás

VI. kerület, Külső Terézváros, Szófia utca

112.9 M Ft
4 szoba
103 m2
Eladó téglalakás
Eladó téglalakás

XI. kerület, Gellérthegy, Gyula utca

130 M Ft
2 szoba
56 m2
Eladó téglalakás
Eladó téglalakás

III. kerület, Óbuda, Szomolnok utca

89.9 M Ft
2 + 2 szoba
96 m2
Eladó téglalakás
Eladó téglalakás

XV. kerület

113 M Ft
3 szoba
76 m2
Eladó téglalakás
Eladó téglalakás

IV. kerület

87.5 M Ft
3 szoba
60 m2
Eladó téglalakás
Eladó téglalakás

VII. kerület, Belső Erzsébetváros, Erzsébet körút

160 M Ft
3 szoba
88 m2
Eladó téglalakás
Eladó téglalakás

XVIII. kerület

85.5 M Ft
3 szoba
67 m2
Eladó téglalakás
Eladó téglalakás

VII. kerület, Belső Erzsébetváros, Rózsa utca

170 M Ft
5 szoba
124 m2
Eladó téglalakás
Eladó téglalakás

XV. kerület

52.5 M Ft
2 szoba
50 m2
Eladó téglalakás
Eladó téglalakás

XV. kerület

118.945 M Ft
4 szoba
92 m2
Eladó téglalakás
Eladó téglalakás

XV. kerület, Rákospalota

185.259 M Ft
2 + 3 szoba
130 m2
Eladó téglalakás
Eladó téglalakás

XIV. kerület, Kiszugló, Kövér Lajos utca

168 M Ft
3 + 1 szoba
84 m2
Eladó téglalakás
Eladó téglalakás

XV. kerület

145 M Ft
4 szoba
100 m2
Eladó családi ház
Eladó családi ház

XVI. kerület

89.9 M Ft
2 + 1 szoba
100 m2

Falusi CSOK ingatlanok

Eladó családi ház
Eladó családi ház

Vajszló

18 M Ft
2 szoba
91 m2
Eladó családi ház
Eladó családi ház

Csemő

36.6 M Ft
1 szoba
48 m2
Eladó családi ház
Eladó családi ház

Tab

14.9 M Ft
3 szoba
110 m2
Eladó családi ház
Eladó családi ház

Borszörcsök

13.99 M Ft
3 szoba
178 m2
Eladó családi ház
Eladó családi ház

Tenk

78 M Ft
5 szoba
126 m2
Eladó családi ház
Eladó családi ház

Ásványráró

77.755 M Ft
4 szoba
82 m2
Eladó családi ház
Eladó családi ház

Bakonybél

84.9 M Ft
5 szoba
211 m2
Eladó családi ház
Eladó családi ház

Sellye

48.2 M Ft
4 szoba
99 m2