Metrodom

Eladó családi ház
Tenk

Figyelem!

Ez az ingatlan a 2019.07.01-től induló falusi CSOK által támogatott településen található

+ 17 kép 1/20
78 000 000 Ft78 M Ft 619 048 Ft/m2
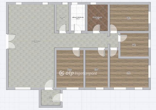
5 szoba
126 m2
építés éve:1976

Részletes adatok

Állapot: Felújított
Telekméret: 2014 m2
Fűtés: Gázkazán
Energetikai besorolás: Nem adta meg a hirdető

Az OTP Bank lakáshitel ajánlataFizetett hirdetés

+36 70 344
Angyal Tamás József
referens

Érdekel az OTP Bank kedvezményes lakáshitel ajánlata? *

* A kérdésre „Igen” válasz bejelölése esetén, az „Üzenet küldése” gombra kattintva kijelentem, hogy az OTP Bank Nyrt. Adatkezelési tájékoztatójának tartalmát megismertem és tudomásul vettem.

Eladó családi ház leírása

Eladó kiváló állapotú, luxus jellegű családi ház Tenken, az M3-autópálya közvetlen közelében, 10 kilométeren belül, kb. 10-15 percnyi autózással elérve a legközelebbi csomópontot. Az ingatlan egy szintes, 1976-ban épült, teljesen felújított, energia-hatékony megoldásokkal felszerelt, jól átgondolt, 5 szobás ház, hivatalos alapterülete 126 m2, a telek 2014 m2.

A ház gépészete modern: víz, villany, csatorna, gáz bevezetve, kondenzációs kazán és légtechnika hőcserélővel biztosítja a komfortot, padlófűtéssel, minden szobában külön vezérelhető. A nyílászárók műanyagból készültek, a falak 20 cm-es hőszigetelést , a födém 30 cm kőzetgyapot szigetelést kapott. A belső terek amerikai konyhás nappalival, luxus hatásokkal várják új tulajdonosukat.

A telek udvara frissen térkövezett, parkosított, a kert hátsó részén gyümölcsfák és művelt föld biztosítja a saját termés örömét. A ház mellett nagyméretű, fedett terasz található, a kerti kis épület/tároló kb. 70 m2, konvektoros fűtéssel felszerelt. Emellett fúrt kút áll rendelkezésre a locsoláshoz vagy medence feltöltéséhez.

Ez a ház olyan otthon, ahol a modern kényelem és a természet összhangban él. Ideális választás azoknak, akik nagyobb méretű, jól kivitelezett házat keresnek csendes környezetben, mégis jó infrastruktúrával, az autópálya közelségével.
Amennyiben felkeltette érdeklődését az ingatlan, jöjjön el és győződjön meg személyesen is a
leírtakról! Ingatlanirodánk ügyvédi háttérrel, CSOK, babaváró hitel, valamint kamatkedvezményes
hitel ügyintézésével támogatja ügyfelei ingatlanvásárlását! Kérem érdeklődéskor hivatkozzon az
M312737 számra.
Érd: Angyal Tamás József +36 70 344 3132

Referencia szám: M312737

Hirdetés feltöltve: 2025. 10. 08. Utoljára módosítva: 2025. 11. 25.

Az ingatlan elhelyezkedése

Cím: Tenk

Eladó ingatlanok a környékről

Eladó ipari ingatlan
Eladó ipari ingatlan

Pétervására

500 M Ft
8000 m2
Eladó téglalakás
Eladó téglalakás

Eger

39.9 M Ft
1 szoba
50 m2
Eladó ipari ingatlan
Eladó ipari ingatlan

Gyöngyös

1890 M Ft
40000 m²
9026 m2
Eladó családi ház
Eladó családi ház

Eger

139 M Ft
5 szoba
170 m2
Eladó családi ház
Eladó családi ház

Bükkszék

59.9 M Ft
5 szoba
130 m2
Eladó téglalakás
Eladó téglalakás

Eger

84.9 M Ft
4 szoba
135 m2
Eladó téglalakás
Eladó téglalakás

Mátraszentimre

55 M Ft
2 szoba
41 m2
Eladó családi ház
Eladó családi ház

Ostoros

94.5 M Ft
3 szoba
96 m2
Eladó üzlethelyiség
Eladó üzlethelyiség

Eger

22.99 M Ft
45 m2
Eladó családi ház
Eladó családi ház

Mezőtárkány

14.9 M Ft
2 + 1 szoba
85 m2
Eladó családi ház
Eladó családi ház

Poroszló

55 M Ft
8 szoba
200 m2
Eladó családi ház
Eladó családi ház

Mátraderecske

74 M Ft
4 szoba
200 m2
Eladó családi ház
Eladó családi ház

Pétervására

4.5 M Ft
3 szoba
85 m2
Eladó téglalakás
Eladó téglalakás

Mátraszentimre

55 M Ft
2 szoba
41 m2
Eladó téglalakás
Eladó téglalakás

Mátraszentimre

55 M Ft
2 szoba
41 m2
Eladó családi ház
Eladó családi ház

Hatvan

36.9 M Ft
2 + 1 szoba
Eladó családi ház
Eladó családi ház

Lőrinci

49.9 M Ft
3 + 1 szoba
100 m2
Eladó családi ház
Eladó családi ház

Boconád

12.5 M Ft
2 szoba
80 m2
Eladó téglalakás
Eladó téglalakás

Mátraszentimre

55 M Ft
2 szoba
41 m2
Eladó téglalakás
Eladó téglalakás

Mátraszentimre

55 M Ft
2 szoba
41 m2
Eladó családi ház
Eladó családi ház

Egerbakta

36.5 M Ft
5 szoba
120 m2
Eladó családi ház
Eladó családi ház

Pétervására

15.1 M Ft
3 szoba
70 m2
Eladó családi ház
Eladó családi ház

Egerszalók, Széchenyi István utca

54.9 M Ft
4 szoba
77 m2
Eladó téglalakás
Eladó téglalakás

Gyöngyös

38.65 M Ft
2 szoba
50 m2

Falusi CSOK ingatlanok

Eladó családi ház
Eladó családi ház

Hosszúpereszteg

35 M Ft
4 szoba
145 m2
Eladó családi ház
Eladó családi ház

Tápióbicske

38 M Ft
3 szoba
50 m2
Eladó családi ház
Eladó családi ház

Nagybaracska

35 M Ft
3 szoba
110 m2
Eladó családi ház
Eladó családi ház

Örkény

52.606 M Ft
3 szoba
109 m2
Eladó családi ház
Eladó családi ház

Darnózseli

79.9 M Ft
4 szoba
104 m2
Eladó családi ház
Eladó családi ház

Onga

72.9 M Ft
4 szoba
109 m2
Eladó családi ház
Eladó családi ház

Abaújszántó

19.99 M Ft
3 szoba
84 m2
Eladó családi ház
Eladó családi ház

Varsány

39.9 M Ft
6 szoba
160 m2

Falusi CSOK ingatlanok

Eladó családi ház
Eladó családi ház

Sümegcsehi

119 M Ft
5 szoba
237 m2
Eladó ikerház
Eladó ikerház

Seregélyes

39.9 M Ft
4 szoba
150 m2
Eladó családi ház
Eladó családi ház

Enese

82.9 M Ft
4 szoba
90 m2
Eladó családi ház
Eladó családi ház

Alcsútdoboz, Külterület

27 M Ft
2 szoba
57 m2
Eladó családi ház
Eladó családi ház

Jakabszállás

69.99 M Ft
1 + 4 szoba
91 m2
Eladó családi ház
Eladó családi ház

Szilvásvárad

120 M Ft
8 szoba
310 m2
Eladó családi ház
Eladó családi ház

Somogyegres

3.9 M Ft
2 szoba
59 m2
Eladó családi ház
Eladó családi ház

Enese

78.9 M Ft
4 szoba
90 m2