Avico Greentop

Eladó családi ház
Lőrinci

+ 17 kép 1/20
42 000 000 Ft42 M Ft 388 889 Ft/m2
3 szoba
108 m²
építés éve:1980

Részletes adatok

Telekméret: 2490 m2
Fűtés: Gázkonvektor
Parkolás: Kocsibeálló
Közmű: Víz, Gáz, Villany, Csatorna
Energetikai besorolás: Nem adta meg a hirdető

Az OTP Bank lakáshitel ajánlataFizetett hirdetés

+36 70 904
60House Ingatlan
referens

Érdekel az OTP Bank kedvezményes lakáshitel ajánlata? *

* A kérdésre „Igen” válasz bejelölése esetén, az „Üzenet küldése” gombra kattintva kijelentem, hogy az OTP Bank Nyrt. Adatkezelési tájékoztatójának tartalmát megismertem és tudomásul vettem.

Eladó családi ház leírása

UPDATE!
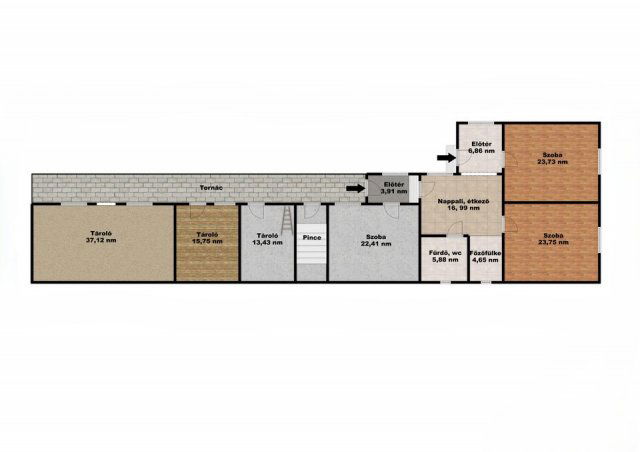
Megvételre kínálok Heves megyében, Lőrinci városban, központtól egy fél lépésre, forgalmas főút mellett, nyugati fekvésű telken épült, 108 nm lakóterületű, 3 szobás, részben felújított, nagy melléképülettel rendelkező, előkertes családi házat.

Jellemzői:
Ingatlan típus: családi ház
Lakótér: 108 nm
Szobák: 3, két szoba felújított, a harmadik befejezésre vár
Fekvés: nyugat
Fényviszonyok: napos
Telekméret: 2490 nm
Építési mód: oldalhatáros, előkertes
Kilátás: udvar, utca
Építés éve: az eredeti épület lehetett a melléképület, később építhették az első részét az ingatlannak, kb 1980-as évek
Állapot: részben felújított
Felújítás: falak, burkolatok, külső-belső nyílászárók, vezetékek, csövek, új villanyóra, szigetelés, új gázóra, konvektorok
Környék: forgalmas főút mellett, rendezett, családi házas övezet, parkos környezet
Út: aszfaltos

Építőanyag: tégla, melléképület vályog és tégla
Falak: stabil szerkezeti állapot, statikai hiba nem látható
Szigetelés: van, 10 cm
Alap: beton
Tető: átlagos állapotú, pala fedés
Födém: borított és borítás nélküli fagerendás
Beázás: nem látható
Ereszcsatorna: van
Kémény: van

Villany: van, új rézvezetékek, új villanyóra
Víz: van
Melegvíz: villanybojlernek hely kialakított
-->Földgáz: van, új óra
-->Fűtés: gázkonvektor
Csatorna: van
Nyílászárók: külső nyílászárók hőszigetelt, műanyag, a hátsó bejárati ajtó régi fa, a beltéri ajtók fa, ablakokon reluxa

Konyha: főzőfülke
Nappali: étkezővel egyben
Kamra: melléképületben
Fürdőszoba: van, zuhanyzós
WC: fürdőben

Udvar és kert: füves, gondozásra vár
Kút: van
Melléképület: több helyiséges, összesen 66 nm, külön lakrésznek, műhelynek ideális
Pince: van
Kerítés: jó állapotú, telek körbekerített
Parkolás: udvarban

Tv/ internet: a településen több szolgáltató elérhető
Birtokbaadás: akár azonnal

Az ingatlan Lőrinci forgalmas főútján helyezkedik el, szép, parkos környezetben. A város ellátottsága kiváló. A központ sétatávolságra van, vásárlási lehetőség, élelmiszerbolt, vegyesbolt, Coop, dohánybolt, posta, vendéglátóegységek, piac, bank, iskola, óvoda, orvosi rendelő, gyógyszertár, park.
Bevásárló központ, Tesco, Aldi, Family Center autóval 8 percre található.

A buszmegálló 450 méterre van, járatok indulnak a környező településekre és Hatvanba, valamint Pásztó, Budapest, Visonta, Eger, Gyöngyös városokba.
A vasútállomás 850 méterre, a vonatok a Hatvan- Somoskőújfalu vonalon közlekednek. A 21-es főút 3 perc autóval, innen 4 percre az M3-as autópálya elérhető, ahonnan Budapest csupán félórás autóút.

Amennyiben az ingatlan megvásárlásához el kell adnia meglévő ingatlanját, ebben is állunk szíves rendelkezésére. Hívjon bizalommal, nézze meg személyesen, majd tegyen egy ajánlatot!

Hirdetés feltöltve: 2026. 03. 06.

3 szobás családi házak ára Lőrinciben

Ebből az összehasonlításból megtudhatod, hogyan viszonyul a lakás ára a környékbeli családi házak átlagos árához. Ez nem azt jelenti, hogy ennyivel olcsóbb vagy drágább, mint amennyit a lakás ér, hanem hogy ennyivel tér el a környékbeli átlagtól.

Ennek a m² ára
Lőrinci m² ár
389 e Ft
132 e Ft -194%
Ennek az ára
Lőrinci átlagár
42 M Ft m Ft
12.8 m Ft -227%

Az ingatlan elhelyezkedése

Cím: Lőrinci

Eladó családi házak a környékről

Lőrinci
Eladó családi ház

Lőrinci

42.9 M Ft
4 szoba
200 m²
Lőrinci
Eladó családi ház

Lőrinci

24.5 M Ft
2 szoba
70 m²
Lőrinci
Eladó családi ház

Lőrinci

44.9 M Ft
4 szoba
160 m²
Ostoros
Eladó családi ház

Ostoros

94.5 M Ft
3 szoba
96 m²
Andornaktálya
Eladó családi ház

Andornaktálya

42.5 M Ft
3 szoba
115 m²
Lőrinci
Eladó családi ház

Lőrinci

54.9 M Ft
6 szoba
174 m²
Andornaktálya
Eladó családi ház

Andornaktálya

28.5 M Ft
2 szoba
60 m²
Lőrinci
Eladó családi ház

Lőrinci

42.9 M Ft
4 szoba
200 m²
Lőrinci
Eladó családi ház

Lőrinci

24.5 M Ft
2 szoba
62 m²
Lőrinci
Eladó családi ház

Lőrinci

24.5 M Ft
2 szoba
62 m²
Lőrinci
Eladó családi ház

Lőrinci

49 M Ft
3 szoba
113 m²
Lőrinci
Eladó családi ház

Lőrinci

42.9 M Ft
4 szoba
200 m²
Szilvásvárad
Eladó családi ház

Szilvásvárad

92 M Ft
4 + 1 szoba
220 m²
Recsk
Eladó családi ház

Recsk

21 M Ft
4 szoba
220 m²
Andornaktálya
Eladó családi ház

Andornaktálya

42 M Ft
4 szoba
116 m²
Lőrinci
Eladó családi ház

Lőrinci

24.99 M Ft
3 szoba
90 m²
Lőrinci
Eladó családi ház

Lőrinci

25 M Ft
3 + 1 szoba
104 m²
Mátraderecske
Eladó családi ház

Mátraderecske

74 M Ft
4 szoba
200 m²
Parád
Eladó családi ház

Parád

33.9 M Ft
3 szoba
118 m²
Lőrinci
Eladó családi ház

Lőrinci

32.8 M Ft
2 + 2 szoba
80 m²
Lőrinci
Eladó családi ház

Lőrinci

24.5 M Ft
2 szoba
62 m²
Lőrinci
Eladó családi ház

Lőrinci

280 M Ft
17 szoba
2868 m²
Lőrinci
Eladó családi ház

Lőrinci

29 M Ft
2 szoba
65 m²
Mátraszentimre
Eladó családi ház

Mátraszentimre

250 M Ft
8 szoba
300 m²

Falusi CSOK ingatlanok

Balatonfenyves
Eladó családi ház

Balatonfenyves

149 M Ft
8 szoba
270 m²
Ceglédbercel, Aranyhegy utca
Eladó családi ház

Ceglédbercel

114.99 M Ft
5 szoba
133 m²
Zengővárkony
Eladó családi ház

Zengővárkony

28 M Ft
3 szoba
87 m²
Balatonfenyves
Eladó ikerház

Balatonfenyves

65 M Ft
3 szoba
40 m²
Kaposgyarmat
Eladó családi ház

Kaposgyarmat

695 M Ft
6 szoba
610 m²
Iregszemcse
Eladó családi ház

Iregszemcse

28 M Ft
4 szoba
60 m²
Úri
Eladó családi ház

Úri

149 M Ft
5 szoba
279 m²
Tatárszentgyörgy
Eladó családi ház

Tatárszentgyörgy

67 M Ft
4 szoba
92 m²