Avico Greentop

Eladó családi ház
Iváncsa

Figyelem!

Ez az ingatlan a 2019.07.01-től induló falusi CSOK által támogatott településen található

+ 16 kép 1/19
34 500 000 Ft34.5 M Ft 479 167 Ft/m2
2 + 1 szoba
72 m2
építés éve:1950

Részletes adatok

Állapot: Átlagos
Telekméret: 902 m2
Fűtés: Gázkonvektor
Energetikai besorolás: Nem adta meg a hirdető

Az OTP Bank lakáshitel ajánlataFizetett hirdetés

+36 20 487
Darnai Henrietta
referens

Érdekel az OTP Bank kedvezményes lakáshitel ajánlata? *

* A kérdésre „Igen” válasz bejelölése esetén, az „Üzenet küldése” gombra kattintva kijelentem, hogy az OTP Bank Nyrt. Adatkezelési tájékoztatójának tartalmát megismertem és tudomásul vettem.

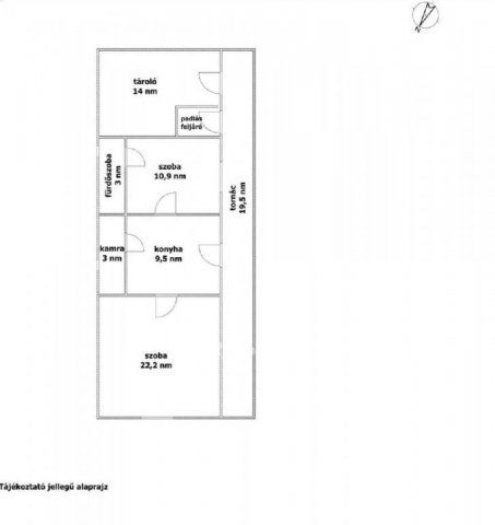
Eladó családi ház leírása

Fejér megye, Iváncsa 72 nm-es családi ház eladó. A tehermentes ingatlan a vasútállomástól 2 km-re, egy 902 nm-es bekerített telken helyezkedik el békés, csendes övezetben. Az összkomfortos házban nappali, szoba, félszoba, konyha, kamra, fürdőszoba található, valamint tartozik hozzá tornác és két különálló melléképület. A vegyes falazatú ingatlanban cserélték a nyílászárókat műanyagra, valamint a villanyvezetékeket is. A fűtésről gázkonvektorok gondoskodnak. A ház riasztóval felszerelt. Az ingatlan gyorsan birtokba vehető és költözhető. Teljes körű ügyintézésben segítjük ügyfeleinket díjtalanul: Falusi CSOK, CSOK igénylése, kedvezményes hitel mobil bankári szolgáltatással, adásvétel teljes lebonyolításával. Bővebb információkért, kérem keressen bizalommal, akár hétvégén is.

Hirdetés feltöltve: 2025. 12. 08. Utoljára módosítva: 2025. 12. 08.

Az ingatlan elhelyezkedése

Cím: Iváncsa

Eladó családi házak a környékről

Eladó családi ház
Eladó családi ház

Iváncsa

54.9 M Ft
3 szoba
130 m2
Eladó családi ház
Eladó családi ház

Iváncsa

70 M Ft
5 szoba
340 m2
Eladó családi ház
Eladó családi ház

Iváncsa

39.9 M Ft
4 szoba
112 m2
Eladó családi ház
Eladó családi ház

Iváncsa

73.9 M Ft
1 + 3 szoba
97 m2
Eladó családi ház
Eladó családi ház

Iváncsa

73.5 M Ft
4 szoba
140 m2
Eladó családi ház
Eladó családi ház

Iváncsa

79.9 M Ft
4 szoba
87 m2
Eladó családi ház
Eladó családi ház

Pusztavám

22.9 M Ft
3 szoba
103 m2
Eladó családi ház
Eladó családi ház

Kápolnásnyék, Bem utca

119.175 M Ft
5 szoba
156 m2
Eladó családi ház
Eladó családi ház

Iváncsa, Mátyás király utca 35

78 M Ft
3 + 3 szoba
180 m2
Eladó családi ház
Eladó családi ház

Székesfehérvár, Belváros

60 M Ft
2 szoba
100 m2
Eladó családi ház
Eladó családi ház

Iváncsa, Hunyadi utca

33 M Ft
2 szoba
40 m2
Eladó családi ház
Eladó családi ház

Sárbogárd, Tinódy utca

19.9 M Ft
3 szoba
75 m2
Eladó családi ház
Eladó családi ház

Kápolnásnyék, Bem utca

108.675 M Ft
5 szoba
136 m2
Eladó családi ház
Eladó családi ház

Szabadbattyán

357.518 M Ft
9 + 2 szoba
1053 m2
Eladó családi ház
Eladó családi ház

Iváncsa

39.9 M Ft
6 szoba
170 m2
Eladó családi ház
Eladó családi ház

Besnyő

25 M Ft
1 szoba
30 m2
Eladó családi ház
Eladó családi ház

Velence

85.9 M Ft
4 szoba
103 m2
Eladó családi ház
Eladó családi ház

Lepsény, Róka sétány

64.9 M Ft
5 + 1 szoba
203 m2
Eladó családi ház
Eladó családi ház

Iváncsa

79.9 M Ft
5 szoba
170 m2
Eladó családi ház
Eladó családi ház

Velence

80 M Ft
6 szoba
200 m2
Eladó családi ház
Eladó családi ház

Székesfehérvár

59 M Ft
3 szoba
100 m2
Eladó családi ház
Eladó családi ház

Iváncsa

40 M Ft
2 szoba
60 m2
Eladó családi ház
Eladó családi ház

Székesfehérvár

69.9 M Ft
3 szoba
95 m2
Eladó családi ház
Eladó családi ház

Mór

110 M Ft
12 szoba
340 m2

Falusi CSOK ingatlanok

Eladó családi ház
Eladó családi ház

Tápiógyörgye

14.9 M Ft
2 szoba
67 m2
Eladó családi ház
Eladó családi ház

Kaposgyarmat

695 M Ft
6 szoba
610 m2
Eladó családi ház
Eladó családi ház

Gerde

4.8 M Ft
2 szoba
62 m2
Eladó családi ház
Eladó családi ház

Szenyér

6.5 M Ft
2 szoba
67 m2
Eladó családi ház
Eladó családi ház

Mályi

84.9 M Ft
4 szoba
100 m2
Eladó családi ház
Eladó családi ház

Somogyaszaló

59.9 M Ft
3 szoba
180 m2
Eladó családi ház
Eladó családi ház

Hunya

10.99 M Ft
3 szoba
80 m2
Eladó téglalakás
Eladó téglalakás

Nyáregyháza

61.5 M Ft
4 szoba
91 m2

Falusi CSOK ingatlanok

Eladó családi ház
Eladó családi ház

Pápakovácsi

33 M Ft
3 szoba
87 m2
Eladó családi ház
Eladó családi ház

Himesháza

56.5 M Ft
3 szoba
110 m2
Eladó családi ház
Eladó családi ház

Kenyeri

21.8 M Ft
2 szoba
75 m2
Eladó családi ház
Eladó családi ház

Adács

34.5 M Ft
2 szoba
75 m2
Eladó családi ház
Eladó családi ház

Enese

78.9 M Ft
4 szoba
90 m2
Eladó családi ház
Eladó családi ház

Tapsony

23.8 M Ft
3 szoba
130 m2
Eladó családi ház
Eladó családi ház

Tápióbicske

38 M Ft
3 szoba
50 m2
Eladó családi ház
Eladó családi ház

Verseg

84.9 M Ft
6 szoba
152 m2