Oasis Residence

Eladó téglalakás
Budapest, XIX. kerület, Kispest, 4. emelet

+ 9 kép 1/12
76 900 000 Ft76.9 M Ft 1 450 943 Ft/m2
2 szoba
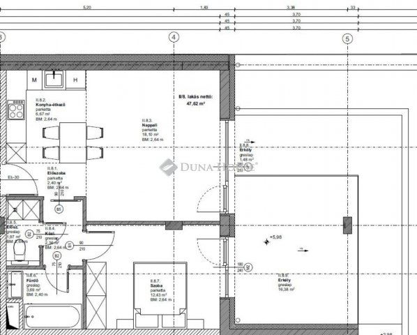
53 m²
4. emelet
építés éve:2026

Részletes adatok

Fűtés: Házközponti egyedi méréssel
Emelet: 4. emelet
Extrák: Lift
Energetikai besorolás: A+

Az OTP Bank lakáshitel ajánlataFizetett hirdetés

+36 1 690
Szőke Zoltán
referens

Érdekel az OTP Bank kedvezményes lakáshitel ajánlata? *

* A kérdésre „Igen” válasz bejelölése esetén, az „Üzenet küldése” gombra kattintva kijelentem, hogy az OTP Bank Nyrt. Adatkezelési tájékoztatójának tartalmát megismertem és tudomásul vettem.

Eladó téglalakás leírása

Budapest 19. kerületében, a KÖKI Terminál szomszédságában új építésű társasházi lakások hőszivattyús fűtéssel, magas műszaki tartalommal, kivételes lokációval!Befektetésnek is kitűnő lehetőség!!Műszaki adatok:- főfal: 30-as főfalak- válaszfal: Porotherm 10 N+F válaszfallap- energiatakarékos hőszivattyús rendszer padlófűtéssel (lakáson belül helyiségenként egyedi mérővel)- a melegvizet hőszivattyú állítja elő a tárolásról pedig HMV gondoskodik- 20 cm Rockwool kőzetgyapot homlokzati szigetelés- hűtés magas oldalfali fan-coilokkal (hőszivattyú) felár ellenében- 3 üvegrétegű, 6 kamrás hőszigetelt, műanyag nyílászárók- szaniterek, meleg- és hidegburkolatok, valamint beltéri ajtók még választhatók- gépkocsibeálló igény szerint vásárolható - 4 M Ft / db- Lift (13 személyes, 1000 kg teherbírású személyfelvonó)Már 10%- al foglalható, építési ütemnek megfelelő fizetési ütemezéssel!Az építtető cég, így minden állami támogatás igénybe vehető!Várható átadás: 2026. IV. negyedévTeljes műszaki leírás, dokumentáció megtekinthető irodánkban!

76900000 Ft
Érd:Szőke Zoltán +36-30-507-3286

Referencia szám: PR021988/LK/27295-ZE

Hirdetés feltöltve: 2026. 03. 16.

2 szobás téglalakások ára Budapesten

Ebből az összehasonlításból megtudhatod, hogyan viszonyul a lakás ára a környékbeli téglalakások átlagos árához. Ez nem azt jelenti, hogy ennyivel olcsóbb vagy drágább, mint amennyit a lakás ér, hanem hogy ennyivel tér el a környékbeli átlagtól.

Ennek a m² ára
Kispest m² ár
XIX. kerület m² ár
Budapest m² ár
1451 e Ft
1492 e Ft 3%
1438 e Ft -1%
1688 e Ft 14%
Ennek az ára
Kispest átlagár
XIX. kerület átlagár
Budapest átlagár
76.9 M Ft m Ft
70 m Ft -10%
71.9 m Ft -7%
90.1 m Ft 15%

Az ingatlan elhelyezkedése

Cím: Budapest, XIX. kerület, Kispest, 4. emelet

Eladó ingatlanok a környékről

XIX. kerület
Eladó téglalakás

Budapest, XIX. kerület

95.221 M Ft
2 szoba
43 m²
IX. kerület, Ferencváros, Vágóhíd utca
Eladó téglalakás

Budapest, IX. kerület

199.9 M Ft
4 szoba
102 m²
IV. kerület
Eladó téglalakás

Budapest, IV. kerület

59.9 M Ft
2 szoba
51 m²
XIX. kerület
Eladó téglalakás

Budapest, XIX. kerület

125 M Ft
4 szoba
140 m²
XIX. kerület
Eladó téglalakás

Budapest, XIX. kerület

63.955 M Ft
1 szoba
34 m²
XVI. kerület
Eladó téglalakás

Budapest, XVI. kerület

69.9 M Ft
2 + 1 szoba
40 m²
XIX. kerület
Eladó téglalakás

Budapest, XIX. kerület

84.466 M Ft
2 szoba
49 m²
XIX. kerület
Eladó téglalakás

Budapest, XIX. kerület

78.122 M Ft
2 szoba
43 m²
XIII. kerület, Újlipótváros
Eladó téglalakás

Budapest, XIII. kerület

36 M Ft
1 szoba
20 m²
XIX. kerület
Eladó téglalakás

Budapest, XIX. kerület

52.99 M Ft
1 szoba
29 m²
XIX. kerület
Eladó téglalakás

Budapest, XIX. kerület

61.557 M Ft
1 szoba
34 m²
XVII. kerület
Eladó panellakás

Budapest, XVII. kerület

69.9 M Ft
4 szoba
73 m²
XIX. kerület
Eladó téglalakás

Budapest, XIX. kerület

60.501 M Ft
1 szoba
35 m²
XIX. kerület
Eladó téglalakás

Budapest, XIX. kerület

63.278 M Ft
1 szoba
34 m²
VII. kerület, Külső Erzsébetváros, Lövölde tér
Eladó téglalakás

Budapest, VII. kerület

165 M Ft
4 szoba
107 m²
XIV. kerület
Eladó téglalakás

Budapest, XIV. kerület

61.5 M Ft
1 szoba
41 m²
XVI. kerület
Eladó családi ház

Budapest, XVI. kerület

124.9 M Ft
3 szoba
71 m²
XVII. kerület
Eladó panellakás

Budapest, XVII. kerület

75.9 M Ft
3 szoba
58 m²
XIX. kerület
Eladó téglalakás

Budapest, XIX. kerület

62.85 M Ft
1 szoba
35 m²
XIX. kerület
Eladó téglalakás

Budapest, XIX. kerület

80.165 M Ft
2 szoba
44 m²
XIX. kerület
Eladó téglalakás

Budapest, XIX. kerület

106.128 M Ft
4 szoba
70 m²
VIII. kerület, Józsefváros
Eladó téglalakás

Budapest, VIII. kerület

129.9 M Ft
4 szoba
93 m²
XIX. kerület
Eladó téglalakás

Budapest, XIX. kerület

87.199 M Ft
2 szoba
50 m²
XVIII. kerület
Eladó panellakás

Budapest, XVIII. kerület

62.9 M Ft
3 szoba
59 m²

Falusi CSOK ingatlanok

Szentmártonkáta
Eladó családi ház

Szentmártonkáta

35 M Ft
3 szoba
70 m²
Söjtör
Eladó családi ház

Söjtör

23 M Ft
2 szoba
91 m²
Balatonszemes
Eladó téglalakás

Balatonszemes

119.9 M Ft
2 szoba
81 m²
Magyarszék
Eladó családi ház

Magyarszék

99.5 M Ft
5 szoba
136 m²
Bőny
Eladó családi ház

Bőny

65.8 M Ft
1 + 3 szoba
81 m²
Balatonkenese, Mókus utca
Eladó családi ház

Balatonkenese

119.99 M Ft
4 szoba
125 m²
Bodolyabér, Zrínyi utca
Eladó családi ház

Bodolyabér

24.9 M Ft
5 szoba
125 m²
Herend
Eladó téglalakás

Herend

59.99 M Ft
3 szoba
69 m²