Astora Olive Club House

Eladó téglalakás
Budapest, XIV. kerület, 1. emelet

+ 8 kép 1/11
64 900 000 Ft64.9 M Ft 1 324 490 Ft/m2
2 szoba
49 m2
1. emelet
építés éve:1978

Részletes adatok

Fűtés: Egyéb
Extrák: Lift
Energetikai besorolás: Nem adta meg a hirdető

Az OTP Bank lakáshitel ajánlataFizetett hirdetés

+36 70 313
Popovics József
Immo1

Érdekel az OTP Bank kedvezményes lakáshitel ajánlata? *

* A kérdésre „Igen” válasz bejelölése esetén, az „Üzenet küldése” gombra kattintva kijelentem, hogy az OTP Bank Nyrt. Adatkezelési tájékoztatójának tartalmát megismertem és tudomásul vettem.

Eladó téglalakás leírása

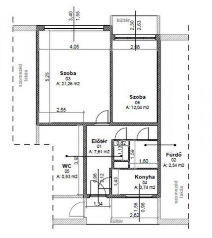
XIV. kerületben, az Ond vezér útján eladó egy panelprogramos, 10 emeletes társasház 1. emeletén egy 49 m2-es, jó állapotú, napfényes, csendes lakás.

A biztonsági ajtón belépve egy "L" alakú közlekedő folyosón/előtérben találjuk magunk, a lakás minden helyisége innen külön ajtón keresztül érhető el. Jobbra található egy ablakos konyha, tovább haladva, szintén jobbra található a mellékhelyiség, illetve a fürdőszoba.

A két szoba a bejárattal szemben található, jelenleg a nagyobb szoba nappaliként, a kisebb szoba hálószobaként funkcionál. A két szoba külön és egybe is nyílik. A kisebb szobához tartozik még egy 3 m2-es loggia is.

A lift mellett közös tárolóhelyiség került kialakításra, a lakók szintenként osztoznak rajta. A biztonságról számkódos beléptető rendszer, illetve kamerarendszer gondoskodik.

A lakás átesett a panelprogramon, korszerű hő- és hangszigetelt nyílászárókat építettek be, amelyek redőnnyel felszereltek.

Az ingatlan távfűtéses, de egyedileg mérhető és szabályozható.

Belmagasság: 370 cm.

A lakótelepről elmondható, hogy kellemes zöld környezetben található, számos parkkal, játszótérrel, kikapcsolódási, sportolási lehetőséggel.

Közlekedése kiváló, a 80-as számú troli csúcsidőn kívül is sűrűn közlekedik, az M2 Metró két megállónyira található. A Sugár előtti autóbusz fordulóból ezen felül számos járat indul, a Kerepesi úton Rákosfalva HÉV megálló szintén könnyen megközelíthető.

Közelben számos bevásárlási lehetőség található, több Spar, ALDI, IKEA, Sugár, Árkád, Mc Donalds, Pékség, Cukrászda, Fagyizó.

Szintén gyalog távolságban elérhető óvoda, iskola, posta, gyógyszertár stb.

Autóval parkolni a lakások körül közterületen lehetséges.

Hirdetés feltöltve: 2025. 12. 21.

2 szobás téglalakások ára Budapesten

Ebből az összehasonlításból megtudhatod, hogyan viszonyul a lakás ára a környékbeli téglalakások átlagos árához. Ez nem azt jelenti, hogy ennyivel olcsóbb vagy drágább, mint amennyit a lakás ér, hanem hogy ennyivel tér el a környékbeli átlagtól.

Ennek a m² ára
XIV. kerület m² ár
Budapest m² ár
1324 e Ft
1565 e Ft 15%
1689 e Ft 22%
Ennek az ára
XIV. kerület átlagár
Budapest átlagár
64.9 M Ft m Ft
82.2 m Ft 21%
90.2 m Ft 28%

Az ingatlan elhelyezkedése

Cím: Budapest, XIV. kerület, 1. emelet

Eladó ingatlanok a környékről

Eladó téglalakás
Eladó téglalakás

XIV. kerület, Kiszugló, Kövér Lajos utca

168 M Ft
3 + 1 szoba
84 m2
Eladó téglalakás
Eladó téglalakás

VI. kerület, Külső Terézváros, Szív utca

119.5 M Ft
3 szoba
94 m2
Eladó téglalakás
Eladó téglalakás

XIV. kerület, Must utca

66 M Ft
1 + 1 szoba
53 m2
Eladó téglalakás
Eladó téglalakás

IV. kerület, Újpest, Kassai utca

84.9 M Ft
2 + 1 szoba
71 m2
Eladó téglalakás
Eladó téglalakás

XIV. kerület, Törökőr, Bíbor utca

105.99 M Ft
3 szoba
69 m2
Eladó téglalakás
Eladó téglalakás

XIV. kerület, Alsórákos

165 M Ft
4 + 1 szoba
190 m2
Eladó téglalakás
Eladó téglalakás

V. kerület, Belváros, Petőfi Sándor utca

134 M Ft
2 szoba
59 m2
Eladó téglalakás
Eladó téglalakás

XIV. kerület, Istvánmező, Ilka utca

92 M Ft
3 + 1 szoba
106 m2
Eladó téglalakás
Eladó téglalakás

I. kerület, Krisztinaváros, Feszty Árpád utca

78.99 M Ft
1 szoba
28 m2
Eladó téglalakás
Eladó téglalakás

XIV. kerület

107 M Ft
2 szoba
62 m2
Eladó téglalakás
Eladó téglalakás

XIV. kerület, Törökőr

110 M Ft
4 szoba
95 m2
Eladó téglalakás
Eladó téglalakás

XIV. kerület, Alsórákos

120.73 M Ft
3 szoba
73 m2
Eladó téglalakás
Eladó téglalakás

VII. kerület

102.785 M Ft
2 szoba
49 m2
Eladó téglalakás
Eladó téglalakás

XIV. kerület, Kiszugló, Kövér Lajos utca

100 M Ft
1 szoba
330 m2
Eladó téglalakás
Eladó téglalakás

VII. kerület, Belső Erzsébetváros, Rózsa utca

170 M Ft
5 szoba
124 m2
Eladó téglalakás
Eladó téglalakás

XIV. kerület, Istvánmező, Hungária körút

119.6 M Ft
4 szoba
104 m2
Eladó téglalakás
Eladó téglalakás

XIV. kerület, Kassai utca

99 M Ft
2 + 1 szoba
89 m2
Eladó téglalakás
Eladó téglalakás

IX. kerület

133.411 M Ft
3 szoba
69 m2
Eladó téglalakás
Eladó téglalakás

XIV. kerület, Istvánmező, Ilka utca

110 M Ft
4 szoba
95 m2
Eladó téglalakás
Eladó téglalakás

XI. kerület, Gellérthegy, Gombócz Zoltán utca

142 M Ft
2 + 1 szoba
71 m2
Eladó téglalakás
Eladó téglalakás

III. kerület, Óbudaisziget, Folyamőr utca

76.9 M Ft
1 szoba
25 m2
Eladó családi ház
Eladó családi ház

XXII. kerület, Budafok, Baross utca

199 M Ft
6 + 1 szoba
200 m2
Eladó téglalakás
Eladó téglalakás

XIV. kerület, Alsórákos

127.2 M Ft
2 szoba
71 m2
Eladó téglalakás
Eladó téglalakás

III. kerület, Rómaifürdő, Királyok útja

139 M Ft
3 szoba
65 m2

Falusi CSOK ingatlanok

Eladó családi ház
Eladó családi ház

Örkény

52.606 M Ft
3 szoba
109 m2
Eladó családi ház
Eladó családi ház

Somogygeszti

38.6 M Ft
3 + 1 szoba
98 m2
Eladó családi ház
Eladó családi ház

Mezőfalva

39 M Ft
3 szoba
77 m2
Eladó családi ház
Eladó családi ház

Kőröstetétlen

17.9 M Ft
2 + 1 szoba
93 m2
Eladó családi ház
Eladó családi ház

Vácszentlászló

45 M Ft
4 szoba
100 m2
Eladó családi ház
Eladó családi ház

Zalaszentjakab

12.9 M Ft
1 szoba
50 m2
Eladó családi ház
Eladó családi ház

Hernádnémeti

18.9 M Ft
2 szoba
62 m2
Eladó családi ház
Eladó családi ház

Belvárdgyula

58.65 M Ft
5 szoba
164 m2