River Life

Eladó téglalakás
Budapest, XIII. kerület

+ 5 kép 1/8
41 500 000 Ft41.5 M Ft 1 537 037 Ft/m2
1 szoba
27 m2

Részletes adatok

Fűtés: Egyéb
Energetikai besorolás: Nem adta meg a hirdető

Az OTP Bank lakáshitel ajánlataFizetett hirdetés

+36 20 400
Szentgyörgyvölgyi Ruben
referens

Érdekel az OTP Bank kedvezményes lakáshitel ajánlata? *

* A kérdésre „Igen” válasz bejelölése esetén, az „Üzenet küldése” gombra kattintva kijelentem, hogy az OTP Bank Nyrt. Adatkezelési tájékoztatójának tartalmát megismertem és tudomásul vettem.

Eladó téglalakás leírása

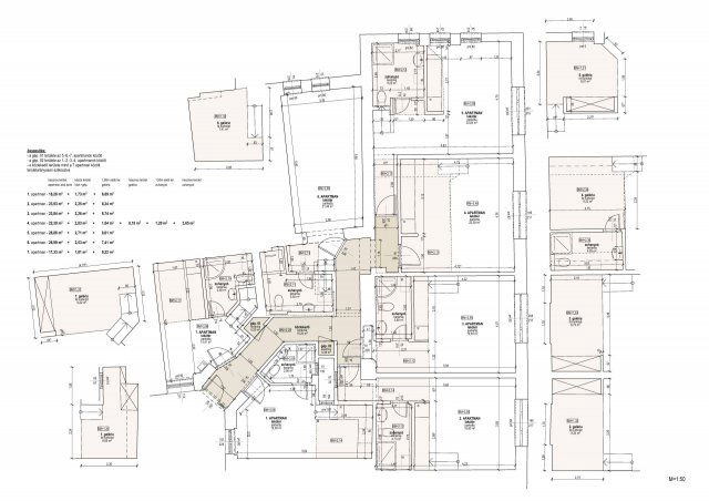
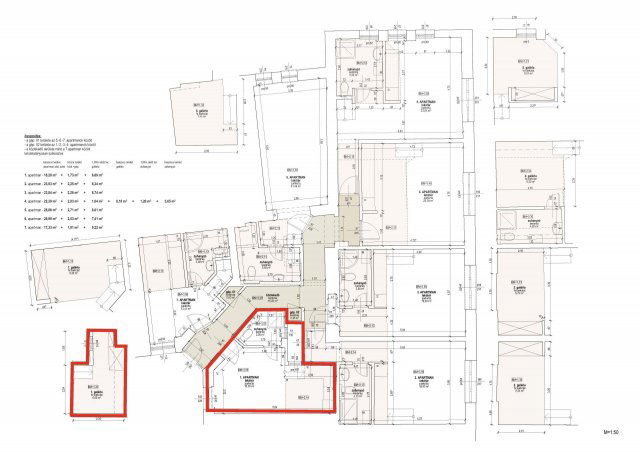
Újlipótvárosban, a Visegrádi utcában eladó egy 20 m²-es, 7 m²-es fekvő galériával kialakított, felújított, klimatizált, teljesen bútorozott és gépesített stúdiólakás, egy rendezett, liftes, téglaépítésű társasház 4. emeletén.

Az ingatlan belső udvarra néz, így csendes, mégis városi környezetet biztosít, a galériás kialakításnak köszönhetően jól kihasznált, élhető terekkel rendelkezik, gázcirkó fűtéssel felszerelt, a teljes berendezés a vételár részét képezi, ezért azonnal költözhető vagy bérbe adható.

A lakás egy négyemeletes, karbantartott társasházban található, fenntartási költségei kedvezőek, a közös költség 11.000 Ft havonta, a rezsi fogyasztás szerint alakul, átlagosan körülbelül 15.000 Ft.

Az ingatlan 1/1 tulajdonú, tehermentes, osztatlan közös tulajdon, ügyvédi megosztással, egy két nagyobb lakásból kialakított, összesen hétlakásos kialakítás részeként jött létre, az alaprajzon pirossal jelölve egyértelműen beazonosítható, hogy pontosan melyik lakás kerül értékesítésre.

Elhelyezkedése kiváló, a közelben metró, villamos, a Nyugati pályaudvar, bevásárlóközpont, parkok és piac is rövid sétával elérhető, a parkolás az utcán, fizetős övezetben megoldott.

Elsősorban azoknak ajánlom, akik biztos helyen szeretnék tudni a pénzüket, akár befektetésnek, akár saját otthonként képzelik el ezt az ingatlant.

Hirdetés feltöltve: 2026. 01. 14. Utoljára módosítva: 2026. 01. 14.

1 szobás téglalakások ára Budapesten

Ebből az összehasonlításból megtudhatod, hogyan viszonyul a lakás ára a környékbeli téglalakások átlagos árához. Ez nem azt jelenti, hogy ennyivel olcsóbb vagy drágább, mint amennyit a lakás ér, hanem hogy ennyivel tér el a környékbeli átlagtól.

Ennek a m² ára
XIII. kerület m² ár
Budapest m² ár
1537 e Ft
1808 e Ft 15%
1710 e Ft 10%
Ennek az ára
XIII. kerület átlagár
Budapest átlagár
41.5 M Ft m Ft
61.9 m Ft 33%
58.4 m Ft 29%

Az ingatlan elhelyezkedése

Cím: Budapest, XIII. kerület

Eladó ingatlanok a környékről

Eladó téglalakás
Eladó téglalakás

XIII. kerület, Angyalföld

84.9 M Ft
5 + 2 szoba
124 m2
Eladó téglalakás
Eladó téglalakás

XIV. kerület, Barack utca 16

129.805 M Ft
3 + 1 szoba
92 m2
Eladó téglalakás
Eladó téglalakás

XIII. kerület

199.815 M Ft
4 szoba
105 m2
Eladó téglalakás
Eladó téglalakás

I. kerület, Krisztinaváros, Feszty Árpád utca

78.99 M Ft
1 szoba
28 m2
Eladó téglalakás
Eladó téglalakás

XIV. kerület, Barack utca 16

93.392 M Ft
2 + 1 szoba
67 m2
Eladó téglalakás
Eladó téglalakás

XIV. kerület, Barack utca 16

93.73 M Ft
2 + 1 szoba
68 m2
Eladó téglalakás
Eladó téglalakás

XIV. kerület, Barack utca 16

112.912 M Ft
2 + 1 szoba
76 m2
Eladó téglalakás
Eladó téglalakás

XIII. kerület, Angyalföld, Dévai utca

104.139 M Ft
3 szoba
68 m2
Eladó téglalakás
Eladó téglalakás

XIII. kerület, Angyalföld, Dévai utca

60.963 M Ft
1 szoba
33 m2
Eladó téglalakás
Eladó téglalakás

XIII. kerület, Angyalföld, Dévai utca

114.012 M Ft
3 szoba
52 m2
Eladó téglalakás
Eladó téglalakás

III. kerület, Óbuda, Szomolnok utca

89.9 M Ft
2 + 2 szoba
96 m2
Eladó téglalakás
Eladó téglalakás

XIV. kerület, Barack utca 16

154.629 M Ft
3 + 1 szoba
92 m2
Eladó téglalakás
Eladó téglalakás

XIV. kerület, Barack utca 16

114.317 M Ft
2 + 1 szoba
68 m2
Eladó téglalakás
Eladó téglalakás

XIII. kerület

262.035 M Ft
4 szoba
150 m2
Eladó téglalakás
Eladó téglalakás

IV. kerület, Újpest, Kassai utca

84.9 M Ft
2 + 1 szoba
71 m2
Eladó téglalakás
Eladó téglalakás

XIII. kerület, Angyalföld, Dévai utca

146.496 M Ft
4 szoba
80 m2
Eladó téglalakás
Eladó téglalakás

XIII. kerület, Vizafogó, Népfürdő utca 47

138.3 M Ft
3 szoba
81 m2
Eladó téglalakás
Eladó téglalakás

XIII. kerület

127.12 M Ft
3 szoba
81 m2
Eladó téglalakás
Eladó téglalakás

XIV. kerület, Barack utca 16

96.649 M Ft
2 + 1 szoba
65 m2
Eladó téglalakás
Eladó téglalakás

XIII. kerület, Angyalföld, Lomb utca 13

142.5 M Ft
3 szoba
76 m2
Eladó téglalakás
Eladó téglalakás

XIII. kerület, Vizafogó, Népfürdő utca 47

78.15 M Ft
2 szoba
43 m2
Eladó téglalakás
Eladó téglalakás

XIII. kerület, Angyalföld, Dunai panorámás lakás

173.25 M Ft
4 szoba
97 m2
Eladó téglalakás
Eladó téglalakás

XIII. kerület

84.975 M Ft
2 szoba
50 m2
Eladó téglalakás
Eladó téglalakás

XIV. kerület, Barack utca 16

133.251 M Ft
2 + 1 szoba
74 m2

Falusi CSOK ingatlanok

Eladó családi ház
Eladó családi ház

Jakabszállás

69.99 M Ft
1 + 4 szoba
91 m2
Eladó családi ház
Eladó családi ház

Ádánd

53.5 M Ft
6 szoba
180 m2
Eladó családi ház
Eladó családi ház

Dág, Petőfi Sándor utca

36.9 M Ft
4 szoba
105 m2
Eladó családi ház
Eladó családi ház

Badacsonytomaj, Kodály Zoltán utca

185 M Ft
6 + 1 szoba
210 m2
Eladó családi ház
Eladó családi ház

Vép

38.9 M Ft
4 szoba
94 m2
Eladó családi ház
Eladó családi ház

Szulok, Béke utca

31.9 M Ft
3 szoba
125 m2
Eladó sorház
Eladó sorház

Devecser

10.9 M Ft
1 + 1 szoba
57 m2
Eladó téglalakás
Eladó téglalakás

Fertőszentmiklós

52.2 M Ft
3 szoba
89 m2