Astora Art House

Eladó téglalakás
Budapest, XII. kerület, Krisztinaváros, Királyhágó utca, 4. emelet

+ 2 kép 1/5
75 000 000 Ft75 M Ft 1 666 667 Ft/m2
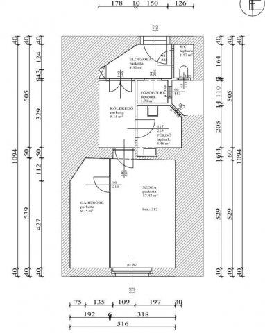
1 szoba
45 m²
4. emelet

Részletes adatok

Fűtés: Elektromos
Emelet: 4. emelet
Közmű: Víz, Villany, Csatorna
Extrák: Lift
Energetikai besorolás: Nem adta meg a hirdető

Az OTP Bank lakáshitel ajánlataFizetett hirdetés

+36 70 454
Otthon Centrum
referens

Érdekel az OTP Bank kedvezményes lakáshitel ajánlata? *

* A kérdésre „Igen” válasz bejelölése esetén, az „Üzenet küldése” gombra kattintva kijelentem, hogy az OTP Bank Nyrt. Adatkezelési tájékoztatójának tartalmát megismertem és tudomásul vettem.

Eladó téglalakás leírása

Bérlővel együtt ELADÓ, egy szobás, 45nm-es lakás!
Befektetőknek, fiataloknak, diákoknak, első lakásnak ideális!
Szeretnél benne lenni Buda körforgásában, de mégis távol maradni a forgalom zajától,
akkor NEKED találták ki ezt a jó adottságokkal rendelkező lakást.

Jelenleg bérlő lakik benne.

A környéken sportolási lehetőség, kutyasétáltatás, kulturális időtöltés könnyen elérhető.

Kiváló TÖMEGKÖZLEKEDÉS:
A lakás 3 percre található a DÉLI pályaudvartól, ahol a M2 METRÓ végállomása van.
2 percre, 4 különböző villamos, és 5 különböző busz áll meg.
Így a munkahelyre jutás nem fog gondot okozni...

- 4 szintes, tégla építésű, rendezett lépcsőházban található / lift
- Jó elhelyezkedés, nagyszerű infrastruktúra
- MOM PARK 3 percre, az MAMMUT Bevásárló Központ 8 percre, Allee Bevásárló Központ 10 percre...

Amennyiben felkeltettem érdeklődését hívjon bizalommal!

Hirdetés feltöltve: 2026. 02. 05. Utoljára módosítva: 2026. 02. 06.

1 szobás téglalakások ára Budapesten

Ebből az összehasonlításból megtudhatod, hogyan viszonyul a lakás ára a környékbeli téglalakások átlagos árához. Ez nem azt jelenti, hogy ennyivel olcsóbb vagy drágább, mint amennyit a lakás ér, hanem hogy ennyivel tér el a környékbeli átlagtól.

Ennek a m² ára
Krisztinaváros m² ár
XII. kerület m² ár
Budapest m² ár
1667 e Ft
343 e Ft -387%
1842 e Ft 10%
1710 e Ft 3%
Ennek az ára
Krisztinaváros átlagár
XII. kerület átlagár
Budapest átlagár
75 M Ft m Ft
11.4 m Ft -559%
63.9 m Ft -17%
59.2 m Ft -27%

Az ingatlan elhelyezkedése

Cím: Budapest, XII. kerület, Krisztinaváros, Királyhágó utca, 4. emelet

Eladó ingatlanok a környékről

XIX. kerület, Kispest, Iparos utca 2
Eladó téglalakás

Budapest, XIX. kerület

84.306 M Ft
3 szoba
53 m²
XIX. kerület, Kispest, Iparos utca 2
Eladó téglalakás

Budapest, XIX. kerület

52.948 M Ft
1 szoba
30 m²
XII. kerület, Széchenyihegy, Ágnes köz
Eladó téglalakás

Budapest, XII. kerület

475 M Ft
5 szoba
185 m²
XIX. kerület, Kispest, Iparos utca 2
Eladó téglalakás

Budapest, XIX. kerület

88.732 M Ft
2 szoba
52 m²
XIX. kerület, Kispest, Iparos utca 2
Eladó téglalakás

Budapest, XIX. kerület

87.897 M Ft
3 szoba
53 m²
XII. kerület
Eladó téglalakás

Budapest, XII. kerület

96.9 M Ft
2 + 1 szoba
82 m²
XII. kerület
Eladó téglalakás

Budapest, XII. kerület

199.9 M Ft
6 szoba
145 m²
XIX. kerület, Kispest, Iparos utca 2
Eladó téglalakás

Budapest, XIX. kerület

52.666 M Ft
1 szoba
30 m²
XII. kerület
Eladó téglalakás

Budapest, XII. kerület

650 M Ft
3 szoba
120 m²
XII. kerület
Eladó téglalakás

Budapest, XII. kerület

650 M Ft
3 szoba
120 m²
XII. kerület
Eladó téglalakás

Budapest, XII. kerület

321 M Ft
3 szoba
108 m²
XII. kerület
Eladó téglalakás

Budapest, XII. kerület

175.6 M Ft
2 szoba
53 m²
XII. kerület, Széchenyihegy, Ágnes köz
Eladó téglalakás

Budapest, XII. kerület

203 M Ft
3 szoba
72 m²
XIX. kerület, Kispest, Iparos utca 2
Eladó téglalakás

Budapest, XIX. kerület

63.689 M Ft
2 szoba
45 m²
XIX. kerület, Kispest, Iparos utca 2
Eladó téglalakás

Budapest, XIX. kerület

65.457 M Ft
2 szoba
45 m²
XII. kerület
Eladó téglalakás

Budapest, XII. kerület

475 M Ft
5 szoba
185 m²
XIX. kerület, Kispest, Iparos utca 2
Eladó téglalakás

Budapest, XIX. kerület

76.195 M Ft
2 szoba
41 m²
XIX. kerület, Kispest, Iparos utca 2
Eladó téglalakás

Budapest, XIX. kerület

60.304 M Ft
2 szoba
46 m²
XII. kerület, Krisztinaváros, Városmajor utca
Eladó téglalakás

Budapest, XII. kerület

700 M Ft
20 + 5 szoba
849 m²
XII. kerület, Széchenyihegy, Ágnes köz
Eladó téglalakás

Budapest, XII. kerület

277 M Ft
3 szoba
98 m²
XII. kerület, Németvölgy, Fodor utca
Eladó téglalakás

Budapest, XII. kerület

47.8 M Ft
1 szoba
31 m²
XIX. kerület, Kispest, Iparos utca 2
Eladó téglalakás

Budapest, XIX. kerület

51.937 M Ft
1 szoba
30 m²
XII. kerület
Eladó téglalakás

Budapest, XII. kerület

93 M Ft
2 szoba
53 m²
XIX. kerület, Kispest, Iparos utca 2
Eladó téglalakás

Budapest, XIX. kerület

52.283 M Ft
1 szoba
30 m²

Falusi CSOK ingatlanok

Verseg
Eladó családi ház

Verseg

38 M Ft
3 szoba
83 m²
Sajóvelezd, Dózsa György út
Eladó családi ház

Sajóvelezd

9.5 M Ft
2 szoba
60 m²
Jászkarajenő
Eladó családi ház

Jászkarajenő

4.99 M Ft
3 + 1 szoba
84 m²
Bodrogkisfalud
Eladó családi ház

Bodrogkisfalud

59.99 M Ft
5 + 1 szoba
122 m²
Aba
Eladó családi ház

Aba

71 M Ft
4 szoba
93 m²
Tótszentmárton
Eladó családi ház

Tótszentmárton

120 M Ft
2 szoba
234 m²
Jakabszállás
Eladó családi ház

Jakabszállás

69.99 M Ft
1 + 4 szoba
91 m²
Csurgó
Eladó családi ház

Csurgó

21.5 M Ft
4 szoba
80 m²