Kedves Felhasználónk! Rendszerfrissítés miatt az oldalunk 2026. február 9-én 12 órától várhatóan 20 óráig nem lesz elérhető. Köszönjük megértésed!
Seven Pearl

Eladó téglalakás
Budapest, XII. kerület, Virányos

+ 10 kép 1/13
388 551 450 Ft388.551 M Ft 3 597 699 Ft/m2
3 szoba
108 m2
építés éve:2025

Részletes adatok

Fűtés: Egyéb
Parkolás: Garázs
Extrák: Lift
Energetikai besorolás: Nem adta meg a hirdető

Az OTP Bank lakáshitel ajánlataFizetett hirdetés

+36 70 442
Heinrich Krisztina
Budapest XIII. kerület Pannónia utca 25 - OTP Ingatlanpont Iroda

Érdekel az OTP Bank kedvezményes lakáshitel ajánlata? *

* A kérdésre „Igen” válasz bejelölése esetén, az „Üzenet küldése” gombra kattintva kijelentem, hogy az OTP Bank Nyrt. Adatkezelési tájékoztatójának tartalmát megismertem és tudomásul vettem.

Eladó téglalakás leírása

VIRÁNYOS VILLAPARK - PRÉMIUM OTTHONOK!
Elindult a Virányos Villapark épülő lakásainak értékesítése! Részletes információk, alaprajzok, parkolóhelyek, tárolók a viranyosvillapark oldalon! Várható átadás: 2026. 3. negyedév!
A Virányos Villapark Budapest 12. kerületében, a budai Széll Kálmán térhez közel, mégis csendes környezetben elhelyezkedő prémium minőségű lakópark.
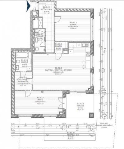
A hirdetésben szereplő lakás, a C épület földszintjén helyezkedik el, DK-i tájolással, 108,48m2 alapterülettel, mely életteret tovább növeli a 32,23m2 alapterületű terasz és a 39,63m2 területű privát kert. A lakás helyiségei: előszoba, amerikai konyhás nappali és étkező, 2 szoba, 2 fürdőszoba, gardrób, kamra, terasz és kert.
A Villaparkban 60-175m2 közötti, N + 1-2-3-4 szobás, kertes, teraszos, erkélyes, tágas tetőteraszos, valamint duplex és penthouse lakások közül választhat. Az elérhető lakásokról érdeklődjön telefonon! A kiválasztott lakáshoz mélygarázs beálló hely és tároló vásárlása kötelező. További beálló helyek és tárolók a készlet erejéig vásárolhatóak.
A villapark főbb jellemzői: parkosított, öntözőrendszerrel ellátott közös kert, csendes környezet, változatos lakás-, terasz- és kertméretek, tágas, napfényes lakások.
A lakások műszaki jellemzői: megújuló energiával előállított hatékony, hőszivattyús hűtő-fűtő rendszer, padlófűtés és mennyezeti fan-coil hűtés a maximális komfort érzetért, lakásonként kialakított hővisszanyerős szellőztetőrendszer az állandó friss levegő biztosításáért, magas minőségű alumínium nyílászárók 3 rétegű üvegezéssel a kiváló hő- és hangszigetelésért, árnyékoló rendszer az optimális fényviszonyok eléréséért, audió-videó kaputelefon, személyre szabható okosotthon rendszer előkészítés, amely lehetővé teszi a lakás teljeskörű vezérlését.
Az ingatlan közvetlen környezetében számos magánóvoda és általános iskola, gimnázium található. Bevásárlási lehetőségként a Budagyöngye Bevásárlóközpont és a szintén közeli Mammut Bevásárló- és Szórakoztató Központ is rendelkezésre áll.
A Virányos Villapark tömegközlekedési eszközzel is könnyen megközelíthető, az 56-os, 59-es, 61-es villamosok, a 22-es, 91-es, 155-ös és 156-os buszok megállói pár perc sétatávolságra találhatók.

Hirdetés feltöltve: 2026. 01. 08. Utoljára módosítva: 2026. 01. 22.

3 szobás téglalakások ára Budapesten

Ebből az összehasonlításból megtudhatod, hogyan viszonyul a lakás ára a környékbeli téglalakások átlagos árához. Ez nem azt jelenti, hogy ennyivel olcsóbb vagy drágább, mint amennyit a lakás ér, hanem hogy ennyivel tér el a környékbeli átlagtól.

Ennek a m² ára
Virányos m² ár
XII. kerület m² ár
Budapest m² ár
3598 e Ft
3341 e Ft -8%
2483 e Ft -45%
1688 e Ft -113%
Ennek az ára
Virányos átlagár
XII. kerület átlagár
Budapest átlagár
388.551 M Ft m Ft
298.3 m Ft -30%
210.9 m Ft -84%
130.6 m Ft -197%

Az ingatlan elhelyezkedése

Cím: Budapest, XII. kerület, Virányos

Eladó ingatlanok a környékről

Eladó téglalakás
Eladó téglalakás

I. kerület, Krisztinaváros, Széna tér

189 M Ft
4 szoba
90 m2
Eladó téglalakás
Eladó téglalakás

IX. kerület

106 M Ft
3 + 1 szoba
83 m2
Eladó téglalakás
Eladó téglalakás

XII. kerület, Széchenyihegy, Ágnes köz

277 M Ft
3 szoba
98 m2
Eladó téglalakás
Eladó téglalakás

III. kerület, Óbuda, Szomolnok utca

89.9 M Ft
2 + 2 szoba
96 m2
Eladó téglalakás
Eladó téglalakás

XII. kerület

321 M Ft
3 szoba
108 m2
Eladó téglalakás
Eladó téglalakás

XII. kerület

199.9 M Ft
6 szoba
145 m2
Eladó téglalakás
Eladó téglalakás

XII. kerület

359.923 M Ft
5 szoba
122 m2
Eladó téglalakás
Eladó téglalakás

XII. kerület

96.9 M Ft
2 + 1 szoba
82 m2
Eladó téglalakás
Eladó téglalakás

V. kerület, Belváros, Belgrád rakpart

78 M Ft
1 + 1 szoba
42 m2
Eladó téglalakás
Eladó téglalakás

XII. kerület, Kútvölgy

598 M Ft
4 szoba
146 m2
Eladó téglalakás
Eladó téglalakás

V. kerület, Belváros, Petőfi Sándor utca

134 M Ft
2 szoba
59 m2
Eladó téglalakás
Eladó téglalakás

I. kerület, Krisztinaváros, Feszty Árpád utca

78.99 M Ft
1 szoba
28 m2
Eladó téglalakás
Eladó téglalakás

XII. kerület, Széchenyihegy, Ágnes köz

475 M Ft
5 szoba
185 m2
Eladó téglalakás
Eladó téglalakás

XII. kerület

650 M Ft
3 szoba
120 m2
Eladó téglalakás
Eladó téglalakás

XII. kerület, Németvölgy, Királyhágó tér 6-7

179.498 M Ft
3 szoba
72 m2
Eladó téglalakás
Eladó téglalakás

XII. kerület

650 M Ft
3 szoba
120 m2
Eladó téglalakás
Eladó téglalakás

XII. kerület, Széchenyihegy, Ágnes köz

203 M Ft
3 szoba
72 m2
Eladó téglalakás
Eladó téglalakás

XII. kerület, Németvölgy, Fodor utca

47.8 M Ft
1 szoba
31 m2
Eladó téglalakás
Eladó téglalakás

XII. kerület, Németvölgy, Királyhágó tér 6-7

195.504 M Ft
3 szoba
72 m2
Eladó családi ház
Eladó családi ház

XXII. kerület, Budafok, Baross utca

222 M Ft
6 + 1 szoba
200 m2
Eladó ipari ingatlan
Eladó ipari ingatlan

XXI. kerület

450 M Ft
2631 m²
1780 m2
Eladó téglalakás
Eladó téglalakás

VI. kerület, Belső Terézváros, Jókai utca

87.6 M Ft
3 szoba
75 m2
Eladó téglalakás
Eladó téglalakás

XII. kerület

203 M Ft
3 szoba
72 m2
Eladó téglalakás
Eladó téglalakás

II. kerület

78.4 M Ft
1 szoba
38 m2

Falusi CSOK ingatlanok

Eladó családi ház
Eladó családi ház

Recsk

35 M Ft
5 szoba
140 m2
Eladó családi ház
Eladó családi ház

Recsk

23 M Ft
3 szoba
98 m2
Eladó családi ház
Eladó családi ház

Kisfalud

91.5 M Ft
2 szoba
70 m2
Eladó téglalakás
Eladó téglalakás

Kőröshegy

83.5 M Ft
2 szoba
65 m2
Eladó családi ház
Eladó családi ház

Szigliget

299 M Ft
3 szoba
95 m2
Eladó családi ház
Eladó családi ház

Pétfürdő

74.9 M Ft
3 szoba
89 m2
Eladó családi ház
Eladó családi ház

Darnózseli

79.9 M Ft
4 szoba
104 m2
Eladó családi ház
Eladó családi ház

Győrság

477 M Ft
15 szoba
1115 m2