BAM Living

Eladó téglalakás
Budapest, VIII. kerület, földszint

+ 17 kép 1/20
64 900 000 Ft64.9 M Ft 954 412 Ft/m2
2 szoba
68 m²
földszint
építés éve:1950

Részletes adatok

Állapot: Átlagos
Fűtés: Gázkonvektor
Emelet: földszint
Komfort: Összkomfortos
Energetikai besorolás: Nem adta meg a hirdető

Az OTP Bank lakáshitel ajánlataFizetett hirdetés

+36 30 357
Bödör Dóra
referens

Érdekel az OTP Bank kedvezményes lakáshitel ajánlata? *

* A kérdésre „Igen” válasz bejelölése esetén, az „Üzenet küldése” gombra kattintva kijelentem, hogy az OTP Bank Nyrt. Adatkezelési tájékoztatójának tartalmát megismertem és tudomásul vettem.

Eladó téglalakás leírása

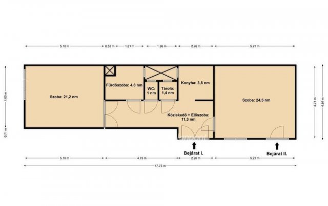
Budapest VIII. kerületében, a Corvin áruház közvetlen közelében megvételre kínálok egy 68 nm alapterületű, magasföldszinti, 2 szobás lakást.

A lakás elosztása kedvező. Jelenleg két külön nyíló szoba, konyha, külön fürdőszoba és wc, valamint egy tároló helyiség található benne. Az ingatlan különlegessége, hogy két bejárattal rendelkezik, így könnyen két külön lakássá alakítható. Ezáltal saját otthonnak és befektetésnek is jó lehetőség.

Az ingatlan jelenlegi állapotában beköltözhető, ugyanakkor átalakítással további lehetőségeket kínál.

A környék infrastruktúrája kiváló. A lakástól 2 perc sétára elérhető a 4-6 villamos, valamint az M3 metró megállója, így a város több pontja gyorsan megközelíthető. A karnyújtásnyira található Corvin sétányon számos kávézó, étterem, üzlet, drogéria és egyéb szolgáltatás érhető el.

Az ingatlan elhelyezkedése egyetemisták számára is kedvező, hiszen a közelben található a Nemzeti Közszolgálati Egyetem és a Pázmány Péter Katolikus Egyetem is. Emiatt kiadásra is jó választás lehet.

Az OTP Ingatlanpont teljes körű ügyintézéssel támogatja Önt az ingatlanvásárlás minden lépésében. Otthon Start Hitelprogram, kedvezményes hitelek, CSOK+, falusi CSOK, lakástakarék, valamint megbízható ügyvédi háttér áll rendelkezésre.

A felújításban is szívesen segítek! Több éve együtt dolgozom megbízható szakemberekkel, akik minden munkálatot precízen elvégeznek, a kisebb javításoktól a teljes átalakításig.

Várom megtisztelő hívását - akár hétvégén is!

Referenciaszám: M324298

Az energetikai tanúsítvány készítése folyamatban van, amint rendelkezésre áll, úgy azzal a hirdetés frissítésre kerül.

Referencia szám: M324298

Hirdetés feltöltve: 2026. 04. 01. Utoljára módosítva: 2026. 05. 13.

2 szobás téglalakások ára Budapesten

Ebből az összehasonlításból megtudhatod, hogyan viszonyul a lakás ára a környékbeli téglalakások átlagos árához. Ez nem azt jelenti, hogy ennyivel olcsóbb vagy drágább, mint amennyit a lakás ér, hanem hogy ennyivel tér el a környékbeli átlagtól.

Ennek a m² ára
VIII. kerület m² ár
Budapest m² ár
954 e Ft
1449 e Ft 34%
1690 e Ft 44%
Ennek az ára
VIII. kerület átlagár
Budapest átlagár
64.9 M Ft m Ft
73.4 m Ft 12%
88.7 m Ft 27%

Az ingatlan elhelyezkedése

Cím: Budapest, VIII. kerület, földszint

Eladó ingatlanok a környékről

VIII. kerület
Eladó téglalakás

Budapest, VIII. kerület

140.152 M Ft
3 szoba
87 m²
VI. kerület
Eladó téglalakás

Budapest, VI. kerület

493 M Ft
5 szoba
285 m²
XV. kerület
Eladó családi ház

Budapest, XV. kerület

119.9 M Ft
5 szoba
144 m²
III. kerület
Eladó téglalakás

Budapest, III. kerület

26 M Ft
1 szoba
26 m²
I. kerület
Eladó téglalakás

Budapest, I. kerület

270 M Ft
3 szoba
87 m²
XII. kerület
Eladó téglalakás

Budapest, XII. kerület

137 M Ft
3 szoba
83 m²
IV. kerület
Eladó téglalakás

Budapest, IV. kerület

52 M Ft
1 szoba
29 m²
VIII. kerület, Palotanegyed, Békési utca
Eladó téglalakás

Budapest, VIII. kerület

44.7 M Ft
2 szoba
42 m²
VIII. kerület
Eladó téglalakás

Budapest, VIII. kerület

199 M Ft
20 szoba
859 m²
VIII. kerület
Eladó téglalakás

Budapest, VIII. kerület

144 M Ft
4 szoba
101 m²
VIII. kerület, Józsefváros, Nagy Fuvaros utca 27
Eladó téglalakás

Budapest, VIII. kerület

129.8 M Ft
4 szoba
172 m²
XIII. kerület, Angyalföld, Szent László út
Eladó téglalakás

Budapest, XIII. kerület

67.5 M Ft
2 szoba
38 m²
XIII. kerület, Újlipótváros, Raoul Wallenberg utca
Eladó téglalakás

Budapest, XIII. kerület

83.5 M Ft
1 szoba
42 m²
XIX. kerület
Eladó családi ház

Budapest, XIX. kerület

33.9 M Ft
1 szoba
25 m²
VII. kerület, Külső Erzsébetváros, István utca
Eladó téglalakás

Budapest, VII. kerület

84 M Ft
2 szoba
47 m²
VII. kerület, Külső Erzsébetváros, Klauzál utca
Eladó téglalakás

Budapest, VII. kerület

63.4 M Ft
1 szoba
39 m²
VIII. kerület
Eladó téglalakás

Budapest, VIII. kerület

67 M Ft
2 szoba
47 m²
VII. kerület, Külső Erzsébetváros, Erzsébet körút
Eladó téglalakás

Budapest, VII. kerület

195 M Ft
4 szoba
93 m²
VIII. kerület
Eladó téglalakás

Budapest, VIII. kerület

105.272 M Ft
3 szoba
69 m²
VIII. kerület, Józsefváros
Eladó téglalakás

Budapest, VIII. kerület

61.6 M Ft
1 szoba
80 m²
XIV. kerület, Alsórákos, Ond vezér útja
Eladó panellakás

Budapest, XIV. kerület

62.6 M Ft
2 szoba
49 m²
XIV. kerület
Eladó téglalakás

Budapest, XIV. kerület

65 M Ft
2 szoba
60 m²
III. kerület
Eladó panellakás

Budapest, III. kerület

64.9 M Ft
3 szoba
50 m²
VIII. kerület
Eladó téglalakás

Budapest, VIII. kerület

123.9 M Ft
3 szoba
98 m²

Falusi CSOK ingatlanok

Bag
Eladó ikerház

Bag

93 M Ft
3 szoba
67 m²
Kétegyháza
Eladó családi ház

Kétegyháza

21 M Ft
3 szoba
105 m²
Beremend, 7827 Beremend, Petőfi Sándor utca 10
Eladó családi ház

Beremend

11.95 M Ft
1 + 1 szoba
124 m²
Balatonszemes
Eladó téglalakás

Balatonszemes

91.5 M Ft
2 szoba
0 m²
Csabacsűd
Eladó családi ház

Csabacsűd

21 M Ft
3 szoba
125 m²
Újkígyós
Eladó családi ház

Újkígyós

29.9 M Ft
4 szoba
145 m²
Ásványráró
Eladó családi ház

Ásványráró

42.5 M Ft
703 m²
69 m²
Szigliget, Soponyai út
Eladó ikerház

Szigliget

429 M Ft
7 + 2 szoba
212 m²