Eladó téglalakás
Budapest, VIII. kerület, szuterén
Részletes adatok
Az OTP Bank lakáshitel ajánlataFizetett hirdetés
Induló törlesztőrészlet
101 262 Ft /hóTörlesztőrészlet a 13. hónaptól
129 106 Ft /hóInduló törlesztőrészlet
135 016 Ft /hóTörlesztőrészlet a 13. hónaptól
172 142 Ft /hóA tájékoztatás nem teljes körű és nem minősül ajánlattételnek. Az OTP Évnyerő Lakáshitelei 1 éves türelmi idős kölcsönök, amellyel az első 12 hónapban alacsonyabb a havi törlesztőrészlet. A tőke törlesztését a 13. hónaptól kell megkezdeni.
Eladó téglalakás leírása
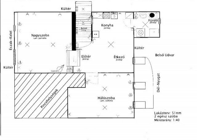
VIII. kerületben, Magdolna-negyed szívében, az Alföldi utcában, alagsori, téglaépítésű, 51 m2-es, 2 szobás, utcára néző, napos-világos fekvésű, alacsony fenntartású, gáz-cirkó fűtésű, felújítandó állapotú, rugalmasan birtokba vehető lakás, beépített konyhával, kulturált lakóközösségű házban eladó!
Az ingatlan per-és tehermentes!
A közös költség 15.000 Ft havonta.
Közlekedés és ellátottság szempontjából központi helyen helyezkedik el az ingatlan.
Az ár, irányár!
Ügyfeleink részére BANKFÜGGETLEN hitel ügyintéző kollégáink szívesen nyújtanak segítséget, hitellel, vagy akár CSOK-kal kapcsolatban is!
További részletekért, hívjon bizalommal! (Akár hétvégén is!)
G.B. ...TOVÁBBI, TÖBBEZRES INGATLAN KÍNÁLAT: www.gdn-ingatlan.hu - GDN azonosító: 383120
Hirdetés feltöltve: 2025. 05. 29. Utoljára módosítva: 2025. 09. 17.
2 szobás téglalakások ára Budapesten
Ebből az összehasonlításból megtudhatod, hogyan viszonyul a lakás ára a környékbeli téglalakások átlagos árához. Ez nem azt jelenti, hogy ennyivel olcsóbb vagy drágább, mint amennyit a lakás ér, hanem hogy ennyivel tér el a környékbeli átlagtól.
Az ingatlan elhelyezkedése
Cím: Budapest, VIII. kerület, szuterén
Eladó ingatlanok a környékről
