Metrodom

Eladó téglalakás
Budapest, IX. kerület, 5. emelet

+ 11 kép 1/14
185 325 000 Ft185.325 M Ft 2 130 172 Ft/m2
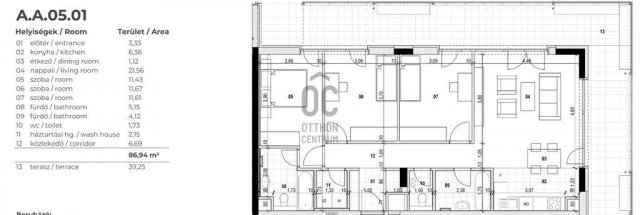
4 szoba
87 m²
5. emelet
építés éve:2025

Részletes adatok

Fűtés: Egyéb
Emelet: 5. emelet
Extrák: Lift
Energetikai besorolás: Nem adta meg a hirdető

Az OTP Bank lakáshitel ajánlataFizetett hirdetés

+36 70 465
Csuha Attila
referens

Érdekel az OTP Bank kedvezményes lakáshitel ajánlata? *

* A kérdésre „Igen” válasz bejelölése esetén, az „Üzenet küldése” gombra kattintva kijelentem, hogy az OTP Bank Nyrt. Adatkezelési tájékoztatójának tartalmát megismertem és tudomásul vettem.

Eladó téglalakás leírása

AZONNAL KÖLTÖZHETŐ | ZÖLD KERTRE NÉZ

Budapest IX. kerületében, a Metrodom Green lakóparkban eladó egy kiváló elosztású, nappali + 3 hálószobás, sarokteraszos otthon, amely csendes, zöld belső kertre néz, délnyugati tájolású, világos és élhető.

Főbb jellemzők:
- nappali + 3 külön nyíló hálószoba
- 2 fürdőszoba
- külön háztartási helyiség
- sarokterasz
- azonnal költözhető
- kiváló alaprajz, jól szeparált privát terek

PROJEKT – ZÖLD OÁZIS A BELVÁROS KÖZELÉBEN
Egy modern, már ÁTADOTT, prémium lakópark, ahol a városi élet kényelme és a természet közelsége találkozik. A gazdag növényzettel kialakított belső kert, a zöld homlokzatok és a közösségi terek valódi nyugalmat adnak – miközben a belváros percek alatt elérhető.

Elérhető rozsdaövezeti kedvezmény:
- 5% ÁFA visszaigényelhető*
- 10% foglaló – 90% fizetés 15–45 napon belül
- ügyvédi díj a vételárban

ÉPÜLET ÉS SZOLGÁLTATÁSOK
- A modern, prémium kategóriás épület 513 lakásos, környezetbarát megoldásokkal felszerelt lakópark.

A lakók kényelmét szolgálja:
- zöld homlokzatok, tetőkertek, díszmedence
- kávézó, fitneszterem, szauna
- közösségi konyha, grill- és tetőterasz
- smart app és okosotthon megoldások
- elektromos alumínium redőnyök (a vételár része)
-24 órás portaszolgálat, csomagpont
- zárt, biztonságos lakókörnyezet
- Energiatakarékos rendszerek, napelemek és korszerű gépészet gondoskodnak az alacsony rezsiről.

5 OK, AMIÉRT JÓ VÁLASZTÁS

belváros közeli elhelyezkedés, kiváló közlekedés
zöld, nyugodt környezet – valódi városi oázis
prémium szolgáltatások egy helyen
alacsony fenntartási költségek
azonnal költözhető, bútorozott állapot

FEJLESZTŐI HÁTTÉR – BIZTONSÁGOS VÁLASZTÁS
- fix ár, nincs utólagos emelés
- saját kivitelezés
- prémium minőségű anyaghasználat
- teljes körű jótállás
- kedvező, rövid fizetési ütemezés

KÖZLEKEDÉS
- 1-es villamos a közelben
- 2-es villamos a Duna-parton
- 24-es villamos – Keleti pályaudvarig
- éjszakai járatok (901, 908)
- GreenGo, MOL Bubi, mikromobilitási pont
- fedett kerékpártároló, elektromos autótöltők

El tudod magad itt képzelni? Akkor ez a különleges lakópark épp Rád vár! Várom hívásod!

* Rozsdaövezeti kedvezmény: magyar magánszemélyek a tulajdonjog bejegyzését követően a vételár 5% ÁFÁ-ját visszaigényelhetik.

185325000 Ft
Csuha Attila +36704545076
Email: csuha.attila@oc.hu
Várom megtisztelő hívását a hét bármely napján!

Referencia szám: U0049323-ZE

Hirdetés feltöltve: 2026. 02. 26. Utoljára módosítva: 2026. 04. 25.

4 szobás téglalakások ára Budapesten

Ebből az összehasonlításból megtudhatod, hogyan viszonyul a lakás ára a környékbeli téglalakások átlagos árához. Ez nem azt jelenti, hogy ennyivel olcsóbb vagy drágább, mint amennyit a lakás ér, hanem hogy ennyivel tér el a környékbeli átlagtól.

Ennek a m² ára
IX. kerület m² ár
Budapest m² ár
2130 e Ft
1600 e Ft -33%
1783 e Ft -19%
Ennek az ára
IX. kerület átlagár
Budapest átlagár
185.325 M Ft m Ft
165.3 m Ft -12%
186.4 m Ft 1%

Az ingatlan elhelyezkedése

Cím: Budapest, IX. kerület, 5. emelet

Eladó ingatlanok a környékről

XVIII. kerület
Eladó téglalakás

Budapest, XVIII. kerület

62.9 M Ft
2 szoba
53 m²
XII. kerület
Eladó téglalakás

Budapest, XII. kerület

108 M Ft
2 szoba
64 m²
IX. kerület, Soroksári út
Eladó téglalakás

Budapest, IX. kerület

109.383 M Ft
2 szoba
53 m²
XI. kerület
Eladó iroda

Budapest, XI. kerület

78 M Ft
61 m²
XX. kerület
Eladó családi ház

Budapest, XX. kerület

119.9 M Ft
8 + 1 szoba
235 m²
II. kerület, Máriaremete, Gyulai Pál utca 4/a
Eladó telek

Budapest, II. kerület

205 M Ft
1368 m²
0 m²
IX. kerület, Soroksári út
Eladó téglalakás

Budapest, IX. kerület

77.172 M Ft
1 szoba
32 m²
IX. kerület
Eladó téglalakás

Budapest, IX. kerület

90 M Ft
2 szoba
55 m²
IX. kerület
Eladó téglalakás

Budapest, IX. kerület

51 M Ft
2 szoba
31 m²
IX. kerület, Ferencváros, Soroksári út
Eladó téglalakás

Budapest, IX. kerület

283.159 M Ft
4 + 1 szoba
147 m²
IX. kerület, Ferencváros, Bárd utca 7
Eladó téglalakás

Budapest, IX. kerület

78.8 M Ft
1 + 1 szoba
35 m²
X. kerület
Eladó téglalakás

Budapest, X. kerület

99.99 M Ft
4 szoba
76 m²
IX. kerület, Soroksári út
Eladó téglalakás

Budapest, IX. kerület

117.207 M Ft
2 szoba
65 m²
IX. kerület, Ferencváros, Soroksári út
Eladó téglalakás

Budapest, IX. kerület

102.162 M Ft
1 + 1 szoba
56 m²
IX. kerület, Ferencváros, Soroksári út
Eladó téglalakás

Budapest, IX. kerület

97.007 M Ft
1 + 1 szoba
54 m²
VIII. kerület, Józsefváros, József körút
Eladó téglalakás

Budapest, VIII. kerület

61 M Ft
1 + 1 szoba
57 m²
IX. kerület, Soroksári út
Eladó téglalakás

Budapest, IX. kerület

79.88 M Ft
1 szoba
32 m²
IX. kerület, Ferencváros, Haller utca
Eladó téglalakás

Budapest, IX. kerület

51 M Ft
2 szoba
31 m²
XIV. kerület
Eladó téglalakás

Budapest, XIV. kerület

64 M Ft
2 szoba
53 m²
IX. kerület
Eladó téglalakás

Budapest, IX. kerület

120 M Ft
2 szoba
57 m²
IX. kerület, Ferencváros, Soroksári út
Eladó téglalakás

Budapest, IX. kerület

155.068 M Ft
2 + 1 szoba
84 m²
X. kerület
Eladó téglalakás

Budapest, X. kerület

53.2 M Ft
2 szoba
51 m²
IX. kerület, Soroksári út
Eladó téglalakás

Budapest, IX. kerület

77.849 M Ft
1 szoba
37 m²
IX. kerület
Eladó téglalakás

Budapest, IX. kerület

74.9 M Ft
2 szoba
50 m²

Falusi CSOK ingatlanok

Bácsbokod
Eladó családi ház

Bácsbokod

55 M Ft
6 szoba
250 m²
Tápióbicske
Eladó családi ház

Tápióbicske

79.9 M Ft
3 szoba
160 m²
Tabdi
Eladó családi ház

Tabdi

95 M Ft
45 szoba
1490 m²
Felsőlajos
Eladó családi ház

Felsőlajos

100 M Ft
4 szoba
140 m²
Jászkarajenő
Eladó családi ház

Jászkarajenő

17.5 M Ft
2 + 1 szoba
47 m²
Zsámbok
Eladó családi ház

Zsámbok

63.5 M Ft
4 szoba
108 m²
Balatonakali
Eladó ikerház

Balatonakali

560 M Ft
4 szoba
140 m²
Hosszúhetény, Petőfi Sándor utca 10
Eladó családi ház

Hosszúhetény

20.65 M Ft
4 + 2 szoba
133 m²