Aerogate Homes

Eladó téglalakás
Budapest, IX. kerület, félemelet

+ 17 kép 1/20
56 500 000 Ft56.5 M Ft 2 017 857 Ft/m2
1 szoba
28 m²
félemelet
építés éve:2007

Részletes adatok

Fűtés: Házközponti egyedi méréssel
Emelet: félemelet
Közmű: Villany, Csatorna
Energetikai besorolás: Nem adta meg a hirdető

Az OTP Bank lakáshitel ajánlataFizetett hirdetés

+36 70 465
Cseh Attila
referens

Érdekel az OTP Bank kedvezményes lakáshitel ajánlata? *

* A kérdésre „Igen” válasz bejelölése esetén, az „Üzenet küldése” gombra kattintva kijelentem, hogy az OTP Bank Nyrt. Adatkezelési tájékoztatójának tartalmát megismertem és tudomásul vettem.

Eladó téglalakás leírása

Megtaláltad első lakásodat egy olyan helyen, ahol a városi élet pezsgése és a csendes pihenés tökéletes harmóniában találkozik.

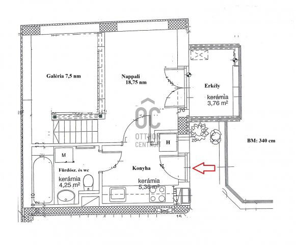
Ez a 28.36 nm-es, egy szobás + 7,5 nm-es galériás lakás Budapest 09. kerületének Középső Ferencváros részén várja új tulajdonosát.
A lakás jó állapotú a beépített bútorok és szekrények révén maximálisan kihasználhatod a teret.

Az ingatlan a nettó területén felül 3.76 nm-es erkéllyel rendelkezik, amely egy hangulatos, növényekkel teli belső udvarra néz.

A társasház nagyon jó állapotú, rendezett és karbantartott, 2007-ben épült.
A házközponti fűtés egyedi méréssel működik, így mindig a legoptimálisabb hőmérsékletet biztosítja számodra.
Közös költség 22.000 Ft, mely magába foglalja a felújítási alapot, szemét díjat, takarítást, közös terek világítását és a közös képviselet díjazását is.

Belmagasság 340 cm, a galéria magassága 150 cm.

A lakás tehermentes, így a vásárlás folyamata gyors és zökkenőmentes lehet.

A környék ellátottsága kiváló, hiszen számos bolt, étterem és szolgáltatás a közvetlen közelben található. A belvárosi elhelyezkedés lehetővé teszi, hogy mindent könnyedén elérj, legyen szó munkáról vagy szórakozásról.

A közlekedési csomópont közelsége (Corvin-negyed) miatt a kitűnő közlekedés garantált, így akár autóval, akár tömegközlekedéssel könnyedén elérheted a város bármely pontját.

A csendes környék lehetőséget biztosít arra, hogy a város nyüzsgésétől távol, mégis közel élhess. Itt nemcsak a mindennapi élet kényelme, hanem a biztonság is garantált.

Ez a lakás ideális választás lehet első lakásvásárlók számára, akik szeretnének egy olyan otthont, ahol a városi élet minden előnye elérhető, de a nyugalom is garantált.
Illetve befektetésnek is remek vétel egyetemek közelsége miatt.

Ha bármilyen kérdésed van, vagy szeretnéd megtekinteni ezt a remek lehetőséget, akkor várom megkeresésedet hétköznap és szombaton is!

Hirdetés feltöltve: 2026. 02. 25. Utoljára módosítva: 2026. 04. 01.

1 szobás téglalakások ára Budapesten

Ebből az összehasonlításból megtudhatod, hogyan viszonyul a lakás ára a környékbeli téglalakások átlagos árához. Ez nem azt jelenti, hogy ennyivel olcsóbb vagy drágább, mint amennyit a lakás ér, hanem hogy ennyivel tér el a környékbeli átlagtól.

Ennek a m² ára
IX. kerület m² ár
Budapest m² ár
2018 e Ft
1922 e Ft -5%
1708 e Ft -18%
Ennek az ára
IX. kerület átlagár
Budapest átlagár
56.5 M Ft m Ft
65.2 m Ft 13%
58.7 m Ft 4%

Az ingatlan elhelyezkedése

Cím: Budapest, IX. kerület, félemelet

Eladó ingatlanok a környékről

IX. kerület, Ferencváros, Soroksári út
Eladó téglalakás

Budapest, IX. kerület

283.935 M Ft
4 + 1 szoba
149 m²
IX. kerület, Soroksári út
Eladó téglalakás

Budapest, IX. kerület

119.917 M Ft
2 szoba
71 m²
III. kerület, Aranyhegy, III. ker, Ürömhegy
Eladó ikerház

Budapest, III. kerület

298 M Ft
5 szoba
170 m²
XIII. kerület
Eladó panellakás

Budapest, XIII. kerület

83.9 M Ft
1 + 2 szoba
58 m²
IX. kerület, Ferencváros, Haller utca
Eladó téglalakás

Budapest, IX. kerület

51 M Ft
2 szoba
31 m²
IX. kerület, Soroksári út
Eladó téglalakás

Budapest, IX. kerület

123.982 M Ft
2 szoba
71 m²
IX. kerület, Ferencváros, Soroksári út
Eladó téglalakás

Budapest, IX. kerület

155.068 M Ft
2 + 1 szoba
84 m²
XV. kerület
Eladó téglalakás

Budapest, XV. kerület

61.9 M Ft
2 szoba
37 m²
XVIII. kerület, Liptáktelep, Darányi Ignác utca
Eladó téglalakás

Budapest, XVIII. kerület

63.9 M Ft
2 szoba
56 m²
III. kerület, Aranyhegy, III. kerület, Aranyhegy
Eladó ikerház

Budapest, III. kerület

324.9 M Ft
4 szoba
148 m²
IX. kerület, Soroksári út
Eladó téglalakás

Budapest, IX. kerület

79.203 M Ft
1 szoba
30 m²
IX. kerület
Eladó téglalakás

Budapest, IX. kerület

120 M Ft
2 szoba
57 m²
III. kerület, Aranyhegy, III. kerület, Aranyhegy
Eladó ikerház

Budapest, III. kerület

330 M Ft
5 szoba
198 m²
IX. kerület, Ferencváros, Soroksári út
Eladó téglalakás

Budapest, IX. kerület

97.007 M Ft
1 + 1 szoba
54 m²
XIII. kerület
Eladó téglalakás

Budapest, XIII. kerület

99.9 M Ft
3 szoba
57 m²
XIV. kerület
Eladó telek

Budapest, XIV. kerület

129.9 M Ft
464 m²
0 m²
XIV. kerület
Eladó téglalakás

Budapest, XIV. kerület

33.99 M Ft
1 szoba
26 m²
III. kerület, Aranyhegy, III. kerület, Aranyhegy
Eladó ikerház

Budapest, III. kerület

350 M Ft
5 szoba
210 m²
IX. kerület, Ferencváros, Soroksári út
Eladó téglalakás

Budapest, IX. kerület

102.162 M Ft
1 + 1 szoba
56 m²
XXI. kerület
Eladó téglalakás

Budapest, XXI. kerület

64.7 M Ft
3 szoba
64 m²
IX. kerület
Eladó téglalakás

Budapest, IX. kerület

90 M Ft
2 szoba
55 m²
XX. kerület, Kossuthfalva, Mártírok útja
Eladó családi ház

Budapest, XX. kerület

200 M Ft
2 + 2 szoba
160 m²
VIII. kerület
Eladó téglalakás

Budapest, VIII. kerület

98.5 M Ft
4 szoba
102 m²
XIX. kerület
Eladó családi ház

Budapest, XIX. kerület

65 M Ft
2 szoba
56 m²

Falusi CSOK ingatlanok

Tápióság
Eladó családi ház

Tápióság

59.9 M Ft
4 szoba
99 m²
Szentmártonkáta
Eladó családi ház

Szentmártonkáta

51.9 M Ft
5 szoba
150 m²
Székkutas
Eladó családi ház

Székkutas

12.5 M Ft
2 szoba
70 m²
Iklad
Eladó családi ház

Iklad

60 M Ft
3 szoba
76 m²
Kenyeri
Eladó családi ház

Kenyeri

21.8 M Ft
2 szoba
75 m²
Nemesapáti, Fő utca
Eladó családi ház

Nemesapáti

11 M Ft
2 szoba
66 m²
Somlójenő
Eladó családi ház

Somlójenő

64.9 M Ft
4 szoba
221 m²
Sály, Kossuth Lajos 128
Eladó családi ház

Sály

28.875 M Ft
6 szoba
160 m²