Stay Family Park

Eladó téglalakás
Budapest, IX. kerület, 1. emelet

+ 11 kép 1/14
99 900 000 Ft99.9 M Ft 1 447 826 Ft/m2
3 + 1 szoba
69 m2
1. emelet
építés éve:1920

Részletes adatok

Fűtés: Gázkazán
Energetikai besorolás: Nem adta meg a hirdető

Az OTP Bank lakáshitel ajánlataFizetett hirdetés

+36 70 942
Kalmár Edit Virág
Szeged Széchenyi tér 6 - OTP Ingatlanpont Iroda

Érdekel az OTP Bank kedvezményes lakáshitel ajánlata? *

* A kérdésre „Igen” válasz bejelölése esetén, az „Üzenet küldése” gombra kattintva kijelentem, hogy az OTP Bank Nyrt. Adatkezelési tájékoztatójának tartalmát megismertem és tudomásul vettem.

Eladó téglalakás leírása

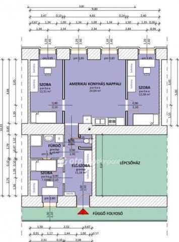
Eladó lakás a Kálvin tér közelében - polgári hangulat, tágas terek!!!

Budapest szívében, a Kálvin tér közvetlen közelében eladó egy 72 nm-es, téglaépítésű, polgári lakás, amely a múlt század eleganciáját ötvözi a modern kényelmi megoldásokkal.

A lakás 3 egész szobával és 1 félszobával rendelkezik, a 4,5 méteres belmagasságnak köszönhetően rendkívül tágas és világos tereket biztosít.

A lakás duplakomfortos, gáz-cirkó fűtéssel felszerelt, belső és külső állapota is jó, így azonnal költözhető. Az ingatlan teljesen bútorozott és berendezett.

Nagy előny: jelenleg is megbízható bérlők lakják, akik szívesen maradnának, amennyiben új tulajdonosa befektetési célból vásárolja meg a lakást. Ez biztos, azonnali és folyamatos hozamot jelenthet a leendő befektető számára.

A társasház rendezett, zárt lépcsőházzal rendelkezik, a közös költség mindössze 15.000 Ft. Parkolás közterületen, fizetős zónában lehetséges.

Főbb jellemzők:

72 nm-es téglaépítésű lakás

3 szoba + 1 félszoba

4,5 nm-es belmagasság, polgári hangulat

Duplakomfort, gáz-cirkó fűtés

Bútorozott, azonnal költözhető

Jó állapotban, rendezett társasház

Stabil, bent lakó bérlők, biztos hozam befektetőknek

Kiváló közlekedés, Kálvin tér pár perc sétára

Ez a lakás igazi ritkaság a belvárosban: tágas, napfényes, polgári stílusú otthon, amely befektetőknek és saját célra vásárlóknak egyaránt ideális választás.

Hirdetés feltöltve: 2025. 10. 13. Utoljára módosítva: 2025. 12. 19.

4 szobás téglalakások ára Budapesten

Ebből az összehasonlításból megtudhatod, hogyan viszonyul a lakás ára a környékbeli téglalakások átlagos árához. Ez nem azt jelenti, hogy ennyivel olcsóbb vagy drágább, mint amennyit a lakás ér, hanem hogy ennyivel tér el a környékbeli átlagtól.

Ennek a m² ára
IX. kerület m² ár
Budapest m² ár
1448 e Ft
1601 e Ft 10%
1736 e Ft 17%
Ennek az ára
IX. kerület átlagár
Budapest átlagár
99.9 M Ft m Ft
171.8 m Ft 42%
181.7 m Ft 45%

Az ingatlan elhelyezkedése

Cím: Budapest, IX. kerület, 1. emelet

Eladó ingatlanok a környékről

Eladó téglalakás
Eladó téglalakás

XIV. kerület, Herminamező

84.9 M Ft
3 szoba
49 m2
Eladó téglalakás
Eladó téglalakás

IX. kerület, Ferencváros, Lechner Ödön fasor

299 M Ft
4 szoba
273 m2
Eladó téglalakás
Eladó téglalakás

IX. kerület, Vágóhíd utca

153.5 M Ft
3 szoba
74 m2
Eladó téglalakás
Eladó téglalakás

VI. kerület, Külső Terézváros, Szív utca

119.5 M Ft
3 szoba
94 m2
Eladó téglalakás
Eladó téglalakás

VII. kerület, Belső Erzsébetváros, Erzsébet körút

89.9 M Ft
1 + 1 szoba
71 m2
Eladó téglalakás
Eladó téglalakás

IX. kerület

64.9 M Ft
3 szoba
80 m2
Eladó téglalakás
Eladó téglalakás

XIII. kerület, Vizafogó

98 M Ft
3 szoba
96 m2
Eladó téglalakás
Eladó téglalakás

IX. kerület

95 M Ft
2 szoba
55 m2
Eladó téglalakás
Eladó téglalakás

IX. kerület, Ferencváros, Haller utca

51 M Ft
2 szoba
31 m2
Eladó téglalakás
Eladó téglalakás

V. kerület, Belváros, Belgrád rakpart

78 M Ft
1 + 1 szoba
42 m2
Eladó téglalakás
Eladó téglalakás

IX. kerület, Ferencváros, Soroksári út

155.068 M Ft
2 + 1 szoba
84 m2
Eladó téglalakás
Eladó téglalakás

XIII. kerület, Angyalföld, Fiastyúk utca

39.9 M Ft
1 + 1 szoba
34 m2
Eladó téglalakás
Eladó téglalakás

VI. kerület, Külső Terézváros, Szófia utca

114.9 M Ft
4 szoba
103 m2
Eladó téglalakás
Eladó téglalakás

IV. kerület, Újpest, Kassai utca

84.9 M Ft
2 + 1 szoba
71 m2
Eladó téglalakás
Eladó téglalakás

VII. kerület, Külső Erzsébetváros, Kazinczy utca

47.9 M Ft
1 szoba
23 m2
Eladó téglalakás
Eladó téglalakás

IV. kerület, Káposztásmegyer, Károlyi István utca

62 M Ft
1 szoba
34 m2
Eladó téglalakás
Eladó téglalakás

IX. kerület

145 M Ft
4 szoba
106 m2
Eladó téglalakás
Eladó téglalakás

V. kerület, Belváros, Petőfi Sándor utca

134 M Ft
2 szoba
59 m2
Eladó téglalakás
Eladó téglalakás

IX. kerület, Ferencváros, Soroksári út

205.023 M Ft
3 + 1 szoba
145 m2
Eladó téglalakás
Eladó téglalakás

X. kerület, Gyárdűlő

79.9 M Ft
2 szoba
52 m2
Eladó téglalakás
Eladó téglalakás

VII. kerület, Belső Erzsébetváros, Erzsébet körút

160 M Ft
3 szoba
88 m2
Eladó téglalakás
Eladó téglalakás

IX. kerület, Vágóhíd utca

184.94 M Ft
4 szoba
102 m2
Eladó téglalakás
Eladó téglalakás

XIV. kerület, Kiszugló, Kövér Lajos utca

168 M Ft
3 + 1 szoba
84 m2
Eladó téglalakás
Eladó téglalakás

IX. kerület, Ferencváros, Soroksári út

102.162 M Ft
1 + 1 szoba
56 m2

Falusi CSOK ingatlanok

Eladó családi ház
Eladó családi ház

Hahót

64.9 M Ft
5 szoba
118 m2
Eladó családi ház
Eladó családi ház

Vilonya

29 M Ft
2 szoba
70 m2
Eladó családi ház
Eladó családi ház

Tabajd

79 M Ft
4 szoba
82 m2
Eladó családi ház
Eladó családi ház

Enese

78.9 M Ft
4 szoba
90 m2
Eladó családi ház
Eladó családi ház

Egerszólát

45 M Ft
3 szoba
120 m2
Eladó családi ház
Eladó családi ház

Somogygeszti

38.6 M Ft
3 + 1 szoba
98 m2
Eladó családi ház
Eladó családi ház

Mezőfalva

39 M Ft
3 szoba
77 m2
Eladó családi ház
Eladó családi ház

Petrivente, Kossuth Lajos utca

31.9 M Ft
3 szoba
127 m2