Pesti Házak

Eladó téglalakás
Budapest, II. kerület, Országút, földszint

+ 17 kép 1/20
128 990 000 Ft128.99 M Ft 1 592 469 Ft/m2
3 szoba
81 m2
földszint
építés éve:1910

Részletes adatok

Fűtés: Házközponti
Közmű: Gáz, Villany, Csatorna
Energetikai besorolás: Nem adta meg a hirdető
Zenga Premier

Friss hirdetések, amiket nem találsz meg más ingatlankereső portálon.

Fedezd fel elsőként a Zenga Premier címkés eladó ingatlanokat!

További részletek a zenga.hu-n

Az OTP Bank lakáshitel ajánlataFizetett hirdetés

+36 70 465
Sulok Bence
Otthon Centrum - Bicskei utca

Érdekel az OTP Bank kedvezményes lakáshitel ajánlata? *

* A kérdésre „Igen” válasz bejelölése esetén, az „Üzenet küldése” gombra kattintva kijelentem, hogy az OTP Bank Nyrt. Adatkezelési tájékoztatójának tartalmát megismertem és tudomásul vettem.

Eladó téglalakás leírása

Budapest II. kerületének központi részén, Rózsadomb és Országút városrész határán keresi új tulajdonosát egy 81 m2-es, egyedi adottságokkal rendelkező, 3 szobás, felújítandó állapotú nagypolgári lakás. Ha központi, jó közlekedéssel rendelkező, magas presztízsű helyen szeretné kialakítani új otthonát vagy irodáját ezt az ingatlant feltétlenül nézze meg!

KÖRNYÉK és KÖZLEKEDÉS:
II. kerület, Rózsadomb és Országút határán, Buday László utca.
Buda belső, frekventált részén található kedvelt környék a Mechwart liget és a Széna tér közvetlen közelében.
Kiváló infrastruktúrával és közlekedéssel rendelkező, polgári hangulatú, magas presztízsű terület.
Biztonságos, rendezett környék, kellemes, csendes mellékutcákkal, kevés zajjal és sok zölddel.
A lakástól néhány perce elérhető minden, ami a hétköznapokhoz szükséges.
A Mammut bevásárlóközpont 7 perc, a Mechwart tér 3 perces sétatávolság.
4 perces séta a 17, 4, és 6-os villamos járatok megállója, melyekkel a belváros könnyen megközelíthető.

TÁRSASHÁZ:
1910-es évek körül épült, 6 szintes, liftes téglaépület.
Stílusos társasház, külső és belső homlokzata jó állapotú.
Műszakilag rendszeresen karbantartott, gondozott épület.
Lépcsőháza tiszta és rendezett.
Lakóközössége kultúrált, vegyes korosztály.

LAKÁS:
Magasföldszinti, 81 m2-es, 3 szobás, nagypolgári stílusú ingatlan.
Tulajdoni lapon földszinti, de ez a természetben első emeletnek felel meg.
A társasházban van lift, amivel a lakásig is el lehet jutni.
Az ingatlan műszakilag és esztétikailag is felújítandó állapotú.
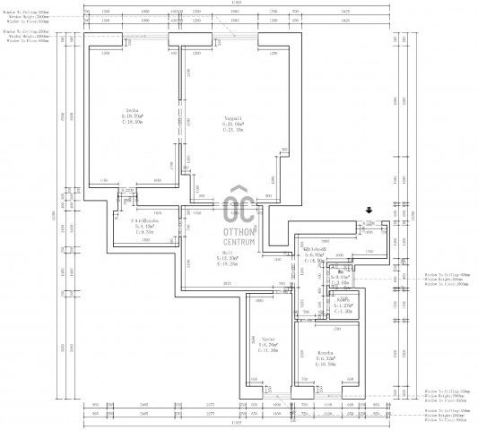
Jelenlegi felosztása: közlekedő, 3 szoba, hall, konyha, kamra, fürdőszoba, WC.
Tájolása keleti, hatalmas ablakokkal és világos terekkel rendelkezik.
A szobák ablakai két utcára néző fa nyílászárók, koruknak megfelelő állapotban vannak.
A szobák parkettával, a konyha, a kamra, a fürdőszoba és a WC járólappal burkolt.
Belmagassága 320 cm, igény esetén fekvő galéria kialakítható.
Fűtését házközponti kazán, a hő-leadást radiátorok, a melegvíz ellátást villanybojler biztosítja.
Közös költsége 43.700 Ft/hó, ami tartalmazza a fűtés általányt és a vízdíjat is.

AZ INGATLAN MEGTEKINTHETŐ:
Személyesen
Online személyes bejelentkezéssel

FINANSZÍROZÁSI KÉRDÉSEKBEN – ONLINE ÜGYINTÉZÉSSEL IS – SEGÍTÜNK!
Bank-független hitelcenterünk díjmentesen versenyezteti az összes bank és hitelintézet ajánlatát.
Önnek csak annyi a dolga, hogy egyeztet munkatársunkkal, majd kiválasztja a hosszú távon is legkedvezőbb konstrukciót.
Szakértőink 20+ év tapasztalattal, fogyasztóbarát lakáshitelekkel, babaváró hitellel, teljes körű CSOK Plusz és OTTHON START program ügyintézéssel várják.
Időpont-egyeztetéssel munkaidő után is elérhetők.

Kérdés esetén és megtekintési időponttal kapcsolatban várom hívását!

Ez az ingatlan a "Felező csomag" megbízási portfólióhoz tartozik. Részletek az Otthon Centrum weboldalán.

Hirdetés feltöltve: 2025. 11. 25.

3 szobás téglalakások ára Budapesten

Ebből az összehasonlításból megtudhatod, hogyan viszonyul a lakás ára a környékbeli téglalakások átlagos árához. Ez nem azt jelenti, hogy ennyivel olcsóbb vagy drágább, mint amennyit a lakás ér, hanem hogy ennyivel tér el a környékbeli átlagtól.

Ennek a m² ára
Országút m² ár
II. kerület m² ár
Budapest m² ár
1592 e Ft
1773 e Ft 10%
2131 e Ft 25%
1692 e Ft 6%
Ennek az ára
Országút átlagár
II. kerület átlagár
Budapest átlagár
128.99 M Ft m Ft
148.3 m Ft 13%
188.8 m Ft 32%
131.9 m Ft 2%

Az ingatlan elhelyezkedése

Cím: Budapest, II. kerület, Országút, földszint

Eladó ingatlanok a környékről

Eladó téglalakás
Eladó téglalakás

IX. kerület, Ferencváros, Soroksári út 58

105.998 M Ft
1 + 1 szoba
56 m2
Eladó téglalakás
Eladó téglalakás

II. kerület, Zöldmál, Buda II. ker. Guggerhegy

330 M Ft
6 szoba
208 m2
Eladó téglalakás
Eladó téglalakás

II. kerület

247.5 M Ft
3 szoba
83 m2
Eladó téglalakás
Eladó téglalakás

IX. kerület, Ferencváros, Soroksári út 58

206.782 M Ft
2 + 1 szoba
86 m2
Eladó téglalakás
Eladó téglalakás

II. kerület, Rózsadomb

700 M Ft
4 szoba
236 m2
Eladó téglalakás
Eladó téglalakás

II. kerület

296.4 M Ft
4 szoba
97 m2
Eladó téglalakás
Eladó téglalakás

II. kerület

219 M Ft
2 szoba
128 m2
Eladó téglalakás
Eladó téglalakás

II. kerület, Rózsadomb

187 M Ft
2 szoba
64 m2
Eladó téglalakás
Eladó téglalakás

II. kerület

447.2 M Ft
5 szoba
147 m2
Eladó téglalakás
Eladó téglalakás

II. kerület, Rózsadomb

139.68 M Ft
3 szoba
66 m2
Eladó téglalakás
Eladó téglalakás

II. kerület

325 M Ft
4 szoba
156 m2
Eladó téglalakás
Eladó téglalakás

III. kerület, Csillaghegy, Pusztakúti út 12-30

142.344 M Ft
3 szoba
82 m2
Eladó téglalakás
Eladó téglalakás

II. kerület

329 M Ft
4 + 1 szoba
153 m2
Eladó téglalakás
Eladó téglalakás

II. kerület

440.143 M Ft
2 szoba
221 m2
Eladó családi ház
Eladó családi ház

XX. kerület

137.9 M Ft
4 szoba
118 m2
Eladó téglalakás
Eladó téglalakás

II. kerület, Rózsadomb, Szemlőhegy

310 M Ft
4 szoba
142 m2
Eladó téglalakás
Eladó téglalakás

IX. kerület, József Attila lakótelep

74.9 M Ft
2 szoba
51 m2
Eladó téglalakás
Eladó téglalakás

IX. kerület, Ferencváros, Soroksári út 58

98.805 M Ft
1 + 1 szoba
56 m2
Eladó téglalakás
Eladó téglalakás

XVIII. kerület

45.9 M Ft
1 szoba
37 m2
Eladó téglalakás
Eladó téglalakás

II. kerület

230 M Ft
3 szoba
120 m2
Eladó téglalakás
Eladó téglalakás

IX. kerület, Ferencváros, Soroksári út 58

209.135 M Ft
2 + 1 szoba
92 m2
Eladó téglalakás
Eladó téglalakás

XVIII. kerület

79.9 M Ft
3 szoba
59 m2
Eladó téglalakás
Eladó téglalakás

IX. kerület, Ferencváros, Soroksári út 58

159.819 M Ft
2 + 1 szoba
76 m2
Eladó téglalakás
Eladó téglalakás

II. kerület

639.408 M Ft
5 szoba
280 m2

Falusi CSOK ingatlanok

Eladó családi ház
Eladó családi ház

Gyömöre

45.99 M Ft
2 szoba
118 m2
Eladó családi ház
Eladó családi ház

Ceglédbercel

64.9 M Ft
3 szoba
87 m2
Eladó családi ház
Eladó családi ház

Magyarszék

48.5 M Ft
3 + 1 szoba
86 m2
Eladó családi ház
Eladó családi ház

Darnózseli

79.9 M Ft
4 szoba
104 m2
Eladó családi ház
Eladó családi ház

Pápateszér

28.99 M Ft
4 + 1 szoba
151 m2
Eladó családi ház
Eladó családi ház

Márianosztra

85 M Ft
6 szoba
198 m2
Eladó családi ház
Eladó családi ház

Vasvár

64.9 M Ft
3 szoba
91 m2
Eladó családi ház
Eladó családi ház

Tápióság

62 M Ft
4 szoba
72 m2