Pesti Házak

Eladó sorház
Debrecen

+ 6 kép 1/9
134 990 000 Ft134.99 M Ft 1 153 761 Ft/m2
4 szoba
117 m2
építés éve:2023

Részletes adatok

Telekméret: 220 m2
Fűtés: Gázkazán
Energetikai besorolás: Nem adta meg a hirdető

Az OTP Bank lakáshitel ajánlataFizetett hirdetés

+36 70 467
Kecskés Judit
Openhouse Ingatlan Debrecen Hadházi út 1-3

Érdekel az OTP Bank kedvezményes lakáshitel ajánlata? *

* A kérdésre „Igen” válasz bejelölése esetén, az „Üzenet küldése” gombra kattintva kijelentem, hogy az OTP Bank Nyrt. Adatkezelési tájékoztatójának tartalmát megismertem és tudomásul vettem.

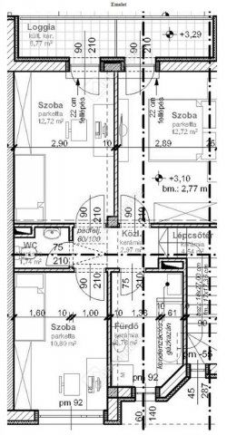
Eladó sorház leírása

Az Openhouse Debrecen Hadházi úti Ingatlaniroda kínálatában eladó a #160929 hivatkozási számú debreceni sorház.

Kulcsrakész állpotban, magas minőségű beépített anyagokkal, magas műszaki tartalommal rendelkezeő sorház!

Debrecenben a Hatvan utcai kert kedvelt részén eladó ez a modern külső - belső kialakítású sorházi lakás!

- A sorházi lakás 117 nm - es

- A lakások tervezése, kialakítása igazodik a mai elvárásokhoz:

- Az alsó szinten található az egy légtérben kialakított nappali-konyha-étkező egysége, melyhez egy 10 nm - es burkolt terasz kapcsolódik

- Ezen a szinten kerül kialakításra egy WC, kézmosóval és kisebb lépcső alatti tároló

- Az emeleten 3 hálószoba, egy igazán tágas fürdőszoba, és külön helyiségben WC kézmosóval lesz kialakítva

- Az emeleti hálószobákból kettőhöz egy 7 nm - es loggia kapcsolódik

- A sorházi lakáshoz 220 nm -es kert, és különálló garázs tartozik

- A lakás Viesmann típusú egyedi gáz-cirkó fűtési rendszerrel rendelkezik

- A hűtésről Gree Syen Bora+ klíma gondoskodik.

- A ház helyiségei magas minőségű hidegburkolattal illetve Egger pro parkettával lesz burkolva (9-12 000.-/nm)

- Fürdőszobai felszereltség:

- Ariel kád, Villroy&Boch kézmosó, Hansgorhe csaptelepek, Alföldi KOMBIPACK FORMO fali WC-k

- A lakásokra támogatott CSOK+ hitel igényelhető

Ha felkeltette érdeklődését ez az eladó debreceni sorház, vagy bármely más sorház és bővebb információt szeretne, keressen bizalommal.Hivatkozási szám: #160929

Az Openhouse Debrecen Hadházi úti Ingatlaniroda tagjaként várom Önt az országos hálózatunk teljes kínálatával.

A sorház vásárláshoz hitelt igényelne? Ingyenes hitelközvetítéssel segít Önnek bankfüggetlen hitelszakértőnk.

További szolgáltatásainkkal (pl. értékbecslés, energetikai tanúsítvány, jogi háttér) is segítjük Önt a vásárlásban.
Az otthon érték. Az ingatlan üzlet.

Hirdetés feltöltve: 2026. 01. 05. Utoljára módosítva: 2026. 01. 07.

4 szobás sorházak ára Debrecenben

Ebből az összehasonlításból megtudhatod, hogyan viszonyul a lakás ára a környékbeli sorházak átlagos árához. Ez nem azt jelenti, hogy ennyivel olcsóbb vagy drágább, mint amennyit a lakás ér, hanem hogy ennyivel tér el a környékbeli átlagtól.

Ennek a m² ára
Debrecen m² ár
1154 e Ft
1102 e Ft -5%
Ennek az ára
Debrecen átlagár
134.99 M Ft m Ft
135.6 m Ft 0%

Az ingatlan elhelyezkedése

Cím: Debrecen

Eladó sorházak a környékről

Eladó sorház
Eladó sorház

Hajdúnánás

52.6 M Ft
4 szoba
87 m2
Eladó sorház
Eladó sorház

Hajdúszoboszló

105 M Ft
1 + 2 szoba
123 m2
Eladó sorház
Eladó sorház

Debrecen

166.95 M Ft
5 szoba
180 m2
Eladó sorház
Eladó sorház

Debrecen

85 M Ft
4 + 1 szoba
98 m2
Eladó sorház
Eladó sorház

Debrecen, Kerekestelep, Mikepercsi utca 7/a

260 M Ft
9 szoba
455 m2
Eladó sorház
Eladó sorház

Debrecen

166.95 M Ft
5 szoba
180 m2
Eladó sorház
Eladó sorház

Debrecen

127.9 M Ft
2 + 1 szoba
95 m2
Eladó sorház
Eladó sorház

Téglás

67 M Ft
3 szoba
81 m2
Eladó sorház
Eladó sorház

Debrecen, Vénkert, Botond

134.9 M Ft
5 szoba
162 m2
Eladó sorház
Eladó sorház

Mikepércs

700 M Ft
45 szoba
1150 m2
Eladó sorház
Eladó sorház

Debrecen

127 M Ft
5 szoba
170 m2
Eladó sorház
Eladó sorház

Debrecen, Hatvan utcai kert, Sándor köz

124.9 M Ft
4 szoba
117 m2
Eladó sorház
Eladó sorház

Mikepércs, Debreceni utca

700 M Ft
1 szoba
1150 m2
Eladó sorház
Eladó sorház

Debrecen

127 M Ft
5 szoba
170 m2
Eladó sorház
Eladó sorház

Debrecen

129.9 M Ft
4 szoba
117 m2
Eladó sorház
Eladó sorház

Debrecen

150 M Ft
4 szoba
122 m2
Eladó sorház
Eladó sorház

Debrecen, Hatvan utcai kert, Sándor köz

124.9 M Ft
4 szoba
117 m2
Eladó sorház
Eladó sorház

Debrecen

119.99 M Ft
4 szoba
117 m2
Eladó sorház
Eladó sorház

Debrecen

133 M Ft
3 + 1 szoba
110 m2
Eladó sorház
Eladó sorház

Debrecen

127.9 M Ft
4 szoba
95 m2
Eladó sorház
Eladó sorház

Debrecen

85 M Ft
5 szoba
98 m2
Eladó sorház
Eladó sorház

Debrecen

124.99 M Ft
4 szoba
129 m2
Eladó sorház
Eladó sorház

Debrecen

149.9 M Ft
5 szoba
170 m2
Eladó sorház
Eladó sorház

Debrecen, Kerekestelep, Mikepercsi utca 7/a

260 M Ft
9 szoba
455 m2

Falusi CSOK ingatlanok

Eladó családi ház
Eladó családi ház

Zalaapáti, Bocsota

25 M Ft
2 szoba
55 m2
Eladó családi ház
Eladó családi ház

Röszke

99.99 M Ft
4 szoba
122 m2
Eladó családi ház
Eladó családi ház

Fülöpszállás

299 M Ft
14 + 5 szoba
680 m2
Eladó családi ház
Eladó családi ház

Magyarszombatfa

80 M Ft
3 szoba
90 m2
Eladó családi ház
Eladó családi ház

Sellye

21.6 M Ft
2 szoba
72 m2
Eladó családi ház
Eladó családi ház

Tiszaroff

12.9 M Ft
3 szoba
87 m2
Eladó családi ház
Eladó családi ház

Győrság

475 M Ft
13 szoba
1115 m2
Eladó családi ház
Eladó családi ház

Somogygeszti

38.6 M Ft
3 + 1 szoba
98 m2