Oasis Residence

Eladó sorház
Debrecen

+ 13 kép 1/16
205 000 000 Ft205 M Ft 1 576 923 Ft/m2
4 szoba
130 m2
építés éve:2011

Részletes adatok

Telekméret: 200 m2
Fűtés: Gázkazán
Közmű: Gáz, Villany, Csatorna
Energetikai besorolás: Nem adta meg a hirdető

Az OTP Bank lakáshitel ajánlataFizetett hirdetés

+36 70 465
Gyurka Csaba
referens

Érdekel az OTP Bank kedvezményes lakáshitel ajánlata? *

* A kérdésre „Igen” válasz bejelölése esetén, az „Üzenet küldése” gombra kattintva kijelentem, hogy az OTP Bank Nyrt. Adatkezelési tájékoztatójának tartalmát megismertem és tudomásul vettem.

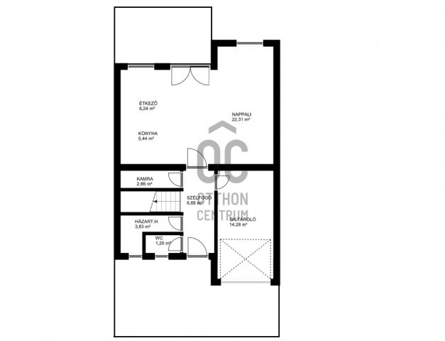
Eladó sorház leírása

Széchenyi kertben Nappali + 3 szobás, 130 nm-es, gardróbos, nagy, esztétikus kialakított terasszal és garázskapcolattal rendelkező erkélyes, stílusos, 2011-es építésű, különleges hangulatú sorházi ingatlan eladó

Lokáció:
-Széchényi kerti, csendes lakókörnyezet
- hangulatos, kertvárosi jellegű utca
- városközpont és autópálya felhajtó egyaránt 10 perc távolságra

Lakóház:
-világos tágas terek, letisztult egyedi design
-földszinten tágas nappali-konyha-étkező
- intim, zárt, nappaliból nyíló egyedi hátsó udvar/terasz
-fölszinten található még zuhanyzós mosdó és az előszobából nyíló gépkocsi tároló
-emeleten 3 teljesértékű, külön bejáratú hálószoba
- tágas, formatervezett, nívós anyagokból megvalósított fürdőszoba

Műszaki tartalom:
- fűtött garázs,
- hőszigetelt, műanyag nyílászárók,
- motoros zsaluzia árnyéékolás
- kondenzációs kazás padló és radiátoros fűtéssel
- hűtő-fűtő klímák és fan-coil hőleadó

Amennyiben fontos Önnek az értékálló lokáció, szeretne egy valóban nem 12 egy tucat, egyedi sorházat, a paraméterek pedig megfelelőek, akkor érdemes személyesen is megtekintenie, hogy beleszerethessen!

Hívjon és egyeztessünk!

Hajdú-Bihar, Debrecen, Széchenyi-kert, 4 szobás, tégla, hőszigetelt, klíma, értékálló, gáz cirkó, erkély, terasz, csendes környék, sorház, egyedi, nívós, különleges

Hirdetés feltöltve: 2025. 05. 26. Utoljára módosítva: 2026. 01. 13.

4 szobás sorházak ára Debrecenben

Ebből az összehasonlításból megtudhatod, hogyan viszonyul a lakás ára a környékbeli sorházak átlagos árához. Ez nem azt jelenti, hogy ennyivel olcsóbb vagy drágább, mint amennyit a lakás ér, hanem hogy ennyivel tér el a környékbeli átlagtól.

Ennek a m² ára
Debrecen m² ár
1577 e Ft
1049 e Ft -50%
Ennek az ára
Debrecen átlagár
205 M Ft m Ft
133.6 m Ft -53%

Az ingatlan elhelyezkedése

Cím: Debrecen

Eladó sorházak a környékről

Eladó sorház
Eladó sorház

Debrecen, Vénkert, Botond

134.9 M Ft
5 szoba
162 m2
Eladó sorház
Eladó sorház

Hajdúszoboszló

105 M Ft
1 + 2 szoba
123 m2
Eladó sorház
Eladó sorház

Debrecen

139.9 M Ft
5 szoba
170 m2
Eladó sorház
Eladó sorház

Debrecen

149.9 M Ft
4 szoba
125 m2
Eladó sorház
Eladó sorház

Hajdúszoboszló

134.99 M Ft
1 szoba
147 m2
Eladó sorház
Eladó sorház

Hajdúsámson

65 M Ft
4 szoba
69 m2
Eladó sorház
Eladó sorház

Debrecen

199 M Ft
5 szoba
207 m2
Eladó sorház
Eladó sorház

Debrecen

139.9 M Ft
5 szoba
170 m2
Eladó sorház
Eladó sorház

Hajdúsámson

65 M Ft
4 szoba
69 m2
Eladó sorház
Eladó sorház

Téglás

67 M Ft
3 szoba
81 m2
Eladó sorház
Eladó sorház

Debrecen

85 M Ft
4 + 1 szoba
98 m2
Eladó sorház
Eladó sorház

Debrecen

127.9 M Ft
4 szoba
95 m2
Eladó sorház
Eladó sorház

Debrecen

124.99 M Ft
4 szoba
129 m2
Eladó sorház
Eladó sorház

Debrecen

139.9 M Ft
5 szoba
170 m2
Eladó sorház
Eladó sorház

Debrecen, Hatvan utcai kert, Sándor köz

124.9 M Ft
4 szoba
117 m2
Eladó sorház
Eladó sorház

Debrecen

199 M Ft
5 szoba
207 m2
Eladó sorház
Eladó sorház

Debrecen

169 M Ft
4 szoba
168 m2
Eladó sorház
Eladó sorház

Debrecen, Kerekestelep, Mikepercsi utca 7/a

260 M Ft
9 szoba
455 m2
Eladó sorház
Eladó sorház

Mikepércs

700 M Ft
45 szoba
1150 m2
Eladó sorház
Eladó sorház

Debrecen

139.9 M Ft
5 szoba
170 m2
Eladó sorház
Eladó sorház

Debrecen, Vénkert, Botond

134.9 M Ft
5 szoba
162 m2
Eladó sorház
Eladó sorház

Debrecen

125 M Ft
4 szoba
150 m2
Eladó sorház
Eladó sorház

Debrecen

133 M Ft
3 + 1 szoba
110 m2
Eladó sorház
Eladó sorház

Hajdúszoboszló

105 M Ft
1 + 2 szoba
123 m2

Falusi CSOK ingatlanok

Eladó téglalakás
Eladó téglalakás

Herend

63 M Ft
3 szoba
69 m2
Eladó családi ház
Eladó családi ház

Véménd, Rákóczi Ferenc utca

31 M Ft
4 szoba
120 m2
Eladó családi ház
Eladó családi ház

Kislőd

53.2 M Ft
3 szoba
86 m2
Eladó családi ház
Eladó családi ház

Mezőkeresztes

14.9 M Ft
2 + 1 szoba
65 m2
Eladó családi ház
Eladó családi ház

Jakabszállás

69.99 M Ft
1 + 4 szoba
91 m2
Eladó téglalakás
Eladó téglalakás

Pápakovácsi

36.5 M Ft
4 szoba
101 m2
Eladó családi ház
Eladó családi ház

Mosonszentmiklós

42.99 M Ft
3 szoba
83 m2
Eladó családi ház
Eladó családi ház

Porva

74.6 M Ft
3 szoba
115 m2