Avico Greentop

Eladó panellakás
Nyíregyháza, 4. emelet

+ 17 kép 1/20
42 990 000 Ft42.99 M Ft 842 941 Ft/m2
2 szoba
51 m²
4. emelet
építés éve:1985

Részletes adatok

Állapot: Újszerű
Fűtés: Távfűtés
Emelet: 4. emelet
Extrák: Lift
Energetikai besorolás: Nem adta meg a hirdető
Zenga Premier

Friss hirdetések, amiket nem találsz meg más ingatlankereső portálon.

Fedezd fel elsőként a Zenga Premier címkés eladó ingatlanokat!

További részletek a zenga.hu-n

Az OTP Bank lakáshitel ajánlataFizetett hirdetés

+36 20 468
Kissné Orosz Ildikó Krisztina
OTP Ingatlanpont Kft.

Érdekel az OTP Bank kedvezményes lakáshitel ajánlata? *

* A kérdésre „Igen” válasz bejelölése esetén, az „Üzenet küldése” gombra kattintva kijelentem, hogy az OTP Bank Nyrt. Adatkezelési tájékoztatójának tartalmát megismertem és tudomásul vettem.

Eladó panellakás leírása

Nyíregyháza, Toldi utcában teljes körűen felújított, teljes berendezéssel azonnal költözhető lakás eladó!
Nyíregyházán, a Toldi utcában, az állomás és a belváros közelében kínálok megvételre egy 51 nm-es, 4. emeleti, 2 szobás, erkélyes lakást, 10 emeletes liftes társasházban.
Az ingatlan kiváló állapotú, teljes körűen felújított. A felújítás során betonig visszabontották, minden vezeték cserélve lett. Hőszigetelt műanyag nyílászárók kerültek beépítésre redőnnyel és szúnyoghálóval, biztonsági bejárati ajtóval ellátott. A lakás hűtő-fűtő klímával felszerelt, fűtése mért távhő.
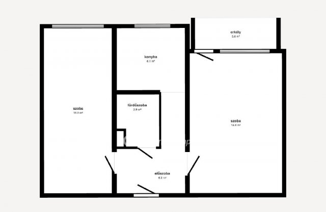
Helyiségek:
előszoba,
konyha,
2 külön nyíló szoba,
zuhanyzós fürdőszoba WC-vel,
zárt folyosós,
erkély parkra néző kilátással.
A lakás teljes berendezéssel együtt eladó, a képeken látható bútorok és gépek a vételár részét képezik!
A társasház rendezett, panelprogramban részt vett, jó lakóközösséggel rendelkezik. Parkolás a ház előtt ingyenesen megoldott.
A közelben minden megtalálható: orvosi rendelő, pékség, gyógyszertár, boltok, valamint a belváros és az állomás is könnyen elérhető.
Az ingatlan azonnal költözhető, hitel- tehermentes, ide valóban csak a bőröndöt kell hozni!
További információért és megtekintésért keressen bizalommal akár hétvégén is!
OTP Banki hátterünknek köszönhetően finanszírozási igényekben (pl. Otthon Start Hitelprogram, Babaváró, Falusi CSOK, CSOK Plusz, Lakáshitel, Személyi kölcsön stb.), illetve biztosítások tekintetében is díjmentesen, soron kívüli ügyintézéssel segítem ügyfeleim! Referenciaszám: M327466

Virtuális séta:

Hirdetés feltöltve: 2026. 04. 24. Utoljára módosítva: 2026. 04. 24.

2 szobás panellakások ára Nyíregyházán

Ebből az összehasonlításból megtudhatod, hogyan viszonyul a lakás ára a környékbeli panellakások átlagos árához. Ez nem azt jelenti, hogy ennyivel olcsóbb vagy drágább, mint amennyit a lakás ér, hanem hogy ennyivel tér el a környékbeli átlagtól.

Ennek a m² ára
Nyíregyháza m² ár
843 e Ft
814 e Ft -4%
Ennek az ára
Nyíregyháza átlagár
42.99 M Ft m Ft
45.8 m Ft 6%

Az ingatlan elhelyezkedése

Cím: Nyíregyháza, 4. emelet

Eladó panellakások a környékről

Nyíregyháza
Eladó panellakás

Nyíregyháza

37.4 M Ft
1 + 1 szoba
43 m²
Nyíregyháza
Eladó panellakás

Nyíregyháza

49 M Ft
2 + 1 szoba
63 m²
Nyíregyháza, Belváros, Toldi utca
Eladó panellakás

Nyíregyháza

35.9 M Ft
2 szoba
51 m²
Mátészalka
Eladó panellakás

Mátészalka

31 M Ft
1 + 1 szoba
52 m²
Nyíregyháza
Eladó panellakás

Nyíregyháza

49 M Ft
2 + 1 szoba
63 m²
Nyíregyháza
Eladó panellakás

Nyíregyháza

54.9 M Ft
4 szoba
69 m²
Nyíregyháza
Eladó panellakás

Nyíregyháza

49 M Ft
2 + 1 szoba
63 m²
Mátészalka
Eladó panellakás

Mátészalka

31 M Ft
1 + 1 szoba
52 m²
Nyíregyháza
Eladó panellakás

Nyíregyháza

49 M Ft
2 + 1 szoba
63 m²
Nyíregyháza
Eladó panellakás

Nyíregyháza

49 M Ft
2 + 1 szoba
63 m²
Nyíregyháza
Eladó panellakás

Nyíregyháza

49 M Ft
2 + 1 szoba
63 m²
Nyíregyháza
Eladó panellakás

Nyíregyháza

39.9 M Ft
2 szoba
53 m²
Nyíregyháza
Eladó panellakás

Nyíregyháza

37.4 M Ft
1 + 1 szoba
43 m²
Nyíregyháza
Eladó panellakás

Nyíregyháza

37.4 M Ft
1 + 1 szoba
43 m²
Nyíregyháza
Eladó panellakás

Nyíregyháza

49 M Ft
2 + 1 szoba
63 m²
Nyíregyháza
Eladó panellakás

Nyíregyháza

37.4 M Ft
1 + 1 szoba
43 m²
Nyíregyháza
Eladó panellakás

Nyíregyháza

43.5 M Ft
1 + 2 szoba
54 m²
Nyíregyháza
Eladó panellakás

Nyíregyháza

41.99 M Ft
2 szoba
51 m²
Nyíregyháza
Eladó panellakás

Nyíregyháza

49 M Ft
2 + 1 szoba
63 m²
Nyíregyháza
Eladó panellakás

Nyíregyháza

51 M Ft
2 + 2 szoba
80 m²
Nyíregyháza
Eladó panellakás

Nyíregyháza

49 M Ft
2 + 1 szoba
63 m²
Nyíregyháza
Eladó panellakás

Nyíregyháza

34.8 M Ft
1 + 1 szoba
42 m²
Nyíregyháza
Eladó panellakás

Nyíregyháza

39.9 M Ft
2 szoba
54 m²
Nyíregyháza, Belváros, Toldi utca
Eladó panellakás

Nyíregyháza

35.9 M Ft
2 szoba
51 m²

Falusi CSOK ingatlanok

Kálmánháza
Eladó családi ház

Kálmánháza

65 M Ft
3 + 1 szoba
151 m²
Badacsonytördemic
Eladó családi ház

Badacsonytördemic

90 M Ft
3 szoba
130 m²
Gesztely
Eladó családi ház

Gesztely

12.5 M Ft
3 szoba
65 m²
Mezőzombor
Eladó családi ház

Mezőzombor

14.6 M Ft
3 szoba
81 m²
Tibolddaróc
Eladó családi ház

Tibolddaróc

12 M Ft
2 szoba
56 m²
Villány
Eladó családi ház

Villány

65 M Ft
3 szoba
95 m²
Perőcsény
Eladó családi ház

Perőcsény

55.5 M Ft
4 + 1 szoba
128 m²
Balástya, Tanya 86/1
Eladó családi ház

Balástya

8.28 M Ft
1 + 1 szoba
111 m²