Pesti Házak

Eladó panellakás
Komárom, 1. emelet

+ 2 kép 1/5
87 360 000 Ft87.36 M Ft 1 078 519 Ft/m2
4 szoba
81 m2
1. emelet
építés éve:2025

Részletes adatok

Fűtés: Egyéb
Parkolás: Kocsibeálló
Extrák: Lift
Energetikai besorolás: Nem adta meg a hirdető

Az OTP Bank lakáshitel ajánlataFizetett hirdetés

+36 30 237
Zwerger Zita
referens

Érdekel az OTP Bank kedvezményes lakáshitel ajánlata? *

* A kérdésre „Igen” válasz bejelölése esetén, az „Üzenet küldése” gombra kattintva kijelentem, hogy az OTP Bank Nyrt. Adatkezelési tájékoztatójának tartalmát megismertem és tudomásul vettem.

Eladó panellakás leírása

ÚJ ÉPÍTÉSŰ LAKÁS KOMÁROMBAN!

-modern
-kulcsrakész
-energiatakarékos
-akadálymentesített

Komáromban a városközponthoz, buszpályaudvarhoz és vasútállomáshoz közel, a Laktanya köz 7. sz. alatt kerül kialakításra egy 24 lakásos társasház, mely két ütemben (12-12 lakással) készül el.

A négyszintes épületben található felvonó akadálymentesen is megközelíthető. A földszinten kettő, az első és második emeleten négy-négy, illetve a legfelső szinten 2 db penthouse lakás kerül kialakításra.

Minden lakáshoz tartozik egy önálló, földszinti tároló, valamint 1 db zárt udvarban található kocsibeálló.

Az épület teljes szerkezete vasbeton kéregelemes (Leier) technológiával készül. Az energetikai követelményeknek való megfelelést a megfelelő vastagságú hőszigetelés, korszerű nyílászárók és épületgépészeti rendszer biztosítja.

Az épület homlokzaton 20 cm EPS szigetelés készül. A lapostetőn minimum 22 cm vastag EPS hőszigetelés, a terasztetőn minimum 15 cm PIR hőszigetelés készül.

Az épületbe laminált parketta burkolat és mázas kerámia burkolat kerül beépítésre. Teraszokon fagyálló, csúszásmentes greslap burkolat készül. A lépcsőházakban és a közlekedési útvonalakon szintén csúszásmentes, greslap burkolat lesz. A tetőteraszok burkolata 3 cm vastag nyílthézagos fagyálló kő burkolat.

A nyílászárók 3 rétegű hőszigetelő üvegezéssel ellátottak. Ezen nyílászárók minimum „u” értéke 0,81 W/m2K. A nyílászárók fehér színben kerülnek kivitelezésre.

Az épületben a villamos mérés lakásonként főmérővel történik.

A laskásokban a vécék és a fürdőszobák szellőzésére gépi elszívás kerül beépítésre.

Az épület fűtését központilag levegő-víz hőszivattyú rendszer biztosítja a mennyezet hűtés-fűtés által, kiegészítő padlófűtéssel.

A főbejáratnál elhelyezett kaputelefon lakásonként biztosít csengetési lehetőséget, a mágneszárral ellátott külső főbejárati ajtó minden lakásból távműködtetéssel nyitható.

Tervezett átadás 2025 év vége.

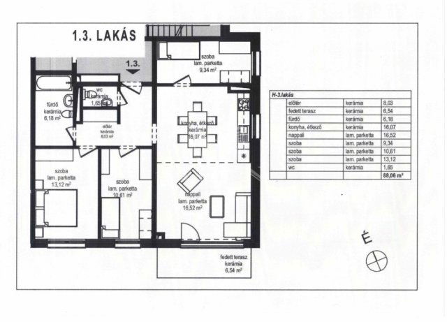
1.3. lakás
- nappali + 3 szoba
- 88,06 m2
- 87.360.000 Ft ...TOVÁBBI, TÖBBEZRES INGATLAN KÍNÁLAT: www.gdn-ingatlan.hu - GDN azonosító: 388329

Hirdetés feltöltve: 2025. 10. 10. Utoljára módosítva: 2025. 11. 04.

Az ingatlan elhelyezkedése

Cím: Komárom, 1. emelet

Eladó ingatlanok a környékről

Eladó panellakás
Eladó panellakás

Oroszlány

25.5 M Ft
1 + 1 szoba
35 m2
Eladó téglalakás
Eladó téglalakás

Oroszlány

43 M Ft
3 szoba
63 m2
Eladó panellakás
Eladó panellakás

Tatabánya

39.99 M Ft
2 szoba
56 m2
Eladó panellakás
Eladó panellakás

Tatabánya

40.99 M Ft
1 + 2 szoba
55 m2
Eladó téglalakás
Eladó téglalakás

Tata, Fazekas utca 25

144.757 M Ft
4 szoba
93 m2
Eladó panellakás
Eladó panellakás

Nyergesújfalu, Május 1. tér

44.9 M Ft
3 szoba
53 m2
Eladó panellakás
Eladó panellakás

Tatabánya

48.99 M Ft
2 szoba
53 m2
Eladó téglalakás
Eladó téglalakás

Tata, Fazekas utca 25

74 M Ft
2 szoba
45 m2
Eladó panellakás
Eladó panellakás

Tatabánya, Gál István lakótelep

27.8 M Ft
1 szoba
29 m2
Eladó panellakás
Eladó panellakás

Tatabánya

36.9 M Ft
1 + 1 szoba
36 m2
Eladó panellakás
Eladó panellakás

Dorog, Schmidt Sándor lakótelep

53 M Ft
3 szoba
68 m2
Eladó panellakás
Eladó panellakás

Komárom

77.725 M Ft
3 szoba
71 m2
Eladó panellakás
Eladó panellakás

Tatabánya

59.5 M Ft
3 + 2 szoba
96 m2
Eladó panellakás
Eladó panellakás

Komárom

48.5 M Ft
4 szoba
85 m2
Eladó panellakás
Eladó panellakás

Komárom

76.58 M Ft
4 szoba
81 m2
Eladó telek
Eladó telek

Komárom

14.8 M Ft
2131 m²
Eladó családi ház
Eladó családi ház

Esztergom

54.9 M Ft
3 szoba
70 m2
Eladó téglalakás
Eladó téglalakás

Tata, Fazekas utca 25

130.5 M Ft
3 szoba
83 m2
Eladó panellakás
Eladó panellakás

Komárom

63.83 M Ft
2 szoba
55 m2
Eladó panellakás
Eladó panellakás

Esztergom

112 M Ft
5 szoba
151 m2
Eladó panellakás
Eladó panellakás

Oroszlány

25.99 M Ft
2 szoba
53 m2
Eladó téglalakás
Eladó téglalakás

Tata, Fazekas utca 25

74.1 M Ft
2 szoba
46 m2
Eladó panellakás
Eladó panellakás

Tatabánya

44 M Ft
3 szoba
62 m2
Eladó panellakás
Eladó panellakás

Tatabánya, Kertvárosi lakótelep, Dr. Vitális István utca

38.5 M Ft
2 szoba
49 m2

Falusi CSOK ingatlanok

Eladó családi ház
Eladó családi ház

Ceglédbercel, Iskola utca

99.99 M Ft
5 szoba
128 m2
Eladó családi ház
Eladó családi ház

Ceglédbercel, Iskola utca

79.99 M Ft
5 szoba
90 m2
Eladó családi ház
Eladó családi ház

Badacsonytomaj

124.9 M Ft
4 + 1 szoba
138 m2
Eladó családi ház
Eladó családi ház

Bodajk

67 M Ft
2 szoba
72 m2
Eladó családi ház
Eladó családi ház

Tass

6.999 M Ft
1 szoba
40 m2
Eladó családi ház
Eladó családi ház

Döröske

104.721 M Ft
3 szoba
114 m2
Eladó családi ház
Eladó családi ház

Galgahévíz

188 M Ft
4 szoba
125 m2
Eladó családi ház
Eladó családi ház

Dombrád

8 M Ft
2 szoba
85 m2