Pesti Házak

Eladó panellakás
Komárom, 2. emelet

+ 4 kép 1/7
63 830 000 Ft63.83 M Ft 1 160 545 Ft/m2
2 szoba
55 m2
2. emelet
építés éve:2025

Részletes adatok

Fűtés: Egyéb
Parkolás: Kocsibeálló
Extrák: Lift
Energetikai besorolás: Nem adta meg a hirdető

Az OTP Bank lakáshitel ajánlataFizetett hirdetés

+36 30 237
Zwerger Zita
referens

Érdekel az OTP Bank kedvezményes lakáshitel ajánlata? *

* A kérdésre „Igen” válasz bejelölése esetén, az „Üzenet küldése” gombra kattintva kijelentem, hogy az OTP Bank Nyrt. Adatkezelési tájékoztatójának tartalmát megismertem és tudomásul vettem.

Eladó panellakás leírása

ÚJ ÉPÍTÉSŰ LAKÁS KOMÁROMBAN!

-modern
-kulcsrakész
-energiatakarékos
-akadálymentesített

Komáromban a városközponthoz, buszpályaudvarhoz és vasútállomáshoz közel, a Laktanya köz 7. sz. alatt kerül kialakításra egy 24 lakásos társasház, mely két ütemben (12-12 lakással) készül el.

A négyszintes épületben található felvonó akadálymentesen is megközelíthető. A földszinten kettő, az első és második emeleten négy-négy, illetve a legfelső szinten 2 db penthouse lakás kerül kialakításra.

Minden lakáshoz tartozik egy önálló, földszinti tároló, valamint 1 db zárt udvarban található kocsibeálló.

Az épület teljes szerkezete vasbeton kéregelemes (Leier) technológiával készül. Az energetikai követelményeknek való megfelelést a megfelelő vastagságú hőszigetelés, korszerű nyílászárók és épületgépészeti rendszer biztosítja.

Az épület homlokzaton 20 cm EPS szigetelés készül. A lapostetőn minimum 22 cm vastag EPS hőszigetelés, a terasztetőn minimum 15 cm PIR hőszigetelés készül.

Az épületbe laminált parketta burkolat és mázas kerámia burkolat kerül beépítésre. Teraszokon fagyálló, csúszásmentes greslap burkolat készül. A lépcsőházakban és a közlekedési útvonalakon szintén csúszásmentes, greslap burkolat lesz. A tetőteraszok burkolata 3 cm vastag nyílthézagos fagyálló kő burkolat.

A nyílászárók 3 rétegű hőszigetelő üvegezéssel ellátottak. Ezen nyílászárók minimum „u” értéke 0,81 W/m2K. A nyílászárók fehér színben kerülnek kivitelezésre.

Az épületben a villamos mérés lakásonként főmérővel történik.

A laskásokban a vécék és a fürdőszobák szellőzésére gépi elszívás kerül beépítésre.

Az épület fűtését központilag levegő-víz hőszivattyú rendszer biztosítja a mennyezet hűtés-fűtés által, kiegészítő padlófűtéssel.

A főbejáratnál elhelyezett kaputelefon lakásonként biztosít csengetési lehetőséget, a mágneszárral ellátott külső főbejárati ajtó minden lakásból távműködtetéssel nyitható.

Tervezett átadás 2025 év vége.

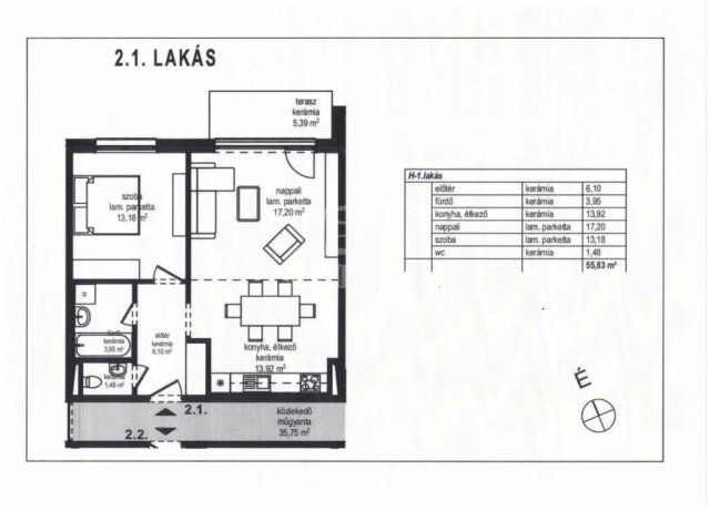
2.1. lakás
- nappali + 1 szoba
- 61,22 m2
- 63.830.000 Ft ...TOVÁBBI, TÖBBEZRES INGATLAN KÍNÁLAT: www.gdn-ingatlan.hu - GDN azonosító: 388333

Hirdetés feltöltve: 2025. 10. 10. Utoljára módosítva: 2025. 11. 20.

Az ingatlan elhelyezkedése

Cím: Komárom, 2. emelet

Eladó ingatlanok a környékről

Eladó panellakás
Eladó panellakás

Dorog

53 M Ft
3 szoba
68 m2
Eladó panellakás
Eladó panellakás

Dorog, Schmidt Sándor lakótelep

53 M Ft
3 szoba
68 m2
Eladó panellakás
Eladó panellakás

Komárom

35 M Ft
2 szoba
55 m2
Eladó panellakás
Eladó panellakás

Tatabánya

38.5 M Ft
4 szoba
67 m2
Eladó panellakás
Eladó panellakás

Komárom

63.89 M Ft
2 szoba
55 m2
Eladó téglalakás
Eladó téglalakás

Tata, Fazekas utca 25

144.757 M Ft
4 szoba
93 m2
Eladó panellakás
Eladó panellakás

Komárom

48.5 M Ft
4 szoba
85 m2
Eladó panellakás
Eladó panellakás

Komárom

63.83 M Ft
2 szoba
55 m2
Eladó panellakás
Eladó panellakás

Tatabánya

33.9 M Ft
2 szoba
36 m2
Eladó panellakás
Eladó panellakás

Tatabánya

59.5 M Ft
3 + 2 szoba
96 m2
Eladó panellakás
Eladó panellakás

Tatabánya

37.99 M Ft
3 szoba
64 m2
Eladó panellakás
Eladó panellakás

Nyergesújfalu, Május 1. tér

44.9 M Ft
3 szoba
53 m2
Eladó panellakás
Eladó panellakás

Tatabánya

44 M Ft
3 szoba
62 m2
Eladó panellakás
Eladó panellakás

Komárom

87.36 M Ft
4 szoba
81 m2
Eladó téglalakás
Eladó téglalakás

Tata, Fazekas utca 25

74 M Ft
2 szoba
45 m2
Eladó panellakás
Eladó panellakás

Esztergom

112 M Ft
5 szoba
151 m2
Eladó téglalakás
Eladó téglalakás

Tata, Fazekas utca 25

130.5 M Ft
3 szoba
83 m2
Eladó panellakás
Eladó panellakás

Oroszlány

32.9 M Ft
2 szoba
49 m2
Eladó panellakás
Eladó panellakás

Oroszlány

34 M Ft
2 + 1 szoba
62 m2
Eladó családi ház
Eladó családi ház

Esztergom

62.8 M Ft
3 szoba
69 m2
Eladó téglalakás
Eladó téglalakás

Oroszlány, Rákóczi Ferenc út

29.3 M Ft
1 szoba
40 m2
Eladó téglalakás
Eladó téglalakás

Oroszlány

43.5 M Ft
2 szoba
42 m2
Eladó panellakás
Eladó panellakás

Tatabánya

39.99 M Ft
2 szoba
56 m2
Eladó panellakás
Eladó panellakás

Tatabánya

41990 M Ft
2 + 1 szoba
53 m2

Falusi CSOK ingatlanok

Eladó családi ház
Eladó családi ház

Kemeneshőgyész

8 M Ft
2 szoba
60 m2
Eladó családi ház
Eladó családi ház

Ádánd

57.9 M Ft
5 szoba
190 m2
Eladó családi ház
Eladó családi ház

Karád

44.7 M Ft
3 szoba
100 m2
Eladó családi ház
Eladó családi ház

Görbeháza

22.5 M Ft
2 szoba
60 m2
Eladó családi ház
Eladó családi ház

Andornaktálya

65 M Ft
3 szoba
80 m2
Eladó családi ház
Eladó családi ház

Ceglédbercel, Iskola utca

99.99 M Ft
5 szoba
128 m2
Eladó családi ház
Eladó családi ház

Himesháza

119.9 M Ft
4 szoba
160 m2
Eladó családi ház
Eladó családi ház

Somlóvásárhely

19.9 M Ft
1 szoba
59 m2