Avico Greentop

Eladó panellakás
Debrecen, 7. emelet

+ 6 kép 1/9
50 000 000 Ft50 M Ft 980 392 Ft/m2
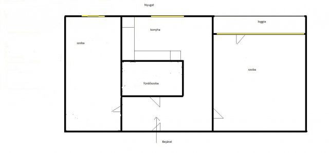
2 szoba
51 m²
7. emelet

Részletes adatok

Állapot: Felújítandó
Fűtés: Távfűtés
Emelet: 7. emelet
Közmű: Víz, Villany, Csatorna, Szélessáv, KábelTV
Extrák: Lift
Energetikai besorolás: Nem adta meg a hirdető

Az OTP Bank lakáshitel ajánlataFizetett hirdetés

+36 30 311
Ilona-Ingatlan
referens

Érdekel az OTP Bank kedvezményes lakáshitel ajánlata? *

* A kérdésre „Igen” válasz bejelölése esetén, az „Üzenet küldése” gombra kattintva kijelentem, hogy az OTP Bank Nyrt. Adatkezelési tájékoztatójának tartalmát megismertem és tudomásul vettem.

Eladó panellakás leírása

Debrecen, Újjkert , a Görgey utcán eladó ez az 51 nm-es, 2 külön nyíló szobás, erkélyes, 7.emeleti, alap- felújítandó állapotú panel lakás.

Az ingatlan tehermentes!

Hirdetés feltöltve: 2026. 03. 16. Utoljára módosítva: 2026. 04. 01.

2 szobás panellakások ára Debrecenben

Ebből az összehasonlításból megtudhatod, hogyan viszonyul a lakás ára a környékbeli panellakások átlagos árához. Ez nem azt jelenti, hogy ennyivel olcsóbb vagy drágább, mint amennyit a lakás ér, hanem hogy ennyivel tér el a környékbeli átlagtól.

Ennek a m² ára
Debrecen m² ár
980 e Ft
1046 e Ft 6%
Ennek az ára
Debrecen átlagár
50 M Ft m Ft
64 m Ft 22%

Az ingatlan elhelyezkedése

Cím: Debrecen, 7. emelet

Eladó panellakások a környékről

Debrecen
Eladó panellakás

Debrecen

79.9 M Ft
4 szoba
89 m²
Debrecen, Széchenyikert, István út
Eladó panellakás

Debrecen

70 M Ft
4 szoba
84 m²
Debrecen
Eladó panellakás

Debrecen

62 M Ft
3 szoba
61 m²
Debrecen
Eladó panellakás

Debrecen

69.9 M Ft
2 szoba
57 m²
Debrecen
Eladó panellakás

Debrecen

62.9 M Ft
3 szoba
64 m²
Debrecen, Sestakert, Alkotmány
Eladó panellakás

Debrecen

46.7 M Ft
1 szoba
42 m²
Debrecen, Burgundia, Csapó
Eladó panellakás

Debrecen

62 M Ft
3 + 1 szoba
68 m²
Debrecen
Eladó panellakás

Debrecen

58.9 M Ft
2 + 1 szoba
65 m²
Debrecen
Eladó panellakás

Debrecen

74.7 M Ft
4 szoba
84 m²
Debrecen
Eladó panellakás

Debrecen

69.9 M Ft
2 szoba
57 m²
Debrecen, Burgundia, Csapó
Eladó panellakás

Debrecen

62 M Ft
3 + 1 szoba
68 m²
Debrecen
Eladó panellakás

Debrecen

62.9 M Ft
3 szoba
64 m²
Debrecen, Téglagyár, Kishegyesi
Eladó panellakás

Debrecen

59.9 M Ft
1 + 2 szoba
61 m²
Debrecen
Eladó panellakás

Debrecen

63.9 M Ft
1 + 2 szoba
57 m²
Debrecen
Eladó panellakás

Debrecen

61.5 M Ft
2 szoba
54 m²
Debrecen, Füredi út
Eladó panellakás

Debrecen

69.9 M Ft
3 szoba
70 m²
Debrecen, Füredi út
Eladó panellakás

Debrecen

69.9 M Ft
3 szoba
70 m²
Debrecen
Eladó panellakás

Debrecen

65.9 M Ft
3 szoba
73 m²
Debrecen
Eladó panellakás

Debrecen

56.9 M Ft
2 szoba
59 m²
Debrecen
Eladó panellakás

Debrecen

68.5 M Ft
3 szoba
72 m²
Debrecen
Eladó panellakás

Debrecen

58.9 M Ft
2 + 1 szoba
65 m²
Debrecen
Eladó panellakás

Debrecen

64.99 M Ft
2 szoba
57 m²
Debrecen
Eladó panellakás

Debrecen

53.9 M Ft
3 szoba
61 m²
Debrecen
Eladó panellakás

Debrecen

68.5 M Ft
3 szoba
72 m²

Falusi CSOK ingatlanok

Ábrahámhegy
Eladó családi ház

Ábrahámhegy

139 M Ft
4 szoba
106 m²
Úrkút
Eladó családi ház

Úrkút

94.9 M Ft
4 szoba
186 m²
Karád
Eladó családi ház

Karád

42.9 M Ft
3 szoba
100 m²
Szentmártonkáta
Eladó családi ház

Szentmártonkáta

51.9 M Ft
5 szoba
150 m²
Mezőnyárád
Eladó családi ház

Mezőnyárád

32 M Ft
3 szoba
86 m²
Kenderes
Eladó családi ház

Kenderes

130 M Ft
6 + 2 szoba
420 m²
Ceglédbercel
Eladó családi ház

Ceglédbercel

65.9 M Ft
3 szoba
97 m²
Markotabödöge
Eladó családi ház

Markotabödöge

49.8 M Ft
4 szoba
95 m²