Kedves Felhasználónk! Rendszerfrissítés miatt az oldalunk 2026. február 9-én 12 órától várhatóan 20 óráig nem lesz elérhető. Köszönjük megértésed!
Astora Márvány8

Eladó iroda
Budapest, II. kerület, földszint

+ 11 kép 1/14
1 400 000 000 Ft1400 M Ft 1 728 395 Ft/m2
810 m2
földszint
építés éve:1995

Részletes adatok

Fűtés: Egyéb
Emelet: földszint
Energetikai besorolás: Nem adta meg a hirdető

Az OTP Bank lakáshitel ajánlataFizetett hirdetés

+36 1 690
Hassmann Kristóf
Duna House-Retek utca

Érdekel az OTP Bank kedvezményes lakáshitel ajánlata? *

* A kérdésre „Igen” válasz bejelölése esetén, az „Üzenet küldése” gombra kattintva kijelentem, hogy az OTP Bank Nyrt. Adatkezelési tájékoztatójának tartalmát megismertem és tudomásul vettem.

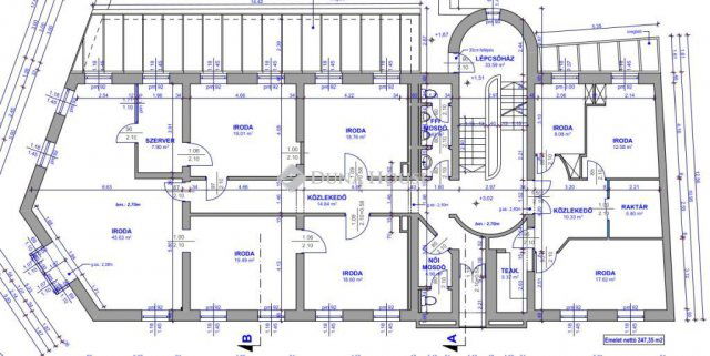
Eladó iroda leírása

Eladó irodaház frekventált lokáció mellett, a Kolosy tér és a Szépvölgyi út közelében!

A négy szintes, ÖNÁLLÓ épület tökéletesen alkalmas cégközpont, irodák, egészségügyi intézmény, klinika, rendelő számára. A funkció váltás is lehetséges: akár lakás, szállás jellegű, kereskedelmi, szolgáltató, alapintézményi: oktatási, egészségügyi, szociális, hitéleti, kulturális, igazgatási, valamint egyéb intézményi, irodai, vendéglátó, sport, önálló parkolóház, mélygarázs létesíthető.
Az épület pinceszint + földszint + 2 emeletből áll.
A helyiségben 5 különálló vizsgáló található, amelyek egyenként kb. 15 m²-esek, valamint egy kialakított steril műtőrész és műtő előkészítő is rendelkezésre áll.

Főbb jellemzők:

-Modern kialakítás, közelmúltban történt felújítás-recepció és ügyfélváró
-műterem, moziszoba, közösségi konyha, fürdők, irodák 
-saját parkoló telken belül

Az épület kiváló elhelyezkedéssel és infrastruktúrával rendelkezik, remek befektetési lehetőség!

Kérdés esetén kérem keressen bizalommal!

Hirdetés feltöltve: 2026. 02. 08.

Irodák ára Budapesten

Ebből az összehasonlításból megtudhatod, hogyan viszonyul a lakás ára a környékbeli irodák átlagos árához. Ez nem azt jelenti, hogy ennyivel olcsóbb vagy drágább, mint amennyit a lakás ér, hanem hogy ennyivel tér el a környékbeli átlagtól.

Ennek a m² ára
II. kerület m² ár
Budapest m² ár
1728 e Ft
1027 e Ft -68%
1055 e Ft -64%
Ennek az ára
II. kerület átlagár
Budapest átlagár
1400 M Ft m Ft
269.6 m Ft -419%
256.2 m Ft -447%

Az ingatlan elhelyezkedése

Cím: Budapest, II. kerület, földszint

Eladó ingatlanok a környékről

Eladó téglalakás
Eladó téglalakás

VI. kerület, Külső Terézváros, Szív utca

124.9 M Ft
3 szoba
94 m2
Eladó iroda
Eladó iroda

II. kerület, Petneházyrét, Üdülő út

1517.24 M Ft
1050 m2
Eladó iroda
Eladó iroda

II. kerület

265 M Ft
10 szoba
270 m2
Eladó iroda
Eladó iroda

II. kerület

1524 M Ft
1050 m2
Eladó iroda
Eladó iroda

II. kerület, Rózsadomb

3038 M Ft
3350 m2
Eladó téglalakás
Eladó téglalakás

V. kerület, Belváros, Petőfi Sándor utca

134 M Ft
2 szoba
59 m2
Eladó téglalakás
Eladó téglalakás

VI. kerület, Belső Terézváros, Jókai utca

87.6 M Ft
3 szoba
75 m2
Eladó téglalakás
Eladó téglalakás

VIII. kerület

69.9 M Ft
2 szoba
43 m2
Eladó iroda
Eladó iroda

II. kerület, Szemlőhegy

265 M Ft
10 szoba
270 m2
Eladó panellakás
Eladó panellakás

XIX. kerület, Kispest

68.99 M Ft
2 szoba
53 m2
Eladó iroda
Eladó iroda

II. kerület

595.014 M Ft
8 szoba
596 m2
Eladó iroda
Eladó iroda

II. kerület, Országút, Lövőház utca

210 M Ft
2 szoba
93 m2
Eladó téglalakás
Eladó téglalakás

IV. kerület, Újpest, Kassai utca

84.9 M Ft
2 + 1 szoba
71 m2
Eladó iroda
Eladó iroda

II. kerület

587.931 M Ft
8 szoba
596 m2
Eladó iroda
Eladó iroda

II. kerület, Rézmál

340 M Ft
5 szoba
170 m2
Eladó iroda
Eladó iroda

II. kerület, Újlak, Bécsi út

265 M Ft
270 m2
Eladó iroda
Eladó iroda

II. kerület

320 M Ft
382 m2
Eladó téglalakás
Eladó téglalakás

V. kerület, Belváros, Belgrád rakpart

78 M Ft
1 + 1 szoba
42 m2
Eladó iroda
Eladó iroda

II. kerület, Kurucles, Széher út

169.9 M Ft
4 szoba
127 m2
Eladó iroda
Eladó iroda

II. kerület

210 M Ft
2 szoba
93 m2
Eladó iroda
Eladó iroda

II. kerület

590.55 M Ft
596 m2
Eladó téglalakás
Eladó téglalakás

I. kerület, Krisztinaváros, Feszty Árpád utca

78.99 M Ft
1 szoba
28 m2
Eladó téglalakás
Eladó téglalakás

VI. kerület, Külső Terézváros, Szófia utca

112.9 M Ft
4 szoba
103 m2
Eladó téglalakás
Eladó téglalakás

II. kerület

78.4 M Ft
1 szoba
38 m2

Falusi CSOK ingatlanok

Eladó családi ház
Eladó családi ház

Pécsvárad

140 M Ft
2 szoba
79 m2
Eladó családi ház
Eladó családi ház

Bár

89.5 M Ft
4 + 1 szoba
172 m2
Eladó téglalakás
Eladó téglalakás

Balatonszemes

123.3 M Ft
2 szoba
70 m2
Eladó családi ház
Eladó családi ház

Újlengyel

110 M Ft
4 szoba
121 m2
Eladó családi ház
Eladó családi ház

Bozsok

290 M Ft
6 szoba
370 m2
Eladó panellakás
Eladó panellakás

Pétfürdő

49.9 M Ft
3 szoba
71 m2
Eladó családi ház
Eladó családi ház

Szabadbattyán

67.5 M Ft
5 szoba
180 m2
Eladó családi ház
Eladó családi ház

Sárisáp, Orgona utca

60 M Ft
4 szoba
145 m2