Oasis Residence

Eladó ipari ingatlan
Hódmezővásárhely, 10 felett

59 900 000 Ft59.9 M Ft 352 353 Ft/m2
170 m²
10 felett
építés éve:1990

Részletes adatok

Állapot: Átlagos
Fűtés: Elektromos
Emelet: 10 felett
Energetikai besorolás: Nem adta meg a hirdető

Az OTP Bank lakáshitel ajánlataFizetett hirdetés

+36 30 742
Sárai-Kovács Ágnes
Városi Ingatlaniroda - VING

Érdekel az OTP Bank kedvezményes lakáshitel ajánlata? *

* A kérdésre „Igen” válasz bejelölése esetén, az „Üzenet küldése” gombra kattintva kijelentem, hogy az OTP Bank Nyrt. Adatkezelési tájékoztatójának tartalmát megismertem és tudomásul vettem.

Eladó ipari ingatlan leírása

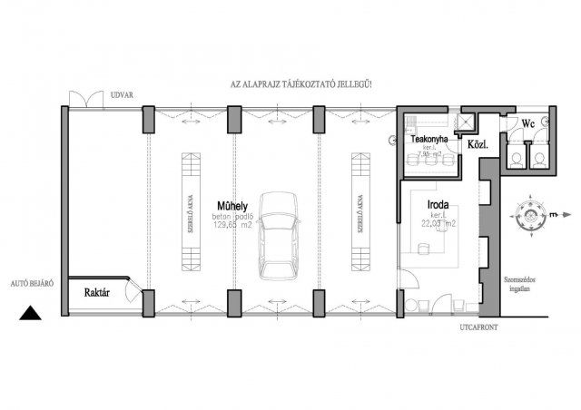
Eladó ~170,00 m2 alapterületű, autószerelő műhely és iroda helyiség szociális blokkal.
A műhelyben 2 szerelőakna és a pilléreket összekötő rácsos tartó szerkezet található.
3 méternél szélesebb, nyitható ajtók kerültek beépítésre az utcafronton és az udvar felőli homlokzaton is. Az épület előtti parkolóhelyek a főútról könnyen megközelíthetőek.
Az ingatlan tehermentes, azonnal birtokba vehető!
Néhány információ még az ingatlanról:

- Alapterület: ~170,00 m2
- Autószerelő műhely: ~130,00 m2
- Iroda, konyha mosdó: ~40,00 m2
- Áramellátás: Ipari áram
- Fűtés: gázkazán, klíma

Az ingatlannal kapcsolatos kérdéseivel várom hívását, a hét bármely napján.
Ügyfeleink számára irodánk teljes jogi hátteret, adás-vétellel kapcsolatos térítésmentes jogi tanácsadást biztosít.
Bank semleges hitelügyintézéssel, díjmentes hitelszűréssel és tanácsadással is hozzájárulunk, hogy megtalálja az ön számára legkedvezőbb megoldást.

Hirdetés feltöltve: 2026. 03. 04. Utoljára módosítva: 2026. 03. 04.

Ipari ingatlanok ára Hódmezővásárhelyen

Ebből az összehasonlításból megtudhatod, hogyan viszonyul a lakás ára a környékbeli ipari ingatlanok átlagos árához. Ez nem azt jelenti, hogy ennyivel olcsóbb vagy drágább, mint amennyit a lakás ér, hanem hogy ennyivel tér el a környékbeli átlagtól.

Ennek a m² ára
Hódmezővásárhely m² ár
352 e Ft
162 e Ft -118%
Ennek az ára
Hódmezővásárhely átlagár
59.9 M Ft m Ft
192.8 m Ft 69%

Az ingatlan elhelyezkedése

Cím: Hódmezővásárhely, 10 felett

Eladó ipari ingatlanok a környékről

Hódmezővásárhely
Eladó ipari ingatlan

Hódmezővásárhely

108 M Ft
1388 m²
600 m²
Csongrád
Eladó ipari ingatlan

Csongrád

188 M Ft
700 m²
Csongrád
Eladó ipari ingatlan

Csongrád

499 M Ft
2000 m²
Csanádpalota
Eladó ipari ingatlan

Csanádpalota

8 M Ft
204 m²
Szeged
Eladó ipari ingatlan

Szeged

11947.71 M Ft
27.22 ha
0 m²
Szentes
Eladó ipari ingatlan

Szentes

150 M Ft
1220 m²
Hódmezővásárhely
Eladó ipari ingatlan

Hódmezővásárhely

159 M Ft
5060 m²
1567 m²
Makó
Eladó ipari ingatlan

Makó

3440 M Ft
2.96 ha
7600 m²
Deszk, 43
Eladó ipari ingatlan

Deszk

45 M Ft
3000 m²
Hódmezővásárhely
Eladó ipari ingatlan

Hódmezővásárhely

70 M Ft
1.26 ha
1080 m²
Hódmezővásárhely
Eladó ipari ingatlan

Hódmezővásárhely

199 M Ft
1.57 ha
1740 m²
Hódmezővásárhely
Eladó ipari ingatlan

Hódmezővásárhely

99.9 M Ft
3439 m²
350 m²
Hódmezővásárhely
Eladó ipari ingatlan

Hódmezővásárhely

150 M Ft
5060 m²
1560 m²
Hódmezővásárhely
Eladó ipari ingatlan

Hódmezővásárhely

119 M Ft
480 m²
280 m²
Hódmezővásárhely
Eladó ipari ingatlan

Hódmezővásárhely

150 M Ft
1 szoba
1100 m²
Hódmezővásárhely
Eladó ipari ingatlan

Hódmezővásárhely

1250 M Ft
13.1 ha
0 m²
Makó
Eladó ipari ingatlan

Makó

42 M Ft
2351 m²
0 m²
Szeged
Eladó ipari ingatlan

Szeged

183.956 M Ft
4.09 ha
250 m²
Hódmezővásárhely
Eladó ipari ingatlan

Hódmezővásárhely

114.99 M Ft
6767 m²
350 m²
Hódmezővásárhely
Eladó ipari ingatlan

Hódmezővásárhely

108 M Ft
3 szoba
400 m²
Csongrád
Eladó ipari ingatlan

Csongrád

225 M Ft
950 m²
Makó
Eladó ipari ingatlan

Makó

1100 M Ft
6600 m²
2200 m²
Hódmezővásárhely
Eladó ipari ingatlan

Hódmezővásárhely

108 M Ft
3 szoba
400 m²
Hódmezővásárhely
Eladó ipari ingatlan

Hódmezővásárhely

120 M Ft
1 szoba
0 m²

Falusi CSOK ingatlanok

Galgahévíz
Eladó családi ház

Galgahévíz

38 M Ft
3 szoba
101 m²
Újszilvás
Eladó családi ház

Újszilvás

49.9 M Ft
8 szoba
310 m²
Vajszló
Eladó családi ház

Vajszló

21.49 M Ft
2 szoba
91 m²
Pannonhalma
Eladó családi ház

Pannonhalma

130 M Ft
5 szoba
142 m²
Balatonszemes
Eladó téglalakás

Balatonszemes

91.5 M Ft
2 szoba
60 m²
Farmos
Eladó családi ház

Farmos

59.9 M Ft
4 szoba
90 m²
Hosszúpereszteg
Eladó családi ház

Hosszúpereszteg

27.9 M Ft
4 szoba
121 m²
Halimba
Eladó családi ház

Halimba

59.9 M Ft
6 szoba
182 m²