Seven Pearl

Eladó ipari ingatlan
Budapest, VII. kerület, földszint

+ 17 kép 1/20
400 000 000 Ft400 M Ft 695 652 Ft/m2
575 m2
földszint
építés éve:1937

Részletes adatok

Fűtés: Egyéb
Közmű: Gáz, Villany, Csatorna
Energetikai besorolás: Nem adta meg a hirdető

Az OTP Bank lakáshitel ajánlataFizetett hirdetés

+36 70 465
Bacsó Diána
referens

Érdekel az OTP Bank kedvezményes lakáshitel ajánlata? *

* A kérdésre „Igen” válasz bejelölése esetén, az „Üzenet küldése” gombra kattintva kijelentem, hogy az OTP Bank Nyrt. Adatkezelési tájékoztatójának tartalmát megismertem és tudomásul vettem.

Eladó ipari ingatlan leírása

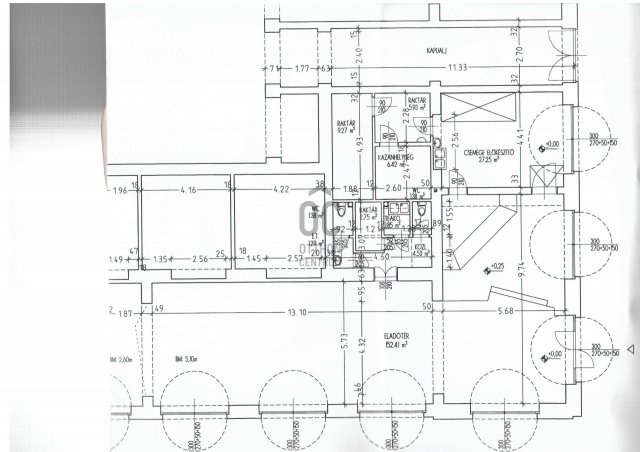
Külső-Erzsébetvárosban eladó egy bruttó 575 m2-es utcai kétbejáratos kereskedelmi ingatlan.

Az üzlethelyiség egy az 1930-as évek elején épült lakóház sarkán található.
Elosztás:
földszint 330 m2, pince 180 m2, galéria 60 m2, az ingatlannak 2 bejárata van.

Az ingatlan nagy üzlettérrel, nagy utcai portálokkal, hátul áruátvevő külön bejárattal rendelkezik.
Teherlifttel ellátott pince , amely kitűnően alkalmas raktározásra.
A galérián irodák, mosdók és öltöző található,. 2000-ben az eladótér felújításra került., a többi helyiség felújításra szorul.

A belmagasság 4,5 és 5,0 m közötti,változik, álmennyezettel fedett.
Fűtés-központi kazán
Kamerás megfigyelőrendszer
Klimatizált
Élelmiszerboltként funkcionált régebben, jelen leg üres állapotban van.
Az ingatlan irányára 400 millió forint + 27% ÁFA.

Fedezze fel ezt a kivételes üzleti célú ingatlant.. Ez a terület nemcsak a központi elhelyezkedésének köszönhetően vonzó, hanem a környék ellátottsága is kiváló, így ideális választás lehet bármely vállalkozás számára. Az ingatlan egy felkapott környéken helyezkedik el, amely, és számos lehetőséget kínál a bővítésre.
Az ingatlan nagy belmagassággal rendelkezik ,így az Ön elképzelései szerint alakíthatja ki a belső teret A kitűnő közlekedés biztosítja, hogy a vendégek és az alkalmazottak könnyedén elérhessék az ingatlant. A közelben található tömegközlekedési lehetőségek, mind hozzájárulnak ahhoz, hogy az ingatlan stratégiai előnyöket biztosítson.
A környék csendes, biztonságos, ideális helyszínt kínál a vállalkozások számára , a barátságos atmoszféra egyaránt hozzájárul a produktív munkakörnyezethez.
A Városliget közelsége meghatározza a környék infrastruktúráját.
Az ingatlan funkciója sokrétű,különböző üzleti tevékenységek megvalósítására alkalmas.
Legyen szó üzlethelyiségről,l, bemutatóteremről vagy akár szolgáltató egységről, a lehetőségek széles spektrumot ölelnek fel. A környék dinamikus fejlődése és a folyamatosan bővülő szolgáltatások biztosítják, hogy az ingatlan értéke csak növekedni fog a jövőben.

Hirdetés feltöltve: 2025. 05. 29. Utoljára módosítva: 2025. 11. 02.

Ipari ingatlanok ára Budapesten

Ebből az összehasonlításból megtudhatod, hogyan viszonyul a lakás ára a környékbeli ipari ingatlanok átlagos árához. Ez nem azt jelenti, hogy ennyivel olcsóbb vagy drágább, mint amennyit a lakás ér, hanem hogy ennyivel tér el a környékbeli átlagtól.

Ennek a m² ára
VII. kerület m² ár
Budapest m² ár
696 e Ft
576 e Ft -21%
2878 e Ft 76%
Ennek az ára
VII. kerület átlagár
Budapest átlagár
400 M Ft m Ft
139.3 m Ft -187%
232.2 m Ft -72%

Az ingatlan elhelyezkedése

Cím: Budapest, VII. kerület, földszint

Eladó ingatlanok a környékről

Eladó téglalakás
Eladó téglalakás

VI. kerület, Külső Terézváros, Szív utca

119.5 M Ft
3 szoba
94 m2
Eladó téglalakás
Eladó téglalakás

III. kerület, Óbudaisziget, Folyamőr utca

76.9 M Ft
1 szoba
25 m2
Eladó családi ház
Eladó családi ház

XXII. kerület, Budafok, Baross utca

199 M Ft
6 + 1 szoba
200 m2
Eladó ipari ingatlan
Eladó ipari ingatlan

VII. kerület, Belső Erzsébetváros, Akácfa utca

4 M Ft
3 m2
Eladó ipari ingatlan
Eladó ipari ingatlan

VII. kerület

27.9 M Ft
60 m2
Eladó ipari ingatlan
Eladó ipari ingatlan

VII. kerület

349.2 M Ft
351 m2
Eladó ipari ingatlan
Eladó ipari ingatlan

VII. kerület

45 M Ft
100 m2
Eladó téglalakás
Eladó téglalakás

XV. kerület, Rákospalota, Illyés Gyula utca

65 M Ft
2 szoba
46 m2
Eladó ipari ingatlan
Eladó ipari ingatlan

VII. kerület

19.9 M Ft
39 m2
Eladó téglalakás
Eladó téglalakás

VI. kerület, Külső Terézváros, Szófia utca

119.9 M Ft
4 szoba
103 m2
Eladó ipari ingatlan
Eladó ipari ingatlan

VII. kerület

27.5 M Ft
82 m2
Eladó ipari ingatlan
Eladó ipari ingatlan

VII. kerület

79.9 M Ft
216 m2
Eladó ipari ingatlan
Eladó ipari ingatlan

VII. kerület

49 M Ft
79 m2
Eladó ipari ingatlan
Eladó ipari ingatlan

VII. kerület, Külső Erzsébetváros, Murányi utca

55 M Ft
6 + 4 szoba
110 m2
Eladó ipari ingatlan
Eladó ipari ingatlan

VII. kerület

1940 M Ft
1735 m²
2200 m2
Eladó téglalakás
Eladó téglalakás

VII. kerület, Belső Erzsébetváros, Rózsa utca

170 M Ft
5 szoba
124 m2
Eladó családi ház
Eladó családi ház

XXII. kerület

119 M Ft
3 szoba
70 m2
Eladó téglalakás
Eladó téglalakás

XIII. kerület, Angyalföld, Fiastyúk utca

39.9 M Ft
1 + 1 szoba
34 m2
Eladó téglalakás
Eladó téglalakás

III. kerület, Óbuda, Szomolnok utca

89.9 M Ft
2 + 2 szoba
96 m2
Eladó téglalakás
Eladó téglalakás

VII. kerület, Belső Erzsébetváros, Erzsébet körút

160 M Ft
3 szoba
88 m2
Eladó családi ház
Eladó családi ház

XVI. kerület

139 M Ft
5 szoba
130 m2
Eladó téglalakás
Eladó téglalakás

VIII. kerület, Palotanegyed, Rákóczi út

190 M Ft
5 szoba
121 m2
Eladó ipari ingatlan
Eladó ipari ingatlan

VII. kerület

399 M Ft
695 m2
Eladó téglalakás
Eladó téglalakás

XIII. kerület

72.9 M Ft
2 szoba
50 m2

Falusi CSOK ingatlanok

Eladó családi ház
Eladó családi ház

Segesd

3.9 M Ft
2 szoba
65 m2
Eladó családi ház
Eladó családi ház

Püspökhatvan

44.9 M Ft
3 szoba
80 m2
Eladó családi ház
Eladó családi ház

Eplény

99.9 M Ft
5 szoba
163 m2
Eladó családi ház
Eladó családi ház

Pápadereske

28 M Ft
2 szoba
78 m2
Eladó családi ház
Eladó családi ház

Mezőfalva

39 M Ft
3 szoba
77 m2
Eladó családi ház
Eladó családi ház

Kisköre

35 M Ft
4 szoba
123 m2
Eladó családi ház
Eladó családi ház

Tiszaalpár

29 M Ft
4 szoba
132 m2
Eladó családi ház
Eladó családi ház

Hosszúpereszteg

25 M Ft
3 szoba
63 m2