Astora Olive Club House

Eladó ipari ingatlan
Budapest, VII. kerület, földszint

+ 17 kép 1/20
400 000 000 Ft400 M Ft 695 652 Ft/m2
575 m²
földszint
építés éve:1937

Részletes adatok

Fűtés: Egyéb
Emelet: földszint
Közmű: Gáz, Villany, Csatorna
Energetikai besorolás: Nem adta meg a hirdető

Az OTP Bank lakáshitel ajánlataFizetett hirdetés

+36 70 465
Bacsó Diána
referens

Érdekel az OTP Bank kedvezményes lakáshitel ajánlata? *

* A kérdésre „Igen” válasz bejelölése esetén, az „Üzenet küldése” gombra kattintva kijelentem, hogy az OTP Bank Nyrt. Adatkezelési tájékoztatójának tartalmát megismertem és tudomásul vettem.

Eladó ipari ingatlan leírása

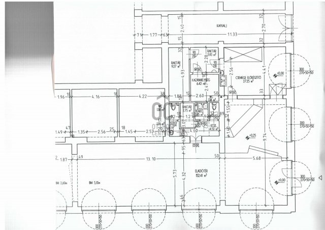
Külső-Erzsébetvárosban eladó egy bruttó 575 m2-es utcai kétbejáratos kereskedelmi ingatlan.

Az üzlethelyiség egy az 1930-as évek elején épült lakóház sarkán található.
Elosztás:
földszint 330 m2, pince 180 m2, galéria 60 m2, az ingatlannak 2 bejárata van.

Az ingatlan nagy üzlettérrel, nagy utcai portálokkal, hátul áruátvevő külön bejárattal rendelkezik.
Teherlifttel ellátott pince , amely kitűnően alkalmas raktározásra.
A galérián irodák, mosdók és öltöző található,. 2000-ben az eladótér felújításra került., a többi helyiség felújításra szorul.

A belmagasság 4,5 és 5,0 m közötti,változik, álmennyezettel fedett.
Fűtés-központi kazán
Kamerás megfigyelőrendszer
Klimatizált
Élelmiszerboltként funkcionált régebben, jelen leg üres állapotban van.
Az ingatlan irányára 400 millió forint + 27% ÁFA.

Fedezze fel ezt a kivételes üzleti célú ingatlant.. Ez a terület nemcsak a központi elhelyezkedésének köszönhetően vonzó, hanem a környék ellátottsága is kiváló, így ideális választás lehet bármely vállalkozás számára. Az ingatlan egy felkapott környéken helyezkedik el, amely, és számos lehetőséget kínál a bővítésre.
Az ingatlan nagy belmagassággal rendelkezik ,így az Ön elképzelései szerint alakíthatja ki a belső teret A kitűnő közlekedés biztosítja, hogy a vendégek és az alkalmazottak könnyedén elérhessék az ingatlant. A közelben található tömegközlekedési lehetőségek, mind hozzájárulnak ahhoz, hogy az ingatlan stratégiai előnyöket biztosítson.
A környék csendes, biztonságos, ideális helyszínt kínál a vállalkozások számára , a barátságos atmoszféra egyaránt hozzájárul a produktív munkakörnyezethez.
A Városliget közelsége meghatározza a környék infrastruktúráját.
Az ingatlan funkciója sokrétű,különböző üzleti tevékenységek megvalósítására alkalmas.
Legyen szó üzlethelyiségről,l, bemutatóteremről vagy akár szolgáltató egységről, a lehetőségek széles spektrumot ölelnek fel. A környék dinamikus fejlődése és a folyamatosan bővülő szolgáltatások biztosítják, hogy az ingatlan értéke csak növekedni fog a jövőben.

Hirdetés feltöltve: 2026. 04. 29.

Ipari ingatlanok ára Budapesten

Ebből az összehasonlításból megtudhatod, hogyan viszonyul a lakás ára a környékbeli ipari ingatlanok átlagos árához. Ez nem azt jelenti, hogy ennyivel olcsóbb vagy drágább, mint amennyit a lakás ér, hanem hogy ennyivel tér el a környékbeli átlagtól.

Ennek a m² ára
VII. kerület m² ár
Budapest m² ár
696 e Ft
570 e Ft -22%
714 e Ft 3%
Ennek az ára
VII. kerület átlagár
Budapest átlagár
400 M Ft m Ft
130.1 m Ft -207%
248.6 m Ft -61%

Az ingatlan elhelyezkedése

Cím: Budapest, VII. kerület, földszint

Eladó ingatlanok a környékről

XIII. kerület
Eladó téglalakás

Budapest, XIII. kerület

85 M Ft
2 szoba
57 m²
II. kerület
Eladó téglalakás

Budapest, II. kerület

151 M Ft
2 szoba
60 m²
V. kerület, Belváros, Sörház utca
Eladó téglalakás

Budapest, V. kerület

290 M Ft
4 szoba
189 m²
VI. kerület, Külső Terézváros, Vörösmarty utca
Eladó téglalakás

Budapest, VI. kerület

155 M Ft
5 szoba
101 m²
II. kerület, Törökvész, Lövőház utca
Eladó téglalakás

Budapest, II. kerület

209.9 M Ft
2 szoba
93 m²
VII. kerület
Eladó ipari ingatlan

Budapest, VII. kerület

54 M Ft
51 m²
XIII. kerület, Vizafogó, Cserhalom utca
Eladó téglalakás

Budapest, XIII. kerület

114.99 M Ft
2 szoba
44 m²
XII. kerület, Németvölgy, Zalai út
Eladó téglalakás

Budapest, XII. kerület

139.99 M Ft
3 szoba
59 m²
VII. kerület
Eladó ipari ingatlan

Budapest, VII. kerület

45 M Ft
131 m²
VII. kerület
Eladó ipari ingatlan

Budapest, VII. kerület

54 M Ft
51 m²
VII. kerület
Eladó ipari ingatlan

Budapest, VII. kerület

29.9 M Ft
75 m²
VI. kerület, Külső Terézváros, Zichy Jenő utca
Eladó téglalakás

Budapest, VI. kerület

190 M Ft
5 szoba
175 m²
III. kerület
Eladó ikerház

Budapest, III. kerület

225 M Ft
5 szoba
110 m²
III. kerület
Eladó téglalakás

Budapest, III. kerület

160 M Ft
3 szoba
60 m²
VII. kerület
Eladó ipari ingatlan

Budapest, VII. kerület

39 M Ft
79 m²
VII. kerület
Eladó ipari ingatlan

Budapest, VII. kerület

12 M Ft
12 m²
VII. kerület
Eladó ipari ingatlan

Budapest, VII. kerület

112 M Ft
140 m²
V. kerület, Lipótváros, Vigyázó Ferenc utca
Eladó téglalakás

Budapest, V. kerület

229.9 M Ft
4 szoba
106 m²
VII. kerület
Eladó ipari ingatlan

Budapest, VII. kerület

350 M Ft
351 m²
VII. kerület
Eladó ipari ingatlan

Budapest, VII. kerület

29.9 M Ft
75 m²
VII. kerület
Eladó ipari ingatlan

Budapest, VII. kerület

620 M Ft
1157 m²
VII. kerület
Eladó ipari ingatlan

Budapest, VII. kerület

37.5 M Ft
100 m²
XIII. kerület, Angyalföld, Népfürdő utca
Eladó panellakás

Budapest, XIII. kerület

64.99 M Ft
1 szoba
36 m²
VII. kerület
Eladó ipari ingatlan

Budapest, VII. kerület

37.5 M Ft
100 m²

Falusi CSOK ingatlanok

Jászkarajenő
Eladó családi ház

Jászkarajenő

17.5 M Ft
2 + 1 szoba
47 m²
Izsófalva
Eladó családi ház

Izsófalva

22.9 M Ft
3 szoba
105 m²
Nagyberény
Eladó családi ház

Nagyberény

27.9 M Ft
6 szoba
130 m²
Zsámbok
Eladó családi ház

Zsámbok

63.5 M Ft
4 szoba
108 m²
Ádánd
Eladó családi ház

Ádánd

67 M Ft
6 szoba
251 m²
Bag
Eladó családi ház

Bag

16.9 M Ft
6 szoba
160 m²
Kaposszerdahely, Rákóczi Ferenc utca
Eladó családi ház

Kaposszerdahely

19.9 M Ft
2 szoba
75 m²
Páka
Eladó családi ház

Páka

23 M Ft
2 szoba
75 m²