Eladó ikerház
Veresegyház

+ 11 kép 1/14
145 800 000 Ft145.8 M Ft 959 211 Ft/m2
1 + 4 szoba
152 m2
építés éve:2026

Részletes adatok

Telekméret: 480 m2
Fűtés: Egyéb
Energetikai besorolás: Nem adta meg a hirdető

Az OTP Bank lakáshitel ajánlataFizetett hirdetés

+36 1 690
Drevnó Béla
Duna House Kispest

Érdekel az OTP Bank kedvezményes lakáshitel ajánlata? *

* A kérdésre „Igen” válasz bejelölése esetén, az „Üzenet küldése” gombra kattintva kijelentem, hogy az OTP Bank Nyrt. Adatkezelési tájékoztatójának tartalmát megismertem és tudomásul vettem.

Eladó ikerház leírása

Veresegyházon új otthon vár családokra, természetkedvelőkre, nyugalmat keresőkre
Letisztult elegancia, praktikus elrendezés és természetközeli életérzés ez mind megvalósul ebben a 154 m²-es, újépítésű ikerházban Veresegyház egyik legbarátságosabb részén.

Az építkezés még a kezdeti szakaszban van most még lehetősége van saját igényeire szabni a kialakítást.

Kiknek ideális ez az otthon?
- Családoknak, akik tágas, jól szervezett életteret keresnek
- Kétgenerációs együttéléshez a földszinti szoba és fürdő ideális idősebb családtagnak
- Természetkedvelőknek és kutyásoknak az utca túloldalán egy hívogató kiserdő nyújt kikapcsolódást
- Dolgozó pároknak, akik elérhető közelségben szeretnének élni Budapesttől

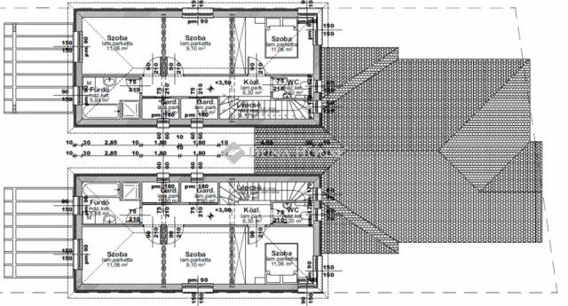
A ház elrendezése:
- Földszint: amerikai konyhás nappali kertkapcsolattal, szoba, fürdő, háztartási helyiség, kamra, tároló és garázs
- Emelet: 3 hálószoba, 2 gardrób, fürdő és külön WC

Csendes, zöld környezet, mégis jó közlekedés ritka párosítás.
Most lehetősége van rá, hogy ezt mind megtalálja egy új, minőségi otthonban.
Érezze meg személyesen is, milyen itt az otthon hangulata hívjon bátran időpontért!
A Duna House teljes kínálatával kapcsolatban forduljanak hozzám bizalommal!

Bankfüggetlen pénzügyi szakembereink tanácsadással, ügyintézéssel tudják segíteni Önöket álmaik, céljaik megvalósításában!

Vegye igénybe díjmentes konzultációinkat!

https://www.facebook.com/otthonkonnyeden

Referencia szám: HZ042961

Hirdetés feltöltve: 2025. 08. 05. Utoljára módosítva: 2025. 10. 11.

5 szobás ikerházak ára Veresegyházon

Ebből az összehasonlításból megtudhatod, hogyan viszonyul a lakás ára a környékbeli ikerházak átlagos árához. Ez nem azt jelenti, hogy ennyivel olcsóbb vagy drágább, mint amennyit a lakás ér, hanem hogy ennyivel tér el a környékbeli átlagtól.

Ennek a m² ára
Veresegyház m² ár
959 e Ft
968 e Ft 1%
Ennek az ára
Veresegyház átlagár
145.8 M Ft m Ft
138 m Ft -6%

Az ingatlan elhelyezkedése

Cím: Veresegyház

Eladó ikerházak a környékről

Eladó ikerház
Eladó ikerház

Pécel, Pécel - kertváros

127 M Ft
4 szoba
125 m2
Eladó ikerház
Eladó ikerház

Pomáz

129.5 M Ft
4 szoba
100 m2
Eladó ikerház
Eladó ikerház

Veresegyház

249 M Ft
5 szoba
170 m2
Eladó ikerház
Eladó ikerház

Veresegyház

145.8 M Ft
5 szoba
153 m2
Eladó ikerház
Eladó ikerház

Veresegyház

149 M Ft
5 szoba
150 m2
Eladó ikerház
Eladó ikerház

Veresegyház

109.9 M Ft
5 szoba
110 m2
Eladó ikerház
Eladó ikerház

Veresegyház

145.8 M Ft
5 szoba
128 m2
Eladó ikerház
Eladó ikerház

Veresegyház

99.7 M Ft
6 szoba
210 m2
Eladó ikerház
Eladó ikerház

Veresegyház

149 M Ft
5 szoba
150 m2
Eladó ikerház
Eladó ikerház

Érd

139.9 M Ft
5 szoba
159 m2
Eladó ikerház
Eladó ikerház

Dunakeszi

149 M Ft
1 + 4 szoba
127 m2
Eladó ikerház
Eladó ikerház

Veresegyház

145 M Ft
4 szoba
120 m2
Eladó ikerház
Eladó ikerház

Pécel

149.9 M Ft
5 szoba
306 m2
Eladó ikerház
Eladó ikerház

Veresegyház

99.999 M Ft
5 szoba
138 m2
Eladó ikerház
Eladó ikerház

Veresegyház

114.9 M Ft
5 szoba
110 m2
Eladó ikerház
Eladó ikerház

Szentendre

359 M Ft
5 szoba
289 m2
Eladó ikerház
Eladó ikerház

Tahitótfalu

88.9 M Ft
4 szoba
110 m2
Eladó ikerház
Eladó ikerház

Szentendre, Szentendre

398 M Ft
5 szoba
267 m2
Eladó ikerház
Eladó ikerház

Érd, Érdliget - Kutyavár, Érdligeten található utca

64.9 M Ft
4 szoba
112 m2
Eladó ikerház
Eladó ikerház

Veresegyház

144.9 M Ft
5 szoba
141 m2
Eladó ikerház
Eladó ikerház

Kiskunlacháza

89.1 M Ft
4 szoba
99 m2
Eladó ikerház
Eladó ikerház

Pusztazámor

55 M Ft
10 szoba
470 m2
Eladó ikerház
Eladó ikerház

Veresegyház

99.7 M Ft
6 szoba
210 m2
Eladó ikerház
Eladó ikerház

Mogyoród, Fóti út

188 M Ft
6 szoba
182 m2

Falusi CSOK ingatlanok

Eladó családi ház
Eladó családi ház

Szigetbecse

99 M Ft
3 szoba
86 m2
Eladó családi ház
Eladó családi ház

Simonfa, Dózsa György utca

16.5 M Ft
1 szoba
40 m2
Eladó családi ház
Eladó családi ház

Sajószöged, Bartók Béla

47.9 M Ft
4 + 1 szoba
145 m2
Eladó családi ház
Eladó családi ház

Kánya

27.6 M Ft
3 + 1 szoba
62 m2
Eladó családi ház
Eladó családi ház

Andocs

49.853 M Ft
2 szoba
90 m2
Eladó családi ház
Eladó családi ház

Kunadacs

34 M Ft
240 m2
Eladó családi ház
Eladó családi ház

Pilisszentkereszt

139 M Ft
5 szoba
220 m2
Eladó családi ház
Eladó családi ház

Pusztamiske

29.9 M Ft
4 szoba
156 m2