City Pearl

Eladó ikerház
Veresegyház

+ 4 kép 1/7
145 800 000 Ft145.8 M Ft 1 175 806 Ft/m2
3 + 1 szoba
124 m²
építés éve:2026

Részletes adatok

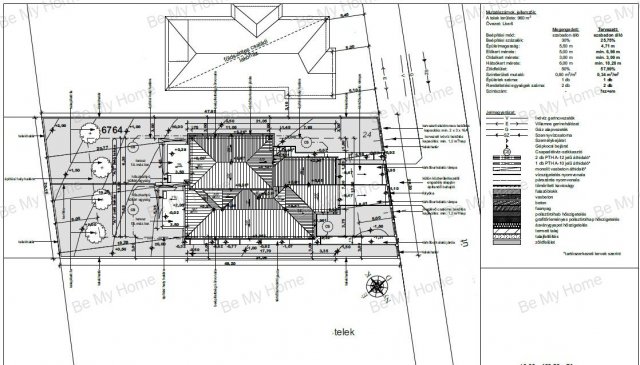
Telekméret: 480 m2
Fűtés: Egyéb
Parkolás: Garázs
Energetikai besorolás: Nem adta meg a hirdető

Az OTP Bank lakáshitel ajánlataFizetett hirdetés

+36 30 239
Gyurkó Melinda
BeMyHome Ingatlan

Érdekel az OTP Bank kedvezményes lakáshitel ajánlata? *

* A kérdésre „Igen” válasz bejelölése esetén, az „Üzenet küldése” gombra kattintva kijelentem, hogy az OTP Bank Nyrt. Adatkezelési tájékoztatójának tartalmát megismertem és tudomásul vettem.

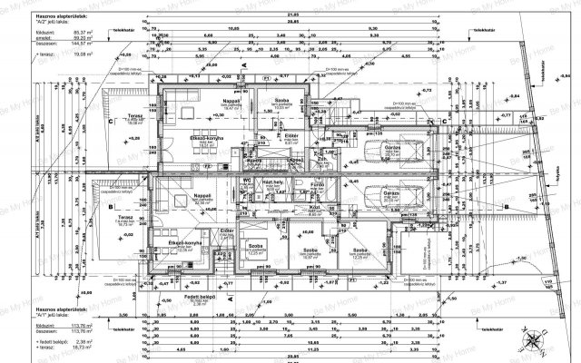
Eladó ikerház leírása

Veresegyház kiváló részén eladó egy ikerház mindkét fele!

Az alaprajzon az A1 lakás egyszintes, az A2 lakás kétszintes.

Ebben a hirdetésben az A1 lakásról van szó.

Jellemzők:

- nappali + 3 hálószoba

- egy fürdőszoba káddal és zuhanyzóval

- külön toilet

- saját garázs

- 490 nm-es kertrész

- 12 cm-es szigetelés

- hőszivattyús fűtés padlófűtéssel, a garázsban is

- viacolor járda a ház körül

- kerítés

- kerti csap kiállás

- 6 légkamrás műanyag nyílászárók 3 rétegű üvegezéssel

- elektromos kiállás az atóbeálló kapujához

Jogi információ:

- A 980 nm-es telek egy helyrajz számon található, így 2 lakásos társasház lesz. Az Alapító okiratot a beruházó elkészíti. Számtalan referenciával rendelkeznek, melyeket meg lehet tekinteni.

Közlekedésileg a Veresegyház, Széchenyi tér óvoda gyalogosan csupán 7 percre található!

Autóval Bp. Belváros csúcsidőben kb. 50 perc alatt érhető el.

Díjtalan, banksemleges hitelügyintézésben segítünk!

Hirdetés feltöltve: 2025. 09. 23. Utoljára módosítva: 2026. 04. 01.

4 szobás ikerházak ára Veresegyházon

Ebből az összehasonlításból megtudhatod, hogyan viszonyul a lakás ára a környékbeli ikerházak átlagos árához. Ez nem azt jelenti, hogy ennyivel olcsóbb vagy drágább, mint amennyit a lakás ér, hanem hogy ennyivel tér el a környékbeli átlagtól.

Ennek a m² ára
Veresegyház m² ár
1176 e Ft
1176 e Ft 0%
Ennek az ára
Veresegyház átlagár
145.8 M Ft m Ft
122.1 m Ft -19%

Az ingatlan elhelyezkedése

Cím: Veresegyház

Eladó ikerházak a környékről

Budakalász
Eladó ikerház

Budakalász

195 M Ft
5 + 2 szoba
170 m²
Vácrátót
Eladó ikerház

Vácrátót

99.9 M Ft
3 + 2 szoba
112 m²
Veresegyház
Eladó ikerház

Veresegyház

110 M Ft
4 szoba
97 m²
Pécel, Pécel - kertváros
Eladó ikerház

Pécel

127 M Ft
4 szoba
125 m²
Szentendre
Eladó ikerház

Szentendre

359 M Ft
5 + 1 szoba
289 m²
Veresegyház
Eladó ikerház

Veresegyház

149 M Ft
5 szoba
150 m²
Veresegyház
Eladó ikerház

Veresegyház

145.8 M Ft
1 + 4 szoba
154 m²
Veresegyház
Eladó ikerház

Veresegyház

158.8 M Ft
5 szoba
120 m²
Veresegyház
Eladó ikerház

Veresegyház

120 M Ft
4 szoba
109 m²
Veresegyház
Eladó ikerház

Veresegyház

158.8 M Ft
5 szoba
120 m²
Dunakeszi
Eladó ikerház

Dunakeszi

149 M Ft
1 + 4 szoba
127 m²
Nagytarcsa
Eladó ikerház

Nagytarcsa

119.9 M Ft
4 szoba
103 m²
Veresegyház
Eladó ikerház

Veresegyház

120 M Ft
4 szoba
109 m²
Veresegyház
Eladó ikerház

Veresegyház

145.8 M Ft
1 + 4 szoba
154 m²
Vác
Eladó ikerház

Vác

149.9 M Ft
5 szoba
202 m²
Mogyoród
Eladó ikerház

Mogyoród

135 M Ft
5 szoba
137 m²
Veresegyház
Eladó ikerház

Veresegyház

145.8 M Ft
1 + 4 szoba
152 m²
Herceghalom
Eladó ikerház

Herceghalom

135 M Ft
5 szoba
134 m²
Érd
Eladó ikerház

Érd

177.7 M Ft
7 szoba
181 m²
Szentendre
Eladó ikerház

Szentendre

718 M Ft
10 + 2 szoba
578 m²
Veresegyház
Eladó ikerház

Veresegyház

94.99 M Ft
4 szoba
105 m²
Pécel
Eladó ikerház

Pécel

149.9 M Ft
5 szoba
306 m²
Vác
Eladó ikerház

Vác

99.7 M Ft
4 + 1 szoba
129 m²
Veresegyház
Eladó ikerház

Veresegyház

229 M Ft
5 szoba
170 m²

Falusi CSOK ingatlanok

Nemesszentandrás
Eladó családi ház

Nemesszentandrás

25 M Ft
2 szoba
92 m²
Ceglédbercel
Eladó családi ház

Ceglédbercel

79.9 M Ft
5 szoba
140 m²
Levelek
Eladó családi ház

Levelek

73 M Ft
5 szoba
220 m²
Szentmártonkáta
Eladó családi ház

Szentmártonkáta

35 M Ft
3 szoba
70 m²
Lengyeltóti
Eladó családi ház

Lengyeltóti

59.9 M Ft
5 szoba
205 m²
Tápiógyörgye
Eladó családi ház

Tápiógyörgye

24.99 M Ft
6 + 1 szoba
153 m²
Nyáregyháza
Eladó családi ház

Nyáregyháza

189 M Ft
2 szoba
260 m²
Kemecse
Eladó családi ház

Kemecse

62.5 M Ft
4 szoba
144 m²