Seven Pearl

Eladó ikerház
Vasad

+ 1 kép 1/4
74 900 000 Ft74.9 M Ft 841 573 Ft/m2
4 szoba
89 m²
építés éve:2026

Részletes adatok

Telekméret: 500 m2
Fűtés: Egyéb
Energetikai besorolás: Nem adta meg a hirdető

Az OTP Bank lakáshitel ajánlataFizetett hirdetés

3629769714
Kiss Tamás
referens

Érdekel az OTP Bank kedvezményes lakáshitel ajánlata? *

* A kérdésre „Igen” válasz bejelölése esetén, az „Üzenet küldése” gombra kattintva kijelentem, hogy az OTP Bank Nyrt. Adatkezelési tájékoztatójának tartalmát megismertem és tudomásul vettem.

Eladó ikerház leírása

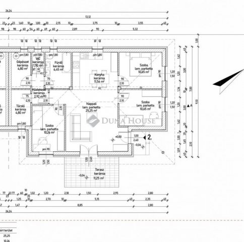
ÚJ ÉPÍTÉSŰ IKERHÁZFÉL VASADON SAJÁT TELEKKEL, MODERN MŰSZAKI TARTALOMMALVasad dinamikusan fejlődő, új építésű részén kínálunk megvételre egy nettó 89 m²-es, nappali + 3 hálószobás ikerházfelet.Az ingatlan praktikus elrendezésű, világos terekkel és jól kihasználható helyiségekkel rendelkezik.Tágas, amerikai konyhás nappali3 külön nyíló hálószobaFürdőszobaKülön WCTárolóKülön gépészeti helyiségSaját, kb. 700 m²-es privát telek!!Az ikerházfelek teljesen elszeparáltak, csak a tárolóknál kapcsolódnak, így nincs közös lakótéri fal. A két ingatlan külön kerítéssel leválasztva épül, így valóban önálló otthon érzetét nyújtja.Az ingatlanhoz saját, murvával tömörített gépkocsi-beálló tartozik.Műszaki tartalom:Hőszivattyús fűtési rendszerPadlófűtés a helyiségekbenFürdőszobában törölközőszárítós radiátorSplit klíma30 cm Porotherm főfalazat, rajta 15 cm grafitos hőszigetelés10 cm válaszfalakHagyományos fa tetőszerkezet, cserépfedéssel (kakaóbarna)Horganyzott bádogos szerkezetek, ereszcsatornák3 rétegű, hőszigetelt üvegezésű műanyag nyílászárókVálasztható burkolatok és belső elemek:A vételár az alábbi értékhatárig tartalmazza a burkolatokatHidegburkolat: 5.500 Ft/m²-igMelegburkolat: 6.000 Ft/m²-igBeltéri ajtók: 70.000 Ft/db-igÍgy új otthonát részben még saját ízlésére formálhatja.Ne maradjon le róla! Keressen bizalommal, akár hétvégén is!Várható átadás: 2027 első negyedév.Amennyiben hitelre lenne szüksége, kiváló, szakmailag felkészült kollégánkkal a Credipasstól ingyenes és bankfüggetlen szaktanácsadás keretén belül biztosan megtalálják a lehető legkedvezőbb, személyre szabott konstrukciót. További kérdés esetén állok szíves rendelkezésükre hétvégén is, a megadott elérhetőségek bármelyikén.

Hirdetés feltöltve: 2026. 04. 20. Utoljára módosítva: 2026. 04. 21.

4 szobás ikerházak ára Vasadon

Ebből az összehasonlításból megtudhatod, hogyan viszonyul a lakás ára a környékbeli ikerházak átlagos árához. Ez nem azt jelenti, hogy ennyivel olcsóbb vagy drágább, mint amennyit a lakás ér, hanem hogy ennyivel tér el a környékbeli átlagtól.

Ennek a m² ára
Vasad m² ár
842 e Ft
795 e Ft -6%
Ennek az ára
Vasad átlagár
74.9 M Ft m Ft
79.8 m Ft 6%

Az ingatlan elhelyezkedése

Cím: Vasad

Eladó ingatlanok a környékről

Gödöllő, Belváros, Bajcsy-Zsilinszky
Eladó telek

Gödöllő

210 M Ft
2000 m²
0 m²
Vasad
Eladó ikerház

Vasad

82.9 M Ft
4 szoba
108 m²
Vác
Eladó ikerház

Vác

99.7 M Ft
4 + 1 szoba
129 m²
Vác
Eladó ikerház

Vác

149.9 M Ft
5 szoba
202 m²
Vasad
Eladó ikerház

Vasad

69.9 M Ft
4 szoba
89 m²
Vasad
Eladó ikerház

Vasad

92 M Ft
4 szoba
113 m²
Budajenő
Eladó telek

Budajenő

191.21 M Ft
4249 m²
0 m²
Vasad
Eladó ikerház

Vasad

71.9 M Ft
4 szoba
89 m²
Vác
Eladó ikerház

Vác

96.7 M Ft
4 + 1 szoba
126 m²
Biatorbágy
Eladó telek

Biatorbágy

75 M Ft
622 m²
0 m²
Herceghalom
Eladó ikerház

Herceghalom

148 M Ft
5 szoba
134 m²
Pomáz
Eladó ikerház

Pomáz

129.5 M Ft
4 szoba
100 m²
Erdőkertes
Eladó családi ház

Erdőkertes

135 M Ft
6 + 1 szoba
235 m²
Vasad
Eladó ikerház

Vasad

74.9 M Ft
4 szoba
89 m²
Vasad
Eladó ikerház

Vasad

74.9 M Ft
4 szoba
89 m²
Pécel
Eladó családi ház

Pécel

129.5 M Ft
5 szoba
193 m²
Pécel
Eladó ikerház

Pécel

149.9 M Ft
5 szoba
306 m²
Páty
Eladó telek

Páty

16.8 M Ft
2163 m²
0 m²
Vasad
Eladó ikerház

Vasad

82.9 M Ft
4 szoba
108 m²
Gyál
Eladó ikerház

Gyál

118.9 M Ft
5 szoba
108 m²
Vasad
Eladó ikerház

Vasad

74.9 M Ft
4 szoba
89 m²
Vasad
Eladó ikerház

Vasad

82.9 M Ft
4 szoba
108 m²
Vasad
Eladó ikerház

Vasad

82.9 M Ft
4 szoba
108 m²
Kiskunlacháza
Eladó ikerház

Kiskunlacháza

44.9 M Ft
2 szoba
39 m²

Falusi CSOK ingatlanok

Pilisszentkereszt
Eladó családi ház

Pilisszentkereszt

68.9 M Ft
2 szoba
50 m²
Galgahévíz
Eladó családi ház

Galgahévíz

43 M Ft
3 szoba
115 m²
Bag
Eladó családi ház

Bag

16.9 M Ft
6 szoba
160 m²
Jánosháza
Eladó családi ház

Jánosháza

32 M Ft
2 szoba
116 m²
Mesteri
Eladó családi ház

Mesteri

29.7 M Ft
4 szoba
140 m²
Marcalgergelyi
Eladó családi ház

Marcalgergelyi

31 M Ft
2 + 1 szoba
120 m²
Magyarkeszi
Eladó családi ház

Magyarkeszi

29.5 M Ft
3 + 1 szoba
80 m²
Seregélyes
Eladó családi ház

Seregélyes

75 M Ft
6 szoba
160 m²