Astora Olive Club House

Eladó ikerház
Vasad

+ 1 kép 1/4
74 900 000 Ft74.9 M Ft 841 573 Ft/m2
4 szoba
89 m²
építés éve:2026

Részletes adatok

Telekméret: 500 m2
Fűtés: Egyéb
Energetikai besorolás: Nem adta meg a hirdető

Az OTP Bank lakáshitel ajánlataFizetett hirdetés

+36 20 207
Palotainé Kovács Gabriella
referens

Érdekel az OTP Bank kedvezményes lakáshitel ajánlata? *

* A kérdésre „Igen” válasz bejelölése esetén, az „Üzenet küldése” gombra kattintva kijelentem, hogy az OTP Bank Nyrt. Adatkezelési tájékoztatójának tartalmát megismertem és tudomásul vettem.

Eladó ikerház leírása

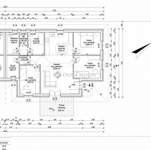
ÚJ ÉPÍTÉSŰ IKERHÁZFÉL VASADON SAJÁT TELEKKEL, MODERN MŰSZAKI TARTALOMMALVasad dinamikusan fejlődő, új építésű részén kínálunk megvételre egy nettó 89 m²-es, nappali + 3 hálószobás ikerházfelet.Az ingatlan praktikus elrendezésű, világos terekkel és jól kihasználható helyiségekkel rendelkezik.Tágas, amerikai konyhás nappali3 külön nyíló hálószobaFürdőszobaKülön WCTárolóKülön gépészeti helyiségSaját, kb. 700 m²-es privát telek!!Az ikerházfelek teljesen elszeparáltak, csak a tárolóknál kapcsolódnak, így nincs közös lakótéri fal. A két ingatlan külön kerítéssel leválasztva épül, így valóban önálló otthon érzetét nyújtja.Az ingatlanhoz saját, murvával tömörített gépkocsi-beálló tartozik.Műszaki tartalom:Hőszivattyús fűtési rendszerPadlófűtés a helyiségekbenFürdőszobában törölközőszárítós radiátorSplit klíma30 cm Porotherm főfalazat, rajta 15 cm grafitos hőszigetelés10 cm válaszfalakHagyományos fa tetőszerkezet, cserépfedéssel (kakaóbarna)Horganyzott bádogos szerkezetek, ereszcsatornák3 rétegű, hőszigetelt üvegezésű műanyag nyílászárókVálasztható burkolatok és belső elemek:A vételár az alábbi értékhatárig tartalmazza a burkolatokatHidegburkolat: 5.500 Ft/m²-igMelegburkolat: 6.000 Ft/m²-igBeltéri ajtók: 70.000 Ft/db-igÍgy új otthonát részben még saját ízlésére formálhatja.Ne maradjon le róla! Keressen bizalommal, akár hétvégén is!Várható átadás: 2027 első negyedév.Amennyiben hitelre lenne szüksége, kiváló, szakmailag felkészült kollégánkkal a Credipasstól ingyenes és bankfüggetlen szaktanácsadás keretén belül biztosan megtalálják a lehető legkedvezőbb, személyre szabott konstrukciót. További kérdés esetén állok szíves rendelkezésükre hétvégén is, a megadott elérhetőségek bármelyikén.
Kovács Gabriella,Tel:+36/202070435,e-mail:palotaine.gabriella@dh.hu

Referencia szám: HZ069435

Hirdetés feltöltve: 2026. 04. 10. Utoljára módosítva: 2026. 05. 10.

4 szobás ikerházak ára Vasadon

Ebből az összehasonlításból megtudhatod, hogyan viszonyul a lakás ára a környékbeli ikerházak átlagos árához. Ez nem azt jelenti, hogy ennyivel olcsóbb vagy drágább, mint amennyit a lakás ér, hanem hogy ennyivel tér el a környékbeli átlagtól.

Ennek a m² ára
Vasad m² ár
842 e Ft
795 e Ft -6%
Ennek az ára
Vasad átlagár
74.9 M Ft m Ft
79.8 m Ft 6%

Az ingatlan elhelyezkedése

Cím: Vasad

Eladó ingatlanok a környékről

Herceghalom
Eladó ikerház

Herceghalom

99 M Ft
4 szoba
106 m²
Diósd
Eladó ikerház

Diósd

206.25 M Ft
5 szoba
184 m²
Hernád
Eladó ikerház

Hernád

41.3 M Ft
3 szoba
68 m²
Vác
Eladó ikerház

Vác

96.7 M Ft
4 + 1 szoba
126 m²
Nagytarcsa
Eladó ikerház

Nagytarcsa

119.9 M Ft
4 szoba
103 m²
Pécel, Pécel - kertváros
Eladó ikerház

Pécel

127 M Ft
4 szoba
125 m²
Vasad
Eladó ikerház

Vasad

82.9 M Ft
4 szoba
108 m²
Vasad
Eladó ikerház

Vasad

74.9 M Ft
4 szoba
89 m²
Kiskunlacháza
Eladó ikerház

Kiskunlacháza

44.9 M Ft
2 szoba
39 m²
Vasad
Eladó ikerház

Vasad

82.9 M Ft
4 szoba
108 m²
Leányfalu, Gyöngyvirág utca
Eladó telek

Leányfalu

39 M Ft
444 m²
0 m²
Vasad
Eladó ikerház

Vasad

92 M Ft
4 szoba
113 m²
Vácrátót
Eladó ikerház

Vácrátót

94.9 M Ft
2 + 3 szoba
108 m²
Érd
Eladó ikerház

Érd

177.7 M Ft
7 szoba
181 m²
Vasad
Eladó ikerház

Vasad

82.9 M Ft
4 szoba
108 m²
Vasad
Eladó ikerház

Vasad

82.9 M Ft
4 szoba
108 m²
Pomáz
Eladó ikerház

Pomáz

129.5 M Ft
4 szoba
100 m²
Diósd
Eladó ikerház

Diósd

213.46 M Ft
5 szoba
186 m²
Vácrátót
Eladó ikerház

Vácrátót

99.9 M Ft
3 + 2 szoba
112 m²
Szentendre
Eladó ikerház

Szentendre

179 M Ft
5 + 1 szoba
147 m²
Vasad
Eladó ikerház

Vasad

74.9 M Ft
4 szoba
89 m²
Vasad
Eladó ikerház

Vasad

69.9 M Ft
4 szoba
89 m²
Vasad
Eladó ikerház

Vasad

82.9 M Ft
4 szoba
108 m²
Vác
Eladó ikerház

Vác

149.9 M Ft
5 szoba
202 m²

Falusi CSOK ingatlanok

Iváncsa
Eladó családi ház

Iváncsa

93.5 M Ft
5 szoba
283 m²
Tihany
Eladó családi ház

Tihany

149 M Ft
5 szoba
270 m²
Tápióság
Eladó családi ház

Tápióság

71.5 M Ft
4 szoba
72 m²
Balatonszepezd
Eladó családi ház

Balatonszepezd

299 M Ft
5 szoba
220 m²
Arló, Mátyás Király utca
Eladó családi ház

Arló

14.99 M Ft
2 szoba
66 m²
Lovasberény
Eladó sorház

Lovasberény

78 M Ft
4 + 1 szoba
124 m²
Lajoskomárom
Eladó családi ház

Lajoskomárom

22.9 M Ft
2 szoba
66 m²
Sződ
Eladó családi ház

Sződ

116.9 M Ft
4 + 1 szoba
102 m²