Seven Pearl

Eladó ikerház
Vasad

+ 1 kép 1/4
74 900 000 Ft74.9 M Ft 841 573 Ft/m2
4 szoba
89 m²
építés éve:2026

Részletes adatok

Telekméret: 500 m2
Fűtés: Egyéb
Energetikai besorolás: A+

Az OTP Bank lakáshitel ajánlataFizetett hirdetés

+36 1 690
Zöldi Norbert
referens

Érdekel az OTP Bank kedvezményes lakáshitel ajánlata? *

* A kérdésre „Igen” válasz bejelölése esetén, az „Üzenet küldése” gombra kattintva kijelentem, hogy az OTP Bank Nyrt. Adatkezelési tájékoztatójának tartalmát megismertem és tudomásul vettem.

Eladó ikerház leírása

ÚJ ÉPÍTÉSŰ IKERHÁZFÉL VASADON SAJÁT TELEKKEL, MODERN MŰSZAKI TARTALOMMAL

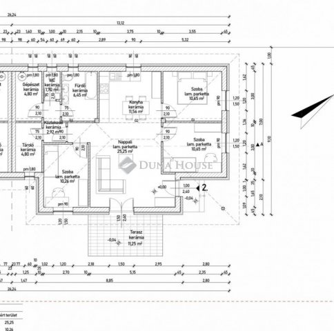
Vasad dinamikusan fejlődő, új építésű részén kínálunk megvételre egy nettó 89 m²-es, nappali + 3 hálószobás ikerházfelet.

Az ingatlan praktikus elrendezésű, világos terekkel és jól kihasználható helyiségekkel rendelkezik.

Tágas, amerikai konyhás nappali
3 külön nyíló hálószoba
Fürdőszoba
Külön WC
Tároló
Külön gépészeti helyiség

Saját, kb. 700 m²-es privát telek!!

Az ikerházfelek teljesen elszeparáltak, csak a tárolóknál kapcsolódnak, így nincs közös lakótéri fal. A két ingatlan külön kerítéssel leválasztva épül, így valóban önálló otthon érzetét nyújtja.

Az ingatlanhoz saját, murvával tömörített gépkocsi-beálló tartozik.

Műszaki tartalom:
Hőszivattyús fűtési rendszer
Padlófűtés a helyiségekben
Fürdőszobában törölközőszárítós radiátor
Split klíma
30 cm Porotherm főfalazat, rajta 15 cm grafitos hőszigetelés
10 cm válaszfalak
Hagyományos fa tetőszerkezet, cserépfedéssel (kakaóbarna)
Horganyzott bádogos szerkezetek, ereszcsatornák
3 rétegű, hőszigetelt üvegezésű műanyag nyílászárók

Választható burkolatok és belső elemek:
A vételár az alábbi értékhatárig tartalmazza a burkolatokat
Hidegburkolat: 5.500 Ft/m²-ig
Melegburkolat: 6.000 Ft/m²-ig
Beltéri ajtók: 70.000 Ft/db-ig

Így új otthonát részben még saját ízlésére formálhatja.

Ne maradjon le róla! Keressen bizalommal, akár hétvégén is!

Várható átadás: 2027 első negyedév.

Amennyiben hitelre lenne szüksége, kiváló, szakmailag felkészült kollégánkkal a Credipasstól ingyenes és bankfüggetlen szaktanácsadás keretén belül biztosan megtalálják a lehető legkedvezőbb, személyre szabott konstrukciót. További kérdés esetén állok szíves rendelkezésükre hétvégén is, a megadott elérhetőségek bármelyikén.
Zöldi Norbert +36709450148

Referencia szám: HZ069435

Hirdetés feltöltve: 2026. 04. 08. Utoljára módosítva: 2026. 04. 30.

4 szobás ikerházak ára Vasadon

Ebből az összehasonlításból megtudhatod, hogyan viszonyul a lakás ára a környékbeli ikerházak átlagos árához. Ez nem azt jelenti, hogy ennyivel olcsóbb vagy drágább, mint amennyit a lakás ér, hanem hogy ennyivel tér el a környékbeli átlagtól.

Ennek a m² ára
Vasad m² ár
842 e Ft
796 e Ft -6%
Ennek az ára
Vasad átlagár
74.9 M Ft m Ft
80.1 m Ft 6%

Az ingatlan elhelyezkedése

Cím: Vasad

Eladó ingatlanok a környékről

Abony
Eladó téglalakás

Abony

41.9 M Ft
3 szoba
90 m²
Vasad
Eladó ikerház

Vasad

74.9 M Ft
4 szoba
89 m²
Monor
Eladó családi ház

Monor

36.9 M Ft
2 szoba
45 m²
Herceghalom
Eladó ikerház

Herceghalom

99 M Ft
4 szoba
106 m²
Diósd
Eladó ikerház

Diósd

213.46 M Ft
5 szoba
186 m²
Abony
Eladó mezogazdasagi ingatlan

Abony

17 M Ft
1.44 ha
0 m²
Vasad
Eladó ikerház

Vasad

71.9 M Ft
4 szoba
89 m²
Kiskunlacháza
Eladó ikerház

Kiskunlacháza

44.9 M Ft
2 szoba
39 m²
Diósd
Eladó ikerház

Diósd

206.25 M Ft
5 szoba
184 m²
Vácrátót
Eladó ikerház

Vácrátót

94.9 M Ft
2 + 3 szoba
108 m²
Abony
Eladó családi ház

Abony

35 M Ft
1 szoba
57 m²
Abony
Eladó családi ház

Abony

15.9 M Ft
2 szoba
63 m²
Vasad
Eladó ikerház

Vasad

82.9 M Ft
4 szoba
108 m²
Abony
Eladó családi ház

Abony

32.9 M Ft
2 szoba
62 m²
Dunakeszi
Eladó ikerház

Dunakeszi

178 M Ft
6 szoba
140 m²
Pécel, Pécel - kertváros
Eladó ikerház

Pécel

127 M Ft
4 szoba
125 m²
Vác
Eladó ikerház

Vác

96.7 M Ft
4 + 1 szoba
126 m²
Herceghalom
Eladó ikerház

Herceghalom

148 M Ft
5 szoba
134 m²
Vasad
Eladó ikerház

Vasad

82.9 M Ft
4 szoba
108 m²
Vác
Eladó ikerház

Vác

149.9 M Ft
5 szoba
202 m²
Mogyoród
Eladó ikerház

Mogyoród

135 M Ft
5 szoba
137 m²
Vasad
Eladó ikerház

Vasad

82.9 M Ft
4 szoba
108 m²
Vasad
Eladó ikerház

Vasad

82.9 M Ft
4 szoba
108 m²
Pécel
Eladó ikerház

Pécel

149.9 M Ft
5 szoba
306 m²

Falusi CSOK ingatlanok

Nagyharsány
Eladó téglalakás

Nagyharsány

22.5 M Ft
3 szoba
71 m²
Mád
Eladó családi ház

Mád

48 M Ft
3 szoba
181 m²
Verseg
Eladó családi ház

Verseg

32.5 M Ft
1 + 1 szoba
42 m²
Sződ
Eladó családi ház

Sződ

116.9 M Ft
4 + 1 szoba
102 m²
Villány
Eladó családi ház

Villány

31 M Ft
1 szoba
35 m²
Dombrád, Rákóczi út 22
Eladó családi ház

Dombrád

12.74 M Ft
1 + 1 szoba
125 m²
Tápióbicske
Eladó családi ház

Tápióbicske

79.9 M Ft
3 szoba
160 m²
Nemesszentandrás
Eladó családi ház

Nemesszentandrás

25 M Ft
2 szoba
92 m²