BAM Living

Eladó ikerház
Vasad

+ 1 kép 1/4
74 900 000 Ft74.9 M Ft 841 573 Ft/m2
4 szoba
89 m²
építés éve:2026

Részletes adatok

Telekméret: 500 m2
Fűtés: Egyéb
Energetikai besorolás: Nem adta meg a hirdető

Az OTP Bank lakáshitel ajánlataFizetett hirdetés

+36 1 690
Hársmán Kamilla
referens

Érdekel az OTP Bank kedvezményes lakáshitel ajánlata? *

* A kérdésre „Igen” válasz bejelölése esetén, az „Üzenet küldése” gombra kattintva kijelentem, hogy az OTP Bank Nyrt. Adatkezelési tájékoztatójának tartalmát megismertem és tudomásul vettem.

Eladó ikerház leírása

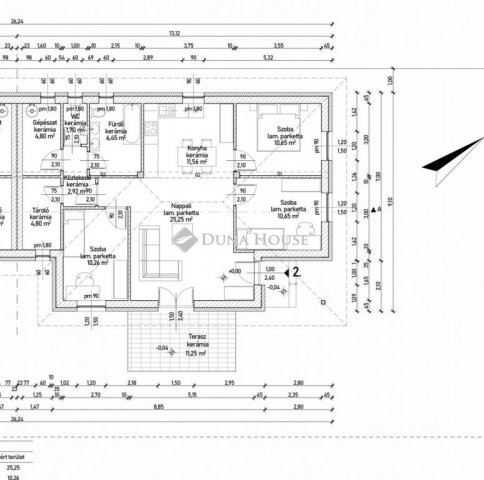
ÚJ ÉPÍTÉSŰ IKERHÁZFÉL VASADON SAJÁT TELEKKEL, MODERN MŰSZAKI TARTALOMMALVasad dinamikusan fejlődő, új építésű részén kínálunk megvételre egy nettó 89 m²-es, nappali + 3 hálószobás ikerházfelet.Az ingatlan praktikus elrendezésű, világos terekkel és jól kihasználható helyiségekkel rendelkezik.Tágas, amerikai konyhás nappali3 külön nyíló hálószobaFürdőszobaKülön WCTárolóKülön gépészeti helyiségSaját, kb. 700 m²-es privát telek!!Az ikerházfelek teljesen elszeparáltak, csak a tárolóknál kapcsolódnak, így nincs közös lakótéri fal. A két ingatlan külön kerítéssel leválasztva épül, így valóban önálló otthon érzetét nyújtja.Az ingatlanhoz saját, murvával tömörített gépkocsi-beálló tartozik.Műszaki tartalom:Hőszivattyús fűtési rendszerPadlófűtés a helyiségekbenFürdőszobában törölközőszárítós radiátorSplit klíma30 cm Porotherm főfalazat, rajta 15 cm grafitos hőszigetelés10 cm válaszfalakHagyományos fa tetőszerkezet, cserépfedéssel (kakaóbarna)Horganyzott bádogos szerkezetek, ereszcsatornák3 rétegű, hőszigetelt üvegezésű műanyag nyílászárókVálasztható burkolatok és belső elemek:A vételár az alábbi értékhatárig tartalmazza a burkolatokatHidegburkolat: 5.500 Ft/m²-igMelegburkolat: 6.000 Ft/m²-igBeltéri ajtók: 70.000 Ft/db-igÍgy új otthonát részben még saját ízlésére formálhatja.Ne maradjon le róla! Keressen bizalommal, akár hétvégén is!Várható átadás: 2027 első negyedév.Amennyiben hitelre lenne szüksége, kiváló, szakmailag felkészült kollégánkkal a Credipasstól ingyenes és bankfüggetlen szaktanácsadás keretén belül biztosan megtalálják a lehető legkedvezőbb, személyre szabott konstrukciót. További kérdés esetén állok szíves rendelkezésükre hétvégén is, a megadott elérhetőségek bármelyikén.

Referencia szám: HZ069435

Hirdetés feltöltve: 2026. 04. 08. Utoljára módosítva: 2026. 05. 21.

4 szobás ikerházak ára Vasadon

Ebből az összehasonlításból megtudhatod, hogyan viszonyul a lakás ára a környékbeli ikerházak átlagos árához. Ez nem azt jelenti, hogy ennyivel olcsóbb vagy drágább, mint amennyit a lakás ér, hanem hogy ennyivel tér el a környékbeli átlagtól.

Ennek a m² ára
Vasad m² ár
842 e Ft
795 e Ft -6%
Ennek az ára
Vasad átlagár
74.9 M Ft m Ft
79.8 m Ft 6%

Az ingatlan elhelyezkedése

Cím: Vasad

Eladó ingatlanok a környékről

Szentendre
Eladó ikerház

Szentendre

718 M Ft
10 + 2 szoba
578 m²
Herceghalom
Eladó ikerház

Herceghalom

99 M Ft
4 szoba
106 m²
Herceghalom
Eladó ikerház

Herceghalom

148 M Ft
5 szoba
134 m²
Vasad
Eladó ikerház

Vasad

74.9 M Ft
4 szoba
89 m²
Vasad
Eladó ikerház

Vasad

69.9 M Ft
4 szoba
89 m²
Vasad
Eladó ikerház

Vasad

82.9 M Ft
4 szoba
108 m²
Vasad
Eladó ikerház

Vasad

82.9 M Ft
4 szoba
108 m²
Vasad
Eladó ikerház

Vasad

74.9 M Ft
4 szoba
89 m²
Vasad
Eladó ikerház

Vasad

92 M Ft
4 szoba
113 m²
Pomáz
Eladó ikerház

Pomáz

129.5 M Ft
4 szoba
100 m²
Leányfalu, Gyöngyvirág utca
Eladó telek

Leányfalu

39 M Ft
444 m²
0 m²
Kiskunlacháza
Eladó ikerház

Kiskunlacháza

44.9 M Ft
2 szoba
39 m²
Pécel
Eladó ikerház

Pécel

389 M Ft
11 szoba
430 m²
Vác
Eladó ikerház

Vác

96.7 M Ft
4 + 1 szoba
126 m²
Vasad
Eladó ikerház

Vasad

74.9 M Ft
4 szoba
89 m²
Diósd
Eladó ikerház

Diósd

206.25 M Ft
5 szoba
184 m²
Vasad
Eladó ikerház

Vasad

82.9 M Ft
4 szoba
108 m²
Vasad
Eladó ikerház

Vasad

82.9 M Ft
4 szoba
108 m²
Vasad
Eladó ikerház

Vasad

74.9 M Ft
4 szoba
89 m²
Százhalombatta
Eladó családi ház

Százhalombatta

74.9 M Ft
5 szoba
140 m²
Vasad
Eladó ikerház

Vasad

82.9 M Ft
4 szoba
108 m²
Hernád
Eladó ikerház

Hernád

41.3 M Ft
3 szoba
68 m²
Vasad
Eladó ikerház

Vasad

74.9 M Ft
4 szoba
89 m²
Vác
Eladó ikerház

Vác

99.7 M Ft
4 + 1 szoba
129 m²

Falusi CSOK ingatlanok

Mencshely
Eladó családi ház

Mencshely

99 M Ft
3 szoba
126 m²
Hosszúpereszteg
Eladó családi ház

Hosszúpereszteg

27.9 M Ft
4 szoba
0 m²
Bag
Eladó családi ház

Bag

16.9 M Ft
6 szoba
160 m²
Előszállás
Eladó családi ház

Előszállás

69.9 M Ft
6 szoba
238 m²
Szabadbattyán
Eladó családi ház

Szabadbattyán

139.9 M Ft
4 szoba
201 m²
Sződ
Eladó családi ház

Sződ

116.9 M Ft
4 + 1 szoba
102 m²
Szabadbattyán
Eladó családi ház

Szabadbattyán

79.6 M Ft
4 szoba
101 m²
Újkígyós
Eladó családi ház

Újkígyós

29.9 M Ft
4 szoba
145 m²