River Life

Eladó ikerház
Vácrátót

+ 4 kép 1/7
96 500 000 Ft96.5 M Ft 1 191 358 Ft/m2
4 szoba
81 m2
építés éve:2025

Részletes adatok

Telekméret: 381 m2
Fűtés: Egyéb
Energetikai besorolás: A+

Az OTP Bank lakáshitel ajánlataFizetett hirdetés

+36 20 220
Szabó Sándor
referens

Érdekel az OTP Bank kedvezményes lakáshitel ajánlata? *

* A kérdésre „Igen” válasz bejelölése esetén, az „Üzenet küldése” gombra kattintva kijelentem, hogy az OTP Bank Nyrt. Adatkezelési tájékoztatójának tartalmát megismertem és tudomásul vettem.

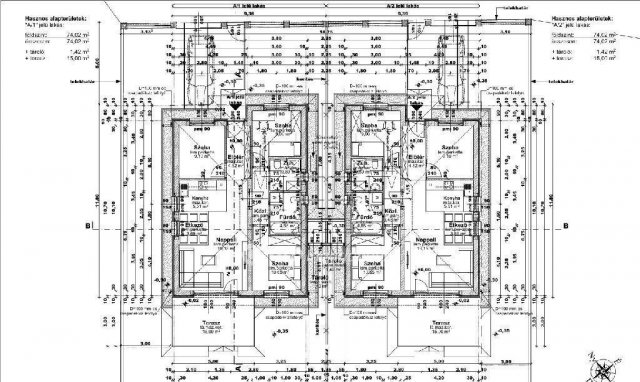
Eladó ikerház leírása

ELADÓ ÚJ ÉPÍTÉSŰ FÖLDSZINTES CSALÁDI HÁZ A SZENT ISTVÁN LAKÓPARKBAN!
Vácrátót egyik legfelkapottabb részén, a Szent István-LAKÓPARKBAN várja Önt ez az új építésű családi ház.

Az ingatlan amerikai konyhás nappaliból, 3 hálószobából és 2 fürdőszobából áll!
A nappalihoz terasz kapcsolódik.
AZ IKERFELEK CSAK TÁROLÓKKAL KAPCSOLÓDNAK, nincs közös fal a szomszéddal, nincs áthallás!

A műszaki tartalom:

Porotherm 30 külső falazat, 12 cm grafitos dryvit szigetelés.
Fehér színű műanyag ablakok 3 rétegű hőszigetelt üvegezéssel.
Vasbetonfödém 25 cm ásványgyapot szigeteléssel, betoncserép fedés.
Riasztó előkészítés, klíma kiállás.
H tarifás mérőóra.
Az otthon melegéről hőszivattyú gondoskodik, padlófűtéssel, ami kényelmes és energiatakarékos megoldás.
A gépkocsi tárolása az udvarban, térkövezett beállón lehetséges.
Utcafronti és telkeket elválasztó kerítés is épül.
Burkolatok, szaniterek, belső ajtók még választhatóak.

Céges építkezés.
Jelenleg aktuális állami támogatások, kamattámogatott hitelek igénybe vehetőek.
CSOK+ és Otthon Start hitel és Babaváró ügyintézésben díjmentes segítséget nyújtunk.

Referenciákkal rendelkező, megbízható építtetőtől.
Átadás 2026. I. negyedév.

Vácrátót a Budapesti Agglomeráció területén, a Gödöllői-dombság peremén fekvő település, Vác és Veresegyház között, igazán szép természeti környezetben.
Az ide látogatókat rendezett, tiszta utcák, közterületek, felújított középületek, műemlék épületek, valamint a méltán híres Nemzeti Botanikus Kert fogadja.
A rohamosan fejlődő Szent István lakópark Vácrátót új parcellázású része, a település szélén, természetvédelmi terület mellett helyezkedik el, szép panorámával rendelkezik.
Iskola, óvoda, bolt, buszmegálló gyalogosan 10 perc alatt elérhető.

Keressen bizalommal, akár hétvégén is!
Érd.: Szabó Sándor +3620-220 4440

Referencia szám: M313970-ZE

Hirdetés feltöltve: 2025. 12. 13. Utoljára módosítva: 2026. 01. 12.

4 szobás ikerházak ára Vácrátóton

Ebből az összehasonlításból megtudhatod, hogyan viszonyul a lakás ára a környékbeli ikerházak átlagos árához. Ez nem azt jelenti, hogy ennyivel olcsóbb vagy drágább, mint amennyit a lakás ér, hanem hogy ennyivel tér el a környékbeli átlagtól.

Ennek a m² ára
Vácrátót m² ár
1191 e Ft
1085 e Ft -10%
Ennek az ára
Vácrátót átlagár
96.5 M Ft m Ft
95.2 m Ft -1%

Az ingatlan elhelyezkedése

Cím: Vácrátót

Eladó ikerházak a környékről

Eladó ikerház
Eladó ikerház

Vácrátót

96 M Ft
4 szoba
77 m2
Eladó ikerház
Eladó ikerház

Szentendre, Szentendre

398 M Ft
5 szoba
267 m2
Eladó ikerház
Eladó ikerház

Vácrátót

99.9 M Ft
4 szoba
112 m2
Eladó ikerház
Eladó ikerház

Üröm

220 M Ft
4 szoba
130 m2
Eladó ikerház
Eladó ikerház

Vácrátót

74.5 M Ft
4 szoba
85 m2
Eladó ikerház
Eladó ikerház

Vác

96.5 M Ft
4 + 1 szoba
129 m2
Eladó ikerház
Eladó ikerház

Vácrátót

94.9 M Ft
5 szoba
109 m2
Eladó ikerház
Eladó ikerház

Vác

94.5 M Ft
4 + 1 szoba
126 m2
Eladó ikerház
Eladó ikerház

Szentendre

359 M Ft
5 + 1 szoba
289 m2
Eladó ikerház
Eladó ikerház

Vácrátót

96 M Ft
4 szoba
77 m2
Eladó ikerház
Eladó ikerház

Vácrátót

94.9 M Ft
4 szoba
108 m2
Eladó ikerház
Eladó ikerház

Vácrátót

85.5 M Ft
4 szoba
90 m2
Eladó ikerház
Eladó ikerház

Vácrátót

85 M Ft
2 + 2 szoba
96 m2
Eladó ikerház
Eladó ikerház

Pécel, Pécel - kertváros

127 M Ft
4 szoba
125 m2
Eladó ikerház
Eladó ikerház

Vácrátót

99.9 M Ft
5 szoba
112 m2
Eladó ikerház
Eladó ikerház

Vácrátót

85.9 M Ft
4 szoba
85 m2
Eladó ikerház
Eladó ikerház

Veresegyház

145 M Ft
4 szoba
120 m2
Eladó ikerház
Eladó ikerház

Diósd

213.46 M Ft
5 szoba
186 m2
Eladó ikerház
Eladó ikerház

Vácrátót

94.9 M Ft
4 szoba
108 m2
Eladó ikerház
Eladó ikerház

Vácrátót

94.9 M Ft
2 + 3 szoba
108 m2
Eladó ikerház
Eladó ikerház

Vácrátót

99.8 M Ft
4 szoba
95 m2
Eladó ikerház
Eladó ikerház

Vácrátót

86.5 M Ft
4 szoba
87 m2
Eladó ikerház
Eladó ikerház

Mogyoród

129 M Ft
5 szoba
123 m2
Eladó ikerház
Eladó ikerház

Mogyoród

135 M Ft
5 szoba
137 m2

Falusi CSOK ingatlanok

Eladó családi ház
Eladó családi ház

Magyarszombatfa

80 M Ft
3 szoba
90 m2
Eladó családi ház
Eladó családi ház

Pánd

31.5 M Ft
4 szoba
74 m2
Eladó családi ház
Eladó családi ház

Szigetcsép

47 M Ft
3 szoba
87 m2
Eladó családi ház
Eladó családi ház

Újszilvás

23 M Ft
3 + 1 szoba
100 m2
Eladó családi ház
Eladó családi ház

Szentliszló

29.9 M Ft
3 + 2 szoba
157 m2
Eladó családi ház
Eladó családi ház

Szabolcs

64.9 M Ft
6 szoba
272 m2
Eladó családi ház
Eladó családi ház

Sellye

48.2 M Ft
4 szoba
99 m2
Eladó családi ház
Eladó családi ház

Tápiógyörgye

44.9 M Ft
3 + 1 szoba
120 m2