Metrodom

Eladó ikerház
Törökbálint

+ 1 kép 1/4
148 000 000 Ft148 M Ft 1 409 524 Ft/m2
5 szoba
105 m²
építés éve:2026

Részletes adatok

Telekméret: 591 m2
Fűtés: Egyéb
Közmű: Gáz, Villany, Csatorna
Energetikai besorolás: Nem adta meg a hirdető
Zenga Premier

Friss hirdetések, amiket nem találsz meg más ingatlankereső portálon.

Fedezd fel elsőként a Zenga Premier címkés eladó ingatlanokat!

További részletek a zenga.hu-n

Az OTP Bank lakáshitel ajánlataFizetett hirdetés

+36 70 467
Juhász Gyula
referens

Érdekel az OTP Bank kedvezményes lakáshitel ajánlata? *

* A kérdésre „Igen” válasz bejelölése esetén, az „Üzenet küldése” gombra kattintva kijelentem, hogy az OTP Bank Nyrt. Adatkezelési tájékoztatójának tartalmát megismertem és tudomásul vettem.

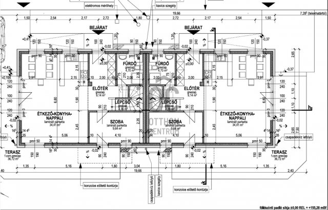
Eladó ikerház leírása

Törökbálint népszerű részén, a közkedvelt Újtelepen épülő ikerházat kínálunk nyugalomra és biztonságra vágyó családoknak, pároknak.

Ez az új építésű ikerház egy igazán különleges lehetőséget kínál fiatal felnőttek számára, akik szeretnék élvezni a városi élet előnyeit, miközben a csendes környezetet is értékelik.
Az ingatlan alapterülete 100 nm, amely 4 lakó szobát, egy tágas amerikai konyhás nappalit és két fürdőszobát foglal magában, ideális választás a családok, közös fészket építő párok számára. A ház amerikai konyhás nappalija az ingatlan szíve, amelyhez kertkapcsolatos terasz is csatlakozik. A 36 nm-es terasz lehetőséget ad arra, hogy a szabadban töltsön időt, akár egy kis kertészkedéssel. A környék ellátottsága kiváló, hiszen a közeli bevásárlóközpontok, iskolák és egészségügyi intézmények mindössze pár percnyi távolságra találhatók. A közlekedés is kitűnő, hiszen az Etele téri csomópont könnyen megközelíthető autóval és tömegközlekedéssel egyaránt. A csendes utcák és a biztonságos környezet ideális helyszínt biztosítanak a kisgyermekes családok számára, akik a város zajától távolabb, de annak könnyű elérhetőséget biztosító közelségében szeretnének élni.
A ház hibrid hőszivattyús fűtése és klímás hűtése garantálja a kellemes hőmérsékletet az év minden szakában. A 15 cm-es grafitos hőszigetelés és a speciális, 3 rétegű nyílászárók a modern fűtési-hűtési rendszerrel együtt biztosítják a rendkívül kedvező rezsiköltségeket.
Ez a felkapott környék nemcsak a fiatalok, hanem a befektetők számára is vonzó, hiszen a folyamatosan növekvő kereslet és a fejlődő infrastruktúra biztosítja az ingatlan értékének megőrzését és növekedését.
Természetesen biztosítjuk az alapterveket tartalmazó műszaki ismertetőeket, de nagyon fontos információ, hogy a szerződéskötés előtt, 20% foglaló fizetése mellett minden további kivitelezési igény egyeztethető és megvalósítható. A kivitelező készséggel áll rendelkezésre a tervek véglegesítésében.

Fedezze fel a Csok Plusz program és az Otthon Centrum egyedi piaci kamatozású hiteleinek páratlan lehetőségeit!
Teljes körű hitel és jogi tanácsadással és lebonyolítással állunk ügyfeleink rendelkezésére.
Csak mutasson rá az ingatlanra, a többit intézzük!

Minden további kérdésben állok rendelkezésre telefonon (a szám sms-t nem fogad), email-en és természetesen személyesen!

Hirdetés feltöltve: 2026. 04. 16. Utoljára módosítva: 2026. 04. 18.

5 szobás ikerházak ára Törökbálinton

Ebből az összehasonlításból megtudhatod, hogyan viszonyul a lakás ára a környékbeli ikerházak átlagos árához. Ez nem azt jelenti, hogy ennyivel olcsóbb vagy drágább, mint amennyit a lakás ér, hanem hogy ennyivel tér el a környékbeli átlagtól.

Ennek a m² ára
Törökbálint m² ár
1410 e Ft
1577 e Ft 11%
Ennek az ára
Törökbálint átlagár
148 M Ft m Ft
308.1 m Ft 52%

Az ingatlan elhelyezkedése

Cím: Törökbálint

Eladó ikerházak a környékről

Törökbálint, Nádasdy köz
Eladó ikerház

Törökbálint

339 M Ft
5 szoba
175 m²
Törökbálint
Eladó ikerház

Törökbálint

325 M Ft
5 szoba
150 m²
Törökbálint
Eladó ikerház

Törökbálint

171.5 M Ft
5 szoba
148 m²
Törökbálint
Eladó ikerház

Törökbálint

242.7 M Ft
5 szoba
182 m²
Vácrátót
Eladó ikerház

Vácrátót

94.9 M Ft
2 + 3 szoba
108 m²
Törökbálint
Eladó ikerház

Törökbálint

173.5 M Ft
4 szoba
148 m²
Budakalász
Eladó ikerház

Budakalász

195 M Ft
5 + 2 szoba
170 m²
Törökbálint
Eladó ikerház

Törökbálint

239.9 M Ft
5 szoba
175 m²
Törökbálint
Eladó ikerház

Törökbálint

380 M Ft
4 szoba
246 m²
Herceghalom
Eladó ikerház

Herceghalom

99 M Ft
4 szoba
106 m²
Törökbálint
Eladó ikerház

Törökbálint

199.8 M Ft
4 + 1 szoba
142 m²
Szentendre
Eladó ikerház

Szentendre

179 M Ft
5 + 1 szoba
147 m²
Diósd
Eladó ikerház

Diósd

206.25 M Ft
5 szoba
184 m²
Mogyoród
Eladó ikerház

Mogyoród

135 M Ft
5 szoba
137 m²
Törökbálint
Eladó ikerház

Törökbálint

173.5 M Ft
4 szoba
148 m²
Törökbálint
Eladó ikerház

Törökbálint

173.5 M Ft
4 szoba
148 m²
Törökbálint
Eladó ikerház

Törökbálint

760 M Ft
8 szoba
452 m²
Törökbálint
Eladó ikerház

Törökbálint

239.9 M Ft
5 szoba
157 m²
Dunakeszi
Eladó ikerház

Dunakeszi

178 M Ft
6 szoba
140 m²
Törökbálint
Eladó ikerház

Törökbálint

380 M Ft
4 szoba
226 m²
Vácrátót
Eladó ikerház

Vácrátót

99.9 M Ft
3 + 2 szoba
112 m²
Szentendre
Eladó ikerház

Szentendre

718 M Ft
10 + 2 szoba
578 m²
Mogyoród
Eladó ikerház

Mogyoród

129 M Ft
5 szoba
123 m²
Érd
Eladó ikerház

Érd

177.7 M Ft
7 szoba
181 m²

Falusi CSOK ingatlanok

Balatonszemes
Eladó téglalakás

Balatonszemes

119.9 M Ft
2 szoba
81 m²
Balatonőszöd
Eladó téglalakás

Balatonőszöd

167 M Ft
4 szoba
81 m²
Belezna
Eladó családi ház

Belezna

9.5 M Ft
2 szoba
86 m²
Mikepércs
Eladó családi ház

Mikepércs

89.5 M Ft
4 szoba
103 m²
Sárosd
Eladó családi ház

Sárosd

21.9 M Ft
3 szoba
86 m²
Szarvaskő, Rózsa utca
Eladó családi ház

Szarvaskő

54.9 M Ft
1 + 3 szoba
140 m²
Újlengyel
Eladó családi ház

Újlengyel

110 M Ft
4 szoba
121 m²
Recsk
Eladó családi ház

Recsk

40 M Ft
3 + 1 szoba
110 m²