Eladó ikerház
Százhalombatta 
Részletes adatok
Az OTP Bank lakáshitel ajánlataFizetett hirdetés
Induló törlesztőrészlet
101 262 Ft /hóTörlesztőrészlet a 13. hónaptól
129 106 Ft /hóInduló törlesztőrészlet
135 016 Ft /hóTörlesztőrészlet a 13. hónaptól
172 142 Ft /hóA tájékoztatás nem teljes körű és nem minősül ajánlattételnek. Az OTP Évnyerő Lakáshitelei 1 éves türelmi idős kölcsönök, amellyel az első 12 hónapban alacsonyabb a havi törlesztőrészlet. A tőke törlesztését a 13. hónaptól kell megkezdeni.
Eladó ikerház leírása
Hivatkozzon erre, kód: 5057KE
- ÚJ ÉPÍTÉSŰ IKERHÁZI LAKÁS
- ÖNÁLLÓ HRSZ
- HŐSZIVATTYÚ PADLÓFŰTÉSSEL
- NAPPALI + 2 SZOBA, TERASZ, UDVARI BEÁLLÓ
- MEGBÍZHATÓ BERUHÁZÓ, SZÁMOS REFERENCIA
Százhalombatta Óváros részén csendes, családi házas övezetben kb. 400m2 saját kerttel rendelkező nappali + 2 szobás, összesen 76m2-es (terasz felével), új építésű ikerházi lakás (3-as épület) leköthető igény szerinti befejezéssel.
Várható átadás: 2026. ősz.
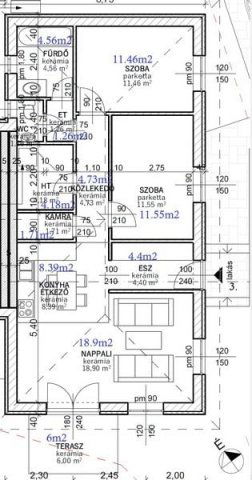
A lakás felosztása a következőképpen alakul (nettó 72.4m2 + 6m2 terasz + kb. 400m2 saját kert): előszoba (4,40m2), konyha (8,39m2), nappali-étkező (18,9m2), kamra (1,71m2),wc (1,26m2), fürdő (4,56m2), háztartási helyiség (4,18m2), közlekedő (4,73m2, 1,26m2), 2 szoba (11,55m2, 11,46m2), terasz (6m2).
Rövid műszaki ismertető: beton alap. Porotherm 30 okostégla főfalak, 15cm-es szigeteléssel. Ytong válaszfalak. Fa födém, 25cm-es fújt cellulóz szigeteléssel. A tető betoncserép fedésű, antracit színben. A nyílászárók műanyag szerkezetűek 3 rétegű szigetelt üvegezéssel, rejtett redőnytok beépítéssel.
A belső ajtók 50.000,-Ft/db áron, míg a hideg és meleg burkolatok 4.000,-Ft/m2 áron vevő által választhatóak.
Fűtés és meleg víz ellátás: Panasonic (5 kW) hőszivattyús rendszer látja el, minden helyiségben padlófűtéssel, 200 literes puffer tartállyal.
Parkolás: murvázott udvari beálló áll rendelkezésre.
Megközelíthetőség és infrastruktúra jó! Buszmegálló, óvoda, iskola, bevásárlási lehetőség, strand hamar elérhető!
További hasonló ingatlanok találhatók még a kínálatunkban!
Szüksége van hitelre? SEGÍTÜNK!
Bankfüggetlen hitel tanácsadónk díjmentesen áll az Ön rendelkezésére! Keressen bizalommal!
A hirdetésben szereplő adatok, információk, képek, alaprajzok stb... tájékoztató jellegűek! Irodánk az esetleges elírásokért felelősséget nem tud vállalni! 
Tájékoztatjuk a Tisztelt Érdeklődőket, hogy az ingatlan hirdetésében szereplő telefonszám felhívásával Önök hozzájárulnak személyes adataik (név, telefonszám), a hirdetést feladó -Otthonplusz.hu Kft. - által a bizalmas kezeléshez és nyilvántartáshoz.
Hirdetés feltöltve: 2025. 10. 29. Utoljára módosítva: 2025. 10. 30.
3 szobás ikerházak ára Százhalombattán
Ebből az összehasonlításból megtudhatod, hogyan viszonyul a lakás ára a környékbeli ikerházak átlagos árához. Ez nem azt jelenti, hogy ennyivel olcsóbb vagy drágább, mint amennyit a lakás ér, hanem hogy ennyivel tér el a környékbeli átlagtól.
Az ingatlan elhelyezkedése
Cím: Százhalombatta
 
 
 
 
 
 
 
 
 
 
 
 
 
 
 
 
 
 
 
 
 
 
 
 
 
 
 
 
 
 
 
 
 
 
