Oasis Residence

Eladó ikerház
Százhalombatta

+ 3 kép 1/6
80 000 000 Ft80 M Ft 879 121 Ft/m2
1 + 2 szoba
91 m2
építés éve:2025

Részletes adatok

Telekméret: 400 m2
Fűtés: Egyéb
Parkolás: Kocsibeálló
Energetikai besorolás: Nem adta meg a hirdető

Az OTP Bank lakáshitel ajánlataFizetett hirdetés

+36 20 975
Fodor Ágnes
referens

Érdekel az OTP Bank kedvezményes lakáshitel ajánlata? *

* A kérdésre „Igen” válasz bejelölése esetén, az „Üzenet küldése” gombra kattintva kijelentem, hogy az OTP Bank Nyrt. Adatkezelési tájékoztatójának tartalmát megismertem és tudomásul vettem.

Eladó ikerház leírása

Százhalombatta családi házas övezetében, az Óvárosban kínálunk megvételre két lakóegységből álló ikerházat.

A kivitelező cég számos százhalombattai referenciamunkával rendelkezik, aki több éve megbízhatóan, pontos határidőkkel végzi a kivitelezést ügyfelei legnagyobb megelégedésére.

Az építkezés folyamatosan halad, várható befejezés 2026 ősz.

Az ikerházi lakások társasházi alapító okirattal, külön helyrajzi számmal (albetétesítve) és külön mérőórákkal, saját kertrésszel, megosztással kerülnek átadásra a leendő tulajdonosok részére.

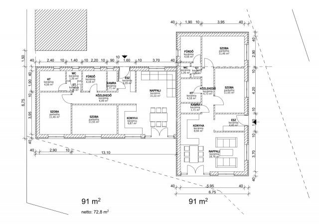
1.lakás: bruttó 91 nm, nettó 72,8 nm + 6 nm terasz
telekterület: 400 nm
szobaszám: 1+2
KÜLÖNÁLLÓ, SAJÁT GARÁZS a telekrészen belül!

2.lakás: ELKELT! bruttó 91 nm, nettó 72,8 nm + 6 nm terasz
telekterület: 400 nm
szobaszám: 1+2

Az ár a befejezett, KULCSRAKÉSZ állapotra vonatkozik!

Főbb műszaki paraméterek:
- alap: vasalt, szigetelt beton sávalap
- tartófalazat: 30-as Porotherm XTherm okostégla
- válaszfalak: 10-es Ytong
- szigetelés: homlokzat 15 cm dryvit, lábazat 10-cm xps
- födém: a szerkezetű, 25 cm fújt cellulóz szigeteléssel
- fűtés: Panasonic hőszivattyú (5kW), padlófűtés hőleadással
- melegvíz: hőszivattyúra kötött 200 literes HMV tartály
- nyílászárók: fehér, három rétegű hő-és hangszigetelt, beépített redőnytokkal

A belső ajtók 50.000 Ft/db, a hideg-és meleg burkolatok 4.000 Ft/nm áron a vevő által szabadon választhatóak.

Az érdeklődők részére teljes műszaki és fotódokumentáció rendelkezésre áll, valamint már elkészült referencia házak is megtekinthetőek.

OtthonSart, CSOK Plusz és piaci hitel igénybe vehető, melyben ingatlanirodánk BANKFÜGGETLEN hitelcentruma, DÍJMENTESEN áll érdeklődőink rendelkezésére.

- Egyedi, bankfiókban nem elérhető kamat- és díjkedvezmények
- Hitelképesség vizsgálat
- Idő, energia és pénz megtakarítás
- Teljes hivatali ügyintézés

Ne maradjon le róla!

További információkért és megtekintéssel kapcsolatban várom jelentkezését a hét minden napján.

A hirdetésben szereplő adatok tájékoztató jellegűek, nem minősülnek ajánlattételnek. ...TOVÁBBI, TÖBBEZRES INGATLAN KÍNÁLAT: www.gdn-ingatlan.hu - GDN azonosító: 389873

Hirdetés feltöltve: 2025. 11. 25. Utoljára módosítva: 2025. 12. 19.

3 szobás ikerházak ára Százhalombattán

Ebből az összehasonlításból megtudhatod, hogyan viszonyul a lakás ára a környékbeli ikerházak átlagos árához. Ez nem azt jelenti, hogy ennyivel olcsóbb vagy drágább, mint amennyit a lakás ér, hanem hogy ennyivel tér el a környékbeli átlagtól.

Ennek a m² ára
Százhalombatta m² ár
879 e Ft
935 e Ft 6%
Ennek az ára
Százhalombatta átlagár
80 M Ft m Ft
66.6 m Ft -20%

Az ingatlan elhelyezkedése

Cím: Százhalombatta

Eladó ingatlanok a környékről

Eladó családi ház
Eladó családi ház

Kiskunlacháza

85 M Ft
5 szoba
245 m2
Eladó ikerház
Eladó ikerház

Vác

96.5 M Ft
4 + 1 szoba
129 m2
Eladó ikerház
Eladó ikerház

Szentendre

359 M Ft
5 + 1 szoba
289 m2
Eladó ikerház
Eladó ikerház

Diósd

206.25 M Ft
5 szoba
184 m2
Eladó üzlethelyiség
Eladó üzlethelyiség

Szigetszentmiklós

62.9 M Ft
110 m2
Eladó ikerház
Eladó ikerház

Érd, Érdligeten található utca

64.9 M Ft
4 szoba
112 m2
Eladó ikerház
Eladó ikerház

Veresegyház

145 M Ft
4 szoba
120 m2
Eladó ikerház
Eladó ikerház

Mogyoród

135 M Ft
5 szoba
137 m2
Eladó családi ház
Eladó családi ház

Tápiószecső

69.9 M Ft
7 szoba
354 m2
Eladó ikerház
Eladó ikerház

Szentendre

179 M Ft
5 + 1 szoba
147 m2
Eladó ikerház
Eladó ikerház

Pécel, Pécel - kertváros

127 M Ft
4 szoba
125 m2
Eladó ikerház
Eladó ikerház

Vác

94.5 M Ft
4 + 1 szoba
126 m2
Eladó ikerház
Eladó ikerház

Pomáz

129.5 M Ft
4 szoba
100 m2
Eladó üzlethelyiség
Eladó üzlethelyiség

Tököl

72 M Ft
84 m2
Eladó családi ház
Eladó családi ház

Zsámbék

95 M Ft
4 szoba
282 m2
Eladó ikerház
Eladó ikerház

Halásztelek

110 M Ft
5 szoba
120 m2
Eladó ikerház
Eladó ikerház

Pilisjászfalu

70.563 M Ft
4 szoba
61 m2
Eladó ikerház
Eladó ikerház

Százhalombatta, Ősz utca

105.7 M Ft
4 szoba
100 m2
Eladó ikerház
Eladó ikerház

Diósd

213.46 M Ft
5 szoba
186 m2
Eladó ikerház
Eladó ikerház

Százhalombatta, Barátság utca

139 M Ft
5 szoba
95 m2
Eladó ikerház
Eladó ikerház

Mogyoród, Fóti út

188 M Ft
6 szoba
182 m2
Eladó ikerház
Eladó ikerház

Százhalombatta

139 M Ft
5 szoba
95 m2
Eladó ikerház
Eladó ikerház

Szentendre

359 M Ft
5 szoba
289 m2
Eladó ikerház
Eladó ikerház

Százhalombatta

80 M Ft
3 szoba
73 m2

Falusi CSOK ingatlanok

Eladó családi ház
Eladó családi ház

Sellye

54.99 M Ft
4 szoba
99 m2
Eladó családi ház
Eladó családi ház

Halimba

59.9 M Ft
6 szoba
182 m2
Eladó családi ház
Eladó családi ház

Berkesd

39.5 M Ft
5 szoba
175 m2
Eladó családi ház
Eladó családi ház

Kamut

29 M Ft
3 szoba
100 m2
Eladó családi ház
Eladó családi ház

Elek

18 M Ft
4 szoba
180 m2
Eladó családi ház
Eladó családi ház

Szentliszló

29.9 M Ft
3 + 2 szoba
157 m2
Eladó családi ház
Eladó családi ház

Gógánfa

22.99 M Ft
3 szoba
93 m2
Eladó családi ház
Eladó családi ház

Balatonfenyves

430 M Ft
4 szoba
274 m2