NapForrás 20 - Buda

Eladó ikerház

+ 7 kép 1/10
79 100 000 Ft79.1 M Ft 581 618 Ft/m2
4 szoba
136 m2
építés éve:2026

Részletes adatok

Telekméret: 420 m2
Fűtés: Egyéb
Parkolás: Garázs
Energetikai besorolás: Nem adta meg a hirdető

Az OTP Bank lakáshitel ajánlataFizetett hirdetés

3694814122
Volner Szilveszter
referens

Érdekel az OTP Bank kedvezményes lakáshitel ajánlata? *

* A kérdésre „Igen” válasz bejelölése esetén, az „Üzenet küldése” gombra kattintva kijelentem, hogy az OTP Bank Nyrt. Adatkezelési tájékoztatójának tartalmát megismertem és tudomásul vettem.

Eladó ikerház leírása

Szombathely közvetlen közelében, Sében újépítésű, ikerházi lakóingatlan várja új tulajdonosát!

Az ikerházak nem közvetlenül érintkeznek egymással, mivel garázzsal/fedett autóbeállóval vannak összekötve, így nincs közvetlen falszomszédság, így teljesen egy önálló ház érzetét kelti.

Akár a 2025 Szeptembertől 3 %-os fix kamatozású Otthon Start program igénybevételével!

Várhatóan 2026. év végi átadással!

Igény esetén van lehetőség belső áttervezésre!

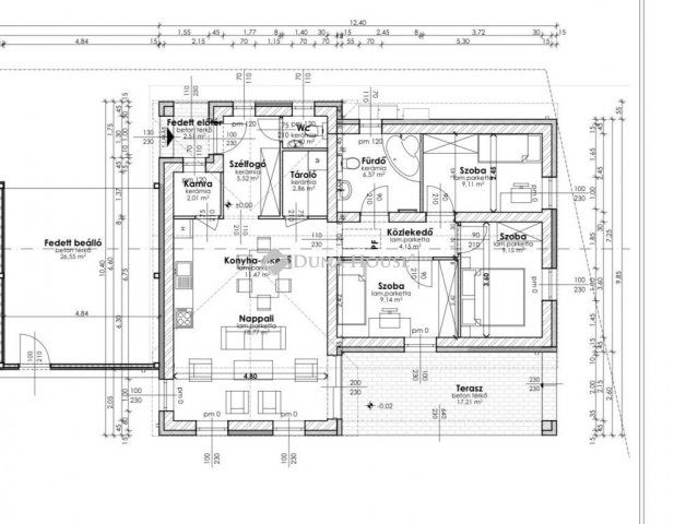
1. sz. ingatlan NAPPALI + 3 SZOBÁS IKERHÁZFÉL , nettó 80 nm alapterülettel + 17,21 nm terasszal, fedett autóbeállóval (26,55 nm) és 420 nm saját telekhányaddal.

Ár: 79 100 000,- Ft

2. sz. ingatlan NAPPALI + 3 SZOBÁS IKERHÁZFÉL , nettó 138 nm alapterületű + garázzsal. ( ELKELT)

Az ár kulcsrakészen, telek árral együtt értendő!

A tervezés során fontos szempont a beépített anyagok magas minősége, a költséghatékony fenntartás és az épületek értékállósága.

A projekt főbb jellemzői:

- Igényes külső megjelenés

- Praktikus alaprajzokkal/, de igény szerint a belső elrendezés is még módosítható

- Napfényes, jó tájolású házak

- Választható belső burkolatok, szaniterek, ajtók

Főbb műszaki paraméterek:

- Teherhordó falak: 30 N+F

- Válaszfal: 8 cm vastagságú gipszfal (albafal)

TETŐ:

- tetőszerkezet fenyőből, favédelemmel ellátva

- Terrán beton cserépfedés (renova plus)

- 30 cm vastag szigetelés

ÉPÜLETGÉPÉSZET:

- GREE Versati III osztott levegő-víz 10 kW hőszivattyú

- padlófűtés

- fürdőszoba törölközőszárító radiátor

KÜLSŐ NYÍLÁSZÁRÓK:

- fehér színű műanyag nyílászáró 5 kamrás profilból, 3 rétegű üvegezéssel

- bejárati ajtó fehér színben, több pontos biztonsági zárral

HOMLOKZAT:

- 15 cm vastagságú EPS polisztirol hőszigetelés

- lábazatra 12 cm vastag szigetelés kerül

TERASZ:

- 20 cm vastag kavics ágyazaton, 10 cm vastag CKT beton, rajta leier piazza térburkolat

Családi Otthonteremtési Kedvezmény + Hitel igényelhető!

Az ár kulcsrakészen, telek árral együtt értendő!

Naprakész információk a Duna House irodákban!

Helyszínrajz, műszaki leírás, alaprajzok, lakás felszereltség, pontos tájékoztatás Nálunk!

További információkért, fotókért és a megtekintés miatt kérem, hívjon vagy küldjön e-mailt!
És ne feledje, vevőinknek minden szolgáltatásunk INGYENES!
Érd.: Volner Szilveszter
Tel.:+36 30 633 5085

Referencia szám: PR054671/HZ/26575-ZE

Hirdetés feltöltve: 2025. 12. 04. Utoljára módosítva: 2026. 01. 13.

Az ingatlan elhelyezkedése

Cím:

Eladó ingatlanok a környékről

Eladó családi ház
Eladó családi ház

Nagysimonyi

53.9 M Ft
4 szoba
133 m2
Eladó nyaraló
Eladó nyaraló

Celldömölk

24.99 M Ft
2 szoba
53 m2
Eladó ikerház
Eladó ikerház

Szombathely

99 M Ft
4 szoba
82 m2
Eladó mezogazdasagi ingatlan
Eladó mezogazdasagi ingatlan

Mesteri

2.5 M Ft
1321 m²
40 m2
Eladó ikerház
Eladó ikerház

Szombathely

67.9 M Ft
1 + 2 szoba
67 m2
Eladó ikerház
Eladó ikerház

Szombathely

99 M Ft
4 szoba
82 m2
Eladó családi ház
Eladó családi ház

Gencsapáti

51 M Ft
3 szoba
105 m2
Eladó ikerház
Eladó ikerház

Szombathely

159 M Ft
5 szoba
180 m2
Eladó mezogazdasagi ingatlan
Eladó mezogazdasagi ingatlan

Celldömölk

11.5 M Ft
2334 m²
30 m2
Eladó panellakás
Eladó panellakás

Szombathely

46.9 M Ft
1 + 2 szoba
66 m2
Eladó mezogazdasagi ingatlan
Eladó mezogazdasagi ingatlan

Celldömölk

12.9 M Ft
856 m²
43 m2
Eladó családi ház
Eladó családi ház

Jánosháza

39.99 M Ft
3 szoba
110 m2
Eladó családi ház
Eladó családi ház

Nemeskeresztúr

23 M Ft
3 szoba
81 m2
Eladó családi ház
Eladó családi ház

Nemeskocs

24.99 M Ft
2 szoba
75 m2
Eladó ikerház
Eladó ikerház

Szombathely

92 M Ft
3 szoba
91 m2
Eladó családi ház
Eladó családi ház

Celldömölk

19.99 M Ft
1 szoba
40 m2
Eladó családi ház
Eladó családi ház

Szombathely

99 M Ft
4 szoba
123 m2
Eladó hotel
Eladó hotel

Celldömölk

270 M Ft
6 szoba
670 m2
Eladó ikerház
Eladó ikerház

Vasvár

70 M Ft
4 + 1 szoba
160 m2
Eladó ikerház
Eladó ikerház

79.1 M Ft
4 szoba
136 m2
Eladó ikerház
Eladó ikerház

Kőszeg

88.88 M Ft
3 szoba
107 m2
Eladó családi ház
Eladó családi ház

Szombathely

149.9 M Ft
5 + 2 szoba
154 m2
Eladó ikerház
Eladó ikerház

Borgáta

20 M Ft
5 szoba
100 m2
Eladó ikerház
Eladó ikerház

79.1 M Ft
4 szoba
92 m2

Falusi CSOK ingatlanok

Eladó családi ház
Eladó családi ház

Magyarszék

48.5 M Ft
3 + 1 szoba
86 m2
Eladó családi ház
Eladó családi ház

Úri, Fő utca

99 M Ft
6 szoba
150 m2
Eladó családi ház
Eladó családi ház

Recsk

24.5 M Ft
2 szoba
100 m2
Eladó családi ház
Eladó családi ház

Szakmár

12.9 M Ft
3 + 1 szoba
90 m2
Eladó családi ház
Eladó családi ház

Kislippó

16 M Ft
3 szoba
100 m2
Eladó családi ház
Eladó családi ház

Mátraderecske

14 M Ft
1 + 1 szoba
47 m2
Eladó családi ház
Eladó családi ház

Somogyhárságy

188.65 M Ft
5 szoba
250 m2
Eladó családi ház
Eladó családi ház

Kunadacs

114.9 M Ft
4 szoba
174 m2