Avico Greentop

Eladó ikerház
Monor

+ 3 kép 1/6
80 000 000 Ft80 M Ft 1 052 632 Ft/m2
4 szoba
76 m²
építés éve:2026

Részletes adatok

Telekméret: 282 m2
Fűtés: Egyéb
Energetikai besorolás: A

Az OTP Bank lakáshitel ajánlataFizetett hirdetés

+36 1 690
Molnár Nikoletta
Duna House Kispest

Érdekel az OTP Bank kedvezményes lakáshitel ajánlata? *

* A kérdésre „Igen” válasz bejelölése esetén, az „Üzenet küldése” gombra kattintva kijelentem, hogy az OTP Bank Nyrt. Adatkezelési tájékoztatójának tartalmát megismertem és tudomásul vettem.

Eladó ikerház leírása

Monoron eladó, újépítésű, 3 szoba + nappalis, tároló kapcsolatos ikerházfél, hőszivattyús fűtéssel, kb 300 nm-es kerttel!

Belső nettó hasznos élhető tér 76 nm!Várható átadás : 2026.10 hó

Önálló helyrajzi számmal fog rendelkezni, nem osztatlan közös tulajdon, társasház alapító lesz.10 % önerővel szerződhető!

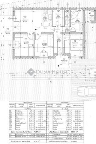
Helyiségeit tekintve nagyon jó elosztással rendelkezik, alábbiakban sorolom fel négyzetméterek megjelölésével:- 3 önálló bejáratú szoba (10.15 nm, 10.98 nm, 10.98 nm)- teraszkapcsolatos nappali + konyha és étkező (21.97 nm)- előszoba (5.11 nm)- közlekedő (3.32 nm)- fürdőszoba (7.08 nm)- wc (1.44 nm)- háztartási helyiség (5 nm)- kerti tároló, itt ér össze a két épület (2.81 nm)- nyitott terasz (10 nm)Műszaki leírás:- Fischer hőszivattyús fűtés, padlófűtéssel- burkolat meleg 8000 Ft / nm, hideg: 10 000 ft / nm- 10 cm hőszigetelés grafitos- 30 cm üveggyapot tető hőszigetelés- vakolás: belső: alapvakolat + simítóvakolat- lábazaton 8 cm XPS hőszigetelés- nyílászárók: típus műanyag szerkezetek, fehér színben, 3 rtg.hőszig.üveggel- festés: belsőben páraáteresztő falfestékkel, színezve igény szerint- elektromos nagykapu- utcafronton épített, igényes kerítés- H tarifa

Az ár kulcsrakészen értendő!A házakat önerőből építi! Az építő cég anyagilag biztos talpakon áll!Monoron megtalálható:Pékség, Cukrászda, Gyógyszertár, Posta, Vendéglő, Könyvtár, Zöldséges, Rossmann, Dm, Élelmiszer boltok, Okmányiroda, Bankok(Takarék,Otp, Budapest Bank), Piac, Bölcsöde, Óvoda, Iskola, Gimnázium,Uszoda, Elektromos autó töltő.

Monor a dél-kelet pesti agglomerációban, a dinamikusan fejlődő főváros és vonzáskörzete, a jó minőségű lakókörnyezetet egyre színvonalasabb közszolgáltatásokkal is biztosító, egyúttal a befektetők számára is vonzó település.Monor olyan város, ahol jó élni, ahol jó befektetni.Kiváló közlekedésének köszönhetően az ország bármely pontja könnyen elérhető Monorról.

Amennyiben felkeltettem érdeklődésed keress nyugodtan, és gyere, nézd meg velem az ingatlant!

Hitel ügyintézés, eladás és vétel teljes körű ügyintézése, ingyenes tanácsadás, értékbecslés, megbízható ügyvédi háttér biztosítása.

Referencia szám: HZ084376-ZE

Hirdetés feltöltve: 2026. 03. 24. Utoljára módosítva: 2026. 04. 27.

4 szobás ikerházak ára Monoron

Ebből az összehasonlításból megtudhatod, hogyan viszonyul a lakás ára a környékbeli ikerházak átlagos árához. Ez nem azt jelenti, hogy ennyivel olcsóbb vagy drágább, mint amennyit a lakás ér, hanem hogy ennyivel tér el a környékbeli átlagtól.

Ennek a m² ára
Monor m² ár
1053 e Ft
1057 e Ft 0%
Ennek az ára
Monor átlagár
80 M Ft m Ft
89.1 m Ft 10%

Az ingatlan elhelyezkedése

Cím: Monor

Eladó ikerházak a környékről

Monor
Eladó ikerház

Monor

107 M Ft
5 szoba
107 m²
Vác
Eladó ikerház

Vác

96.7 M Ft
4 + 1 szoba
126 m²
Monor
Eladó ikerház

Monor

81.8 M Ft
4 szoba
83 m²
Monor
Eladó ikerház

Monor

83.9 M Ft
4 szoba
81 m²
Monor
Eladó ikerház

Monor

89.9 M Ft
4 szoba
80 m²
Monor
Eladó ikerház

Monor

83.9 M Ft
4 szoba
81 m²
Monor
Eladó ikerház

Monor

89.9 M Ft
3 szoba
80 m²
Monor
Eladó ikerház

Monor

107 M Ft
5 szoba
107 m²
Herceghalom
Eladó ikerház

Herceghalom

99 M Ft
4 szoba
106 m²
Kiskunlacháza
Eladó ikerház

Kiskunlacháza

44.9 M Ft
2 szoba
39 m²
Monor
Eladó ikerház

Monor

83.9 M Ft
4 szoba
81 m²
Vácrátót
Eladó ikerház

Vácrátót

94.9 M Ft
2 + 3 szoba
108 m²
Pécel, Pécel - kertváros
Eladó ikerház

Pécel

127 M Ft
4 szoba
125 m²
Pécel
Eladó ikerház

Pécel

369 M Ft
11 szoba
430 m²
Pécel
Eladó ikerház

Pécel

149.9 M Ft
5 szoba
306 m²
Monor
Eladó ikerház

Monor

89.9 M Ft
4 szoba
80 m²
Nagytarcsa
Eladó ikerház

Nagytarcsa

119.9 M Ft
4 szoba
103 m²
Hernád
Eladó ikerház

Hernád

41.3 M Ft
3 szoba
68 m²
Mogyoród
Eladó ikerház

Mogyoród

129 M Ft
5 szoba
123 m²
Diósd
Eladó ikerház

Diósd

213.46 M Ft
5 szoba
186 m²
Szentendre
Eladó ikerház

Szentendre

718 M Ft
10 + 2 szoba
578 m²
Herceghalom
Eladó ikerház

Herceghalom

148 M Ft
5 szoba
134 m²
Monor
Eladó ikerház

Monor

107 M Ft
5 szoba
107 m²
Monor
Eladó ikerház

Monor

89.9 M Ft
4 szoba
80 m²

Falusi CSOK ingatlanok

Hosszúhetény, Petőfi Sándor utca 10
Eladó családi ház

Hosszúhetény

20.65 M Ft
4 + 2 szoba
133 m²
Szűr
Eladó családi ház

Szűr

12 M Ft
3 szoba
68 m²
Balatonszárszó
Eladó családi ház

Balatonszárszó

178 M Ft
6 szoba
260 m²
Öreglak
Eladó családi ház

Öreglak

110 M Ft
8 szoba
205 m²
Izsófalva
Eladó családi ház

Izsófalva

22.9 M Ft
3 szoba
105 m²
Elek
Eladó családi ház

Elek

18 M Ft
4 szoba
180 m²
Gádoros
Eladó családi ház

Gádoros

25.5 M Ft
4 szoba
140 m²
Szigetújfalu
Eladó családi ház

Szigetújfalu

71.65 M Ft
2 + 1 szoba
81 m²