Metrodom

Eladó ikerház
Monor

+ 4 kép 1/7
89 900 000 Ft89.9 M Ft 1 123 750 Ft/m2
3 szoba
80 m2
építés éve:2025

Részletes adatok

Telekméret: 350 m2
Fűtés: Egyéb
Energetikai besorolás: Nem adta meg a hirdető

Az OTP Bank lakáshitel ajánlataFizetett hirdetés

+36 30 674
Kozák Andor
referens

Érdekel az OTP Bank kedvezményes lakáshitel ajánlata? *

* A kérdésre „Igen” válasz bejelölése esetén, az „Üzenet küldése” gombra kattintva kijelentem, hogy az OTP Bank Nyrt. Adatkezelési tájékoztatójának tartalmát megismertem és tudomásul vettem.

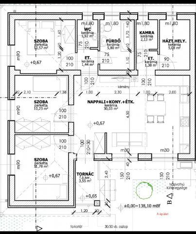
Eladó ikerház leírása

Új építésű, energiatakarékos földszintes lakás eladó Monoron.

Monor egyik csendes, rendezett részén eladó egy 80,3 négyzetméteres, földszintes, új építésű lakás modern kivitelezésben. Az ingatlan az "A" épület utcafronti egysége, amely korszerű technológiával és magas minőségű anyagokkal épül.

A praktikus alaprajz három hálószobát, egy tágas nappali, étkező, konyha teret, fürdőszobát, külön WC-t, háztartási helyiséget, kamrát és előteret tartalmaz minden adott egy kényelmes, modern otthonhoz. Hideg-meleg burkolatok válaszhatóak 5000 Ft/négyzetméterig.

Műszaki tartalom:

Porotherm X-Therm 30 cm-es tégla + 10 cm grafitos hőszigetelés.

Háromrétegű, hőszigetelt nyílászárók.

Sötétszürke beton cserépfedés, fa födémszerkezet.

Korszerű víz-levegő hőszivattyús fűtés padlófűtéssel és radiátorokkal.

Inverteres klíma a nyári hűtéshez.

Teljes közművesítés, ideiglenes házi szennyvíztisztítóval (városi hálózatra való csatlakozás előkészítve).

A lakáshoz saját, burkolt gépkocsibeálló és rendezett, zöldfelületes kert tartozik.
A modern technológia, az alacsony rezsiköltség és a minőségi kivitelezés miatt az ingatlan hosszú távon értékálló befektetés, családok és befektetők számára egyaránt ideális választás.

További előnyök:

Teljes körű, díjmentes tanácsadás.

Hitelügyintézés helyben, gyorsan és egyszerűen.

Hirdetés feltöltve: 2025. 10. 12. Utoljára módosítva: 2025. 11. 19.

3 szobás ikerházak ára Monoron

Ebből az összehasonlításból megtudhatod, hogyan viszonyul a lakás ára a környékbeli ikerházak átlagos árához. Ez nem azt jelenti, hogy ennyivel olcsóbb vagy drágább, mint amennyit a lakás ér, hanem hogy ennyivel tér el a környékbeli átlagtól.

Ennek a m² ára
Monor m² ár
1124 e Ft
2996 e Ft 62%
Ennek az ára
Monor átlagár
89.9 M Ft m Ft
39.8 m Ft -126%

Az ingatlan elhelyezkedése

Cím: Monor

Eladó ikerházak a környékről

Eladó ikerház
Eladó ikerház

Tahitótfalu

88.9 M Ft
4 szoba
110 m2
Eladó ikerház
Eladó ikerház

Monor

95 M Ft
4 szoba
127 m2
Eladó ikerház
Eladó ikerház

Monor

95 M Ft
4 szoba
105 m2
Eladó ikerház
Eladó ikerház

Érd, Érdligeten található utca

64.9 M Ft
4 szoba
112 m2
Eladó ikerház
Eladó ikerház

Monor

38 M Ft
2 szoba
49 m2
Eladó ikerház
Eladó ikerház

Vác

175.356 M Ft
5 szoba
165 m2
Eladó ikerház
Eladó ikerház

Monor

89.9 M Ft
4 szoba
98 m2
Eladó ikerház
Eladó ikerház

Mogyoród, Fóti út

188 M Ft
6 szoba
182 m2
Eladó ikerház
Eladó ikerház

Veresegyház

145 M Ft
4 szoba
120 m2
Eladó ikerház
Eladó ikerház

Monor

95 M Ft
4 szoba
127 m2
Eladó ikerház
Eladó ikerház

Rád

100 M Ft
4 szoba
152 m2
Eladó ikerház
Eladó ikerház

Monor

95 M Ft
4 szoba
127 m2
Eladó ikerház
Eladó ikerház

Pécel

149.9 M Ft
5 szoba
306 m2
Eladó ikerház
Eladó ikerház

Solymár

150 M Ft
4 + 2 szoba
252 m2
Eladó ikerház
Eladó ikerház

Vác

94.5 M Ft
4 + 1 szoba
126 m2
Eladó ikerház
Eladó ikerház

Pécel, Pécel - kertváros

127 M Ft
4 szoba
125 m2
Eladó ikerház
Eladó ikerház

Szentendre

359 M Ft
5 szoba
289 m2
Eladó ikerház
Eladó ikerház

Diósd

213.46 M Ft
5 szoba
186 m2
Eladó ikerház
Eladó ikerház

Szentendre

179 M Ft
5 + 1 szoba
147 m2
Eladó ikerház
Eladó ikerház

Szentendre, Szentendre

398 M Ft
5 szoba
267 m2
Eladó ikerház
Eladó ikerház

Monor

71.9 M Ft
4 szoba
84 m2
Eladó ikerház
Eladó ikerház

Monor

95 M Ft
4 + 1 szoba
127 m2
Eladó ikerház
Eladó ikerház

Dunaharaszti

124.999 M Ft
4 szoba
105 m2
Eladó ikerház
Eladó ikerház

Monor

95 M Ft
4 szoba
105 m2

Falusi CSOK ingatlanok

Eladó téglalakás
Eladó téglalakás

Balatonszemes

125.2 M Ft
2 szoba
50 m2
Eladó családi ház
Eladó családi ház

Nagybörzsöny

79.9 M Ft
4 szoba
149 m2
Eladó családi ház
Eladó családi ház

Bábolna

90.3 M Ft
5 szoba
100 m2
Eladó családi ház
Eladó családi ház

Zengővárkony

35 M Ft
3 szoba
87 m2
Eladó családi ház
Eladó családi ház

Hernádnémeti

18.9 M Ft
2 szoba
62 m2
Eladó téglalakás
Eladó téglalakás

Balatonszemes

546 M Ft
4 szoba
136 m2
Eladó családi ház
Eladó családi ház

Tápióság

17 M Ft
1 szoba
44 m2
Eladó téglalakás
Eladó téglalakás

Vasvár

40.52 M Ft
2 szoba
59 m2