Astora Márvány8

Eladó ikerház
Monor

+ 3 kép 1/6
80 000 000 Ft80 M Ft 1 052 632 Ft/m2
4 szoba
76 m²
építés éve:2026

Részletes adatok

Telekméret: 282 m2
Fűtés: Egyéb
Energetikai besorolás: Nem adta meg a hirdető

Az OTP Bank lakáshitel ajánlataFizetett hirdetés

3624814317
Lénárd László
Duna House - Dunaharaszti

Érdekel az OTP Bank kedvezményes lakáshitel ajánlata? *

* A kérdésre „Igen” válasz bejelölése esetén, az „Üzenet küldése” gombra kattintva kijelentem, hogy az OTP Bank Nyrt. Adatkezelési tájékoztatójának tartalmát megismertem és tudomásul vettem.

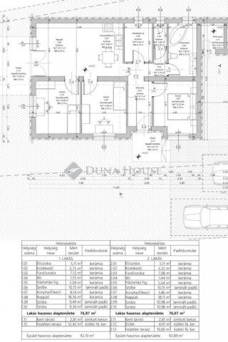
Eladó ikerház leírása

Monoron eladó, újépítésű, 3 szoba + nappalis, tároló kapcsolatos ikerházfél, hőszivattyús fűtéssel, kb 300 nm-es kerttel!

Belső nettó hasznos élhető tér 76 nm!

Várható átadás : 2026.10 hó

Önálló helyrajzi számmal fog rendelkezni, nem osztatlan közös tulajdon, társasház alapító lesz.

10 % önerővel szerződhető!

Helyiségeit tekintve nagyon jó elosztással rendelkezik, alábbiakban sorolom fel négyzetméterek megjelölésével:

- 3 önálló bejáratú szoba  (10.15 nm, 10.98 nm, 10.98 nm)

- teraszkapcsolatos nappali + konyha és étkező  (21.97 nm)

- előszoba (5.11 nm)

- közlekedő (3.32 nm)

- fürdőszoba (7.08 nm)

- wc (1.44 nm)

- háztartási helyiség (5 nm)

- kerti tároló, itt ér össze a két épület (2.81 nm)

- nyitott terasz (10 nm)

Műszaki leírás:

- Fischer hőszivattyús fűtés, padlófűtéssel

- burkolat meleg 8000 Ft / nm, hideg: 10 000 ft / nm

- 10 cm hőszigetelés grafitos

- 30 cm üveggyapot tető hőszigetelés

- vakolás: belső: alapvakolat + simítóvakolat

- lábazaton 8 cm XPS hőszigetelés

- nyílászárók: típus műanyag szerkezetek, fehér színben, 3 rtg.hőszig.üveggel

- festés: belsőben páraáteresztő falfestékkel, színezve igény szerint

- elektromos nagykapu

- utcafronton épített, igényes kerítés

- H tarifa
Az ár kulcsrakészen értendő!

A házakat önerőből építi! Az építő cég anyagilag biztos talpakon áll!

Monoron megtalálható:

Pékség, Cukrászda, Gyógyszertár, Posta, Vendéglő, Könyvtár, Zöldséges, Rossmann, Dm, Élelmiszer boltok, Okmányiroda, Bankok(Takarék,Otp, Budapest Bank), Piac, Bölcsöde, Óvoda, Iskola, Gimnázium,Uszoda, Elektromos autó töltő.

Monor a dél-kelet pesti agglomerációban, a dinamikusan fejlődő főváros és vonzáskörzete, a jó minőségű lakókörnyezetet egyre színvonalasabb közszolgáltatásokkal is biztosító, egyúttal a befektetők számára is vonzó település.

Monor olyan város, ahol jó élni, ahol jó befektetni.

Kiváló közlekedésének köszönhetően az ország bármely pontja könnyen elérhető Monorról.

Amennyiben felkeltettem érdeklődésed keress nyugodtan, és gyere, nézd meg velem az ingatlant!

Hitel ügyintézés, eladás és vétel teljes körű ügyintézése, ingyenes tanácsadás, értékbecslés, megbízható ügyvédi háttér biztosítása.

Hirdetés feltöltve: 2026. 03. 20. Utoljára módosítva: 2026. 04. 01.

4 szobás ikerházak ára Monoron

Ebből az összehasonlításból megtudhatod, hogyan viszonyul a lakás ára a környékbeli ikerházak átlagos árához. Ez nem azt jelenti, hogy ennyivel olcsóbb vagy drágább, mint amennyit a lakás ér, hanem hogy ennyivel tér el a környékbeli átlagtól.

Ennek a m² ára
Monor m² ár
1053 e Ft
1054 e Ft 0%
Ennek az ára
Monor átlagár
80 M Ft m Ft
88.2 m Ft 9%

Az ingatlan elhelyezkedése

Cím: Monor

Eladó ikerházak a környékről

Monor
Eladó ikerház

Monor

82 M Ft
4 szoba
81 m²
Monor
Eladó ikerház

Monor

81.8 M Ft
4 szoba
83 m²
Monor
Eladó ikerház

Monor

107 M Ft
5 szoba
107 m²
Kiskunlacháza
Eladó ikerház

Kiskunlacháza

44.9 M Ft
2 szoba
39 m²
Monor
Eladó ikerház

Monor

82 M Ft
4 szoba
81 m²
Monor
Eladó ikerház

Monor

107 M Ft
5 szoba
107 m²
Mogyoród
Eladó ikerház

Mogyoród

135 M Ft
5 szoba
137 m²
Herceghalom
Eladó ikerház

Herceghalom

148 M Ft
5 szoba
134 m²
Vác
Eladó ikerház

Vác

99.7 M Ft
4 + 1 szoba
129 m²
Vác
Eladó ikerház

Vác

96.7 M Ft
4 + 1 szoba
126 m²
Érd
Eladó ikerház

Érd

177.7 M Ft
7 szoba
181 m²
Monor
Eladó ikerház

Monor

82 M Ft
4 szoba
81 m²
Vácrátót
Eladó ikerház

Vácrátót

94.9 M Ft
2 + 3 szoba
108 m²
Mogyoród
Eladó ikerház

Mogyoród

129 M Ft
5 szoba
123 m²
Szentendre
Eladó ikerház

Szentendre

718 M Ft
10 + 2 szoba
578 m²
Monor
Eladó ikerház

Monor

65.99 M Ft
3 szoba
50 m²
Monor
Eladó ikerház

Monor

82 M Ft
4 szoba
81 m²
Monor
Eladó ikerház

Monor

82 M Ft
4 szoba
81 m²
Monor
Eladó ikerház

Monor

89.9 M Ft
4 szoba
80 m²
Budakalász
Eladó ikerház

Budakalász

159 M Ft
6 szoba
140 m²
Monor
Eladó ikerház

Monor

89.9 M Ft
4 szoba
80 m²
Dunakeszi
Eladó ikerház

Dunakeszi

178 M Ft
6 szoba
140 m²
Nagytarcsa
Eladó ikerház

Nagytarcsa

119.9 M Ft
4 szoba
103 m²
Monor
Eladó ikerház

Monor

82 M Ft
4 szoba
81 m²

Falusi CSOK ingatlanok

Nagyszénás
Eladó családi ház

Nagyszénás

14 M Ft
3 szoba
81 m²
Bag
Eladó családi ház

Bag

16.9 M Ft
6 szoba
160 m²
Balatonfenyves
Eladó családi ház

Balatonfenyves

179.9 M Ft
5 szoba
210 m²
Törtel
Eladó családi ház

Törtel

42 M Ft
3 szoba
98 m²
Badacsonytomaj
Eladó családi ház

Badacsonytomaj

285 M Ft
4 szoba
230 m²
Újlengyel
Eladó családi ház

Újlengyel

110 M Ft
4 szoba
121 m²
Hosszúhetény, Petőfi Sándor utca 10
Eladó családi ház

Hosszúhetény

20.65 M Ft
4 + 2 szoba
133 m²
Nagykarácsony
Eladó családi ház

Nagykarácsony

34.9 M Ft
3 szoba
112 m²