Avico Greentop

Eladó családi ház
Törtel

Figyelem!

Ez az ingatlan a 2019.07.01-től induló falusi CSOK által támogatott településen található

+ 12 kép 1/15
42 000 000 Ft42 M Ft 428 571 Ft/m2
3 szoba
98 m²
építés éve:1992

Részletes adatok

Állapot: Átlagos
Telekméret: 1353 m2
Fűtés: Egyéb
Parkolás: Garázs
Energetikai besorolás: Nem adta meg a hirdető
Zenga Premier

Friss hirdetések, amiket nem találsz meg más ingatlankereső portálon.

Fedezd fel elsőként a Zenga Premier címkés eladó ingatlanokat!

További részletek a zenga.hu-n

Az OTP Bank lakáshitel ajánlataFizetett hirdetés

+36 70 358
Jancsovics-Andó Bernadett
referens

Érdekel az OTP Bank kedvezményes lakáshitel ajánlata? *

* A kérdésre „Igen” válasz bejelölése esetén, az „Üzenet küldése” gombra kattintva kijelentem, hogy az OTP Bank Nyrt. Adatkezelési tájékoztatójának tartalmát megismertem és tudomásul vettem.

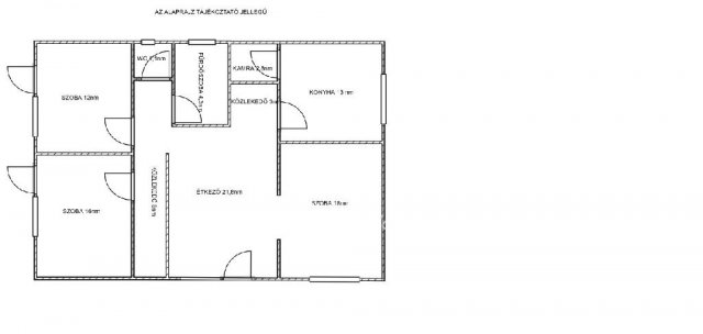
Eladó családi ház leírása

Pest vármegyében, Törtelen eladó egy 98 nm-es családi ház, amely kiváló választás lehet nagycsaládosoknak, bővítésben gondolkodóknak vagy akár vállalkozás céljára is! Az ingatlan jelenleg 3 szobával rendelkezik, de a beépíthető tetőtérnek köszönhetően további 2?3 szoba is könnyedén kialakítható, így az otthon a család igényeihez igazítható. A ház elrendezése praktikus: 3 szoba, nagy étkező, konyha kamrával, fürdőszoba és külön WC. A konyhabútor néhány éve készült, így az már korszerű és esztétikus. Az ingatlan alatt található egy kb. 50 nm-es pince, amely korábban presszóként működött, így vállalkozásra, műhelynek, üzletnek vagy tárolásra is kiváló lehetőséget kínál. A kert igazi különlegesség: barack, szilva, meggy, alma, dió és cseresznye is megterem. A közelben megtalálható: bölcsöde, óvoda, iskola és boltok. Cegléd, Kecskemét és Szolnok könnyen megközelíthető. Ez az ingatlan ideális választás mindazoknak, akik értéket látnak a bővíthetőségben és a jövőbeni lehetőségekben. A vásárlás finanszírozásában az OTP kedvezőbb kamatozású hitelkonstrukcióival és egyéb banki termékek kínálatával tudunk segíteni, díjmentesen, sorban állás nélkül! Az adásvételi szerződés lebonyolításához korrekt ügyvédi közreműködést tudunk ajánlani. Amennyiben felkeltettem érdeklődését, hívjon bizalommal!

Hirdetés feltöltve: 2026. 04. 15. Utoljára módosítva: 2026. 04. 17.

3 szobás családi házak ára Törtelen

Ebből az összehasonlításból megtudhatod, hogyan viszonyul a lakás ára a környékbeli családi házak átlagos árához. Ez nem azt jelenti, hogy ennyivel olcsóbb vagy drágább, mint amennyit a lakás ér, hanem hogy ennyivel tér el a környékbeli átlagtól.

Ennek a m² ára
Törtel m² ár
429 e Ft
476 e Ft 10%
Ennek az ára
Törtel átlagár
42 M Ft m Ft
36.6 m Ft -15%

Az ingatlan elhelyezkedése

Cím: Törtel

Eladó családi házak a környékről

Kerepes
Eladó családi ház

Kerepes

81.99 M Ft
5 szoba
102 m²
Törtel
Eladó családi ház

Törtel

70.5 M Ft
3 szoba
103 m²
Budakeszi, Makkosmária
Eladó családi ház

Budakeszi

100 M Ft
1 szoba
10 m²
Tápiószele
Eladó családi ház

Tápiószele

18.9 M Ft
4 szoba
68 m²
Törtel
Eladó családi ház

Törtel

35.9 M Ft
5 szoba
150 m²
Budakeszi
Eladó családi ház

Budakeszi

130 M Ft
5 szoba
30 m²
Pécel, Reményik Sándor utca
Eladó családi ház

Pécel

296 M Ft
6 szoba
396 m²
Tápiószele
Eladó családi ház

Tápiószele

32.9 M Ft
4 szoba
200 m²
Törtel
Eladó családi ház

Törtel

16.5 M Ft
2 szoba
46 m²
Tápiószőlős
Eladó családi ház

Tápiószőlős

34.9 M Ft
5 szoba
210 m²
Törtel
Eladó családi ház

Törtel

24.9 M Ft
2 szoba
55 m²
Törtel
Eladó családi ház

Törtel

44.9 M Ft
2 szoba
80 m²
Őrbottyán
Eladó családi ház

Őrbottyán

154 M Ft
4 + 1 szoba
115 m²
Törtel, Kőrösi út 101
Eladó családi ház

Törtel

22.21 M Ft
2 szoba
117 m²
Törtel, Nincs utca
Eladó családi ház

Törtel

13.8 M Ft
4 + 1 szoba
134 m²
Tápiószentmárton
Eladó családi ház

Tápiószentmárton

48 M Ft
5 szoba
180 m²
Törtel
Eladó családi ház

Törtel

28.5 M Ft
5 szoba
175 m²
Törtel
Eladó családi ház

Törtel

28.5 M Ft
5 szoba
175 m²
Tápiószentmárton
Eladó családi ház

Tápiószentmárton

7.9 M Ft
2 + 1 szoba
86 m²
Budaörs
Eladó családi ház

Budaörs

400 M Ft
12 szoba
583 m²
Érd, Érdliget - Kutyavár, Érd-liget
Eladó családi ház

Érd

230 M Ft
7 szoba
280 m²
Dunakeszi
Eladó családi ház

Dunakeszi

250 M Ft
4 szoba
180 m²
Törtel
Eladó családi ház

Törtel

32 M Ft
2 szoba
67 m²
Tápiószele
Eladó családi ház

Tápiószele

37.9 M Ft
4 szoba
141 m²

Falusi CSOK ingatlanok

Zsámbok
Eladó családi ház

Zsámbok

30 M Ft
2 szoba
80 m²
Kemeneshőgyész
Eladó családi ház

Kemeneshőgyész

8 M Ft
2 szoba
60 m²
Vokány
Eladó családi ház

Vokány

30 M Ft
4 szoba
100 m²
Marcalgergelyi
Eladó családi ház

Marcalgergelyi

31 M Ft
2 + 1 szoba
120 m²
Pálfa
Eladó családi ház

Pálfa

26.99 M Ft
3 szoba
90 m²
Csót
Eladó családi ház

Csót

39.5 M Ft
4 szoba
123 m²
Szentmártonkáta
Eladó családi ház

Szentmártonkáta

95 M Ft
5 + 1 szoba
152 m²
Nyáregyháza
Eladó családi ház

Nyáregyháza

15.9 M Ft
2 szoba
39 m²

Falusi CSOK ingatlanok

Bodolyabér, Zrínyi utca
Eladó családi ház

Bodolyabér

24.9 M Ft
5 szoba
125 m²
Tápiószőlős
Eladó családi ház

Tápiószőlős

9.5 M Ft
2 szoba
46 m²
Isztimér
Eladó családi ház

Isztimér

29.5 M Ft
3 szoba
83 m²
Káloz
Eladó családi ház

Káloz

24.5 M Ft
4 szoba
83 m²
Badacsonytördemic
Eladó családi ház

Badacsonytördemic

90 M Ft
3 szoba
130 m²
Drávaszabolcs
Eladó családi ház

Drávaszabolcs

29 M Ft
4 szoba
90 m²
Villány
Eladó családi ház

Villány

31 M Ft
1 szoba
35 m²
Szabadbattyán
Eladó családi ház

Szabadbattyán

147.99 M Ft
5 szoba
255 m²