BAM Living

Eladó ikerház
Kecskemét

+ 1 kép 1/4
83 900 000 Ft83.9 M Ft 921 978 Ft/m2
4 szoba
91 m²
építés éve:2026

Részletes adatok

Telekméret: 360 m2
Fűtés: Gázkazán
Energetikai besorolás: Nem adta meg a hirdető

Az OTP Bank lakáshitel ajánlataFizetett hirdetés

+36 70 660
Rafael László
HOUSE36 Ingatlanbázis Kft.

Érdekel az OTP Bank kedvezményes lakáshitel ajánlata? *

* A kérdésre „Igen” válasz bejelölése esetén, az „Üzenet küldése” gombra kattintva kijelentem, hogy az OTP Bank Nyrt. Adatkezelési tájékoztatójának tartalmát megismertem és tudomásul vettem.

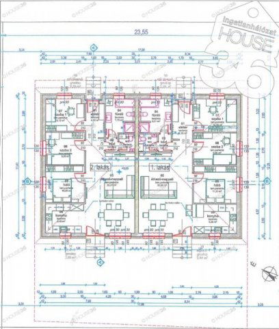
Eladó ikerház leírása

Új építésű 90 m2 es, nappali + 3 szobás ikerház eladó Kecskeméten!

Jellemzői:

2026. márciusi átadás
nappali + 3 szoba
3%-os hitelre 10% önerővel megvásárolható
90 m2
téglaépítés
bioderítő
2 db klíma
gáz - cirkó fűtés BAXI kazánnal, padlófűtés
360 m2 telek
burkolat választható
15 cm-es szigetelés, 30 cm födémszigetelés



A tulajdonos kérésére az ingatlan bemutatása egy személyes konzultáció után történik, ahol részletes tájékoztatást kaphat az ingatlan paramétereiről és egyéb kényelmi szolgáltatásairól !Figyelem az adatlap megbízónktól kapott adatok alapján készült, pontosságáért felelősséget nem tudunk vállalni!
Az iroda legfrissebb, aktuális kínálatát a HOUSE36 saját weboldalán találja!

Hirdetés feltöltve: 2025. 12. 25. Utoljára módosítva: 2026. 03. 12.

4 szobás ikerházak ára Kecskeméten

Ebből az összehasonlításból megtudhatod, hogyan viszonyul a lakás ára a környékbeli ikerházak átlagos árához. Ez nem azt jelenti, hogy ennyivel olcsóbb vagy drágább, mint amennyit a lakás ér, hanem hogy ennyivel tér el a környékbeli átlagtól.

Ennek a m² ára
Kecskemét m² ár
922 e Ft
927 e Ft 1%
Ennek az ára
Kecskemét átlagár
83.9 M Ft m Ft
96.9 m Ft 13%

Az ingatlan elhelyezkedése

Cím: Kecskemét

Eladó ikerházak a környékről

Kecskemét
Eladó ikerház

Kecskemét

98 M Ft
4 szoba
110 m²
Kecskemét
Eladó ikerház

Kecskemét

122.5 M Ft
4 szoba
155 m²
Kecskemét
Eladó ikerház

Kecskemét

122.5 M Ft
4 szoba
155 m²
Kecskemét, Gerlice utca 24
Eladó ikerház

Kecskemét

152 M Ft
4 szoba
122 m²
Kecskemét, Szent László város, Nagyváradi utca
Eladó ikerház

Kecskemét

28.7 M Ft
3 szoba
70 m²
Kecskemét, Bethlen-város, Szarvas utca
Eladó ikerház

Kecskemét

98 M Ft
4 szoba
110 m²
Kecskemét, Mária-város, Szélmalom utca
Eladó ikerház

Kecskemét

109 M Ft
4 szoba
102 m²
Kecskemét
Eladó ikerház

Kecskemét

89.9 M Ft
530 m²
98 m²
Kecskemét
Eladó ikerház

Kecskemét

98 M Ft
4 szoba
110 m²
Kecskemét
Eladó ikerház

Kecskemét

111.5 M Ft
5 szoba
171 m²
Kecskemét, Erzsébet-város, Sulyok utca
Eladó ikerház

Kecskemét

122.5 M Ft
4 szoba
155 m²
Kecskemét
Eladó ikerház

Kecskemét

110 M Ft
4 szoba
117 m²
Kecskemét, Bethlen-város, Szarvas utca
Eladó ikerház

Kecskemét

98 M Ft
4 szoba
110 m²
Baja
Eladó ikerház

Baja

90 M Ft
5 szoba
150 m²
Kecskemét
Eladó ikerház

Kecskemét

83.9 M Ft
4 szoba
151 m²
Kecskemét, Szent László város, Nagyváradi utca
Eladó ikerház

Kecskemét

28.7 M Ft
3 szoba
70 m²
Kiskunmajsa
Eladó ikerház

Kiskunmajsa

45 M Ft
3 szoba
113 m²
Kecskemét
Eladó ikerház

Kecskemét

111.5 M Ft
5 szoba
171 m²
Izsák
Eladó ikerház

Izsák

39.9 M Ft
300 m²
67 m²
Kecskemét
Eladó ikerház

Kecskemét

83.9 M Ft
4 szoba
151 m²
Kecskemét
Eladó ikerház

Kecskemét

83.9 M Ft
4 szoba
151 m²
Kecskemét
Eladó ikerház

Kecskemét

83.9 M Ft
4 szoba
151 m²
Kecskemét
Eladó ikerház

Kecskemét

122.5 M Ft
4 szoba
155 m²
Kecskemét
Eladó ikerház

Kecskemét

122.5 M Ft
4 szoba
155 m²

Falusi CSOK ingatlanok

Balatonszepezd
Eladó családi ház

Balatonszepezd

299 M Ft
5 szoba
220 m²
Iklad, Deák Ferenc utca
Eladó családi ház

Iklad

69.9 M Ft
3 szoba
86 m²
Újszilvás
Eladó családi ház

Újszilvás

25.9 M Ft
3 szoba
73 m²
Szentlőrinckáta
Eladó családi ház

Szentlőrinckáta

28.49 M Ft
6 szoba
204 m²
Csemő
Eladó családi ház

Csemő

61.9 M Ft
3 szoba
88 m²
Herend
Eladó családi ház

Herend

114.3 M Ft
5 szoba
108 m²
Zagyvarékas
Eladó családi ház

Zagyvarékas

14.5 M Ft
3 szoba
85 m²
Kisnémedi
Eladó családi ház

Kisnémedi

59.9 M Ft
5 szoba
250 m²