Eladó ikerház
Kecskemét
Részletes adatok
Az OTP Bank lakáshitel ajánlataFizetett hirdetés
Induló törlesztőrészlet
101 262 Ft /hóTörlesztőrészlet a 13. hónaptól
129 106 Ft /hóInduló törlesztőrészlet
135 016 Ft /hóTörlesztőrészlet a 13. hónaptól
172 142 Ft /hóA tájékoztatás nem teljes körű és nem minősül ajánlattételnek. Az OTP Évnyerő Lakáshitelei 1 éves türelmi idős kölcsönök, amellyel az első 12 hónapban alacsonyabb a havi törlesztőrészlet. A tőke törlesztését a 13. hónaptól kell megkezdeni.

Eladó ikerház leírása
VÁLASSZA A MINŐSÉGET! KECSKEMÉT VACSIKÖZBEN 2024_ES ÉPÍTÉSŰ CSALÁDI HÁZ, AZONNALI KÖLTÖZÉSSEL!
Eladásra kínálok kertvárosi környezetben, egy 533 m2-es telekre épült, 117 m2-es modern kivitelezésű, amerikai konyhás nappali + 3 szobás, energiatakarékos, padlófűtéses, klimatizált, teraszos családi házat, magas műszaki tartalommal.
Az ingatlant napfényes és tágas terek jellemzik. Elosztása kiváló, akár több gyermekes családok részére is, kényelmes otthont biztosít. A 39 m2-es amerikai konyhás nappali közvetlen teraszkapcsolatos, nagy méretű ablakai elektromos redőnnyel felszereltek. A 30 cm Ytong tégla főfalak, a 12 cm homlokzati szigetelés, a hőszigetelt Rehau műanyag nyílászárók garantálják a rendkívül kedvező fenntartást. A fűtésről gáz cirkó gondoskodik padlófűtés hőleadóval, a forró nyári napokon inverteres klímaberendezés biztosítja az ideális hőmérsékletet. A tágas utcafronti garázs elektromos garázskapuval ellátott.
Az ideális méretű 533 m2-es telek, tökéletes lehetőséget nyújt kikapcsolódásra, pihenésre az első tulajdonosainak hogy élvezhessék a kertes ház örömeit.
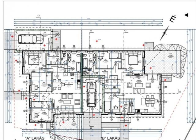
INGATLAN:
-telek: 533 m2
-nettó alapterület: 96.3 m2+ garázs 20.5
-bruttó: 140 m2
-Ytong tégla szerkezet
-térkövezett autóbeálló
-24.6 m2 terasz
HELYISÉGEK:
-Konyha+Étkező+Nappali : 39 m2
-Közlekedő : 6.7 m2
-Előtér : 3.6 m2
-Szoba 1 : 10.5 m2
-Szoba 2 : 11.1 m2
-Szoba 3 : 13.0 m2
-Fürdő : 6.2 m2
-WC : 1.5 m2
-Ht. helyiség : 4.6 m2
-Garázs : 20.5 m2
-Terasz : 24.6 m2
MŰSZAKI TARTALOM:
-Külső falazat 30-as Ytong tégla
-Válaszfalak 10-es Ytong tégla
- Könnyűszerkezetű födém, kerámia cserép
-12 cm homlokzati, 12 cm aljzat és 30 cm mennyezeti szigetelés
-Pasztell színű homlokzati nemesvakolat
-Lindab ereszcsatorna rendszer
-Rejtett redőnytokok, 3 rétegű hőszigetelt REHAU nyílászárók fehér színben
-Elektromos HÖRMANN garázskapu
-A energetikai besorolás
FINANSZÍROZÁS:
-CSOK+
Portfóliónkban több új építésű ingatlan található, tervezés alattiakról is tudunk információval szolgálni!
További információkért és megtekintéssel kapcsolatban várom hívását akár hétvégén is!
Adatbázisunkban további ingatlanokból választhat, hívjon bizalommal, hogy megtaláljuk a legmegfelelőbbet! Hitelre van szüksége? Teljes körű, bankfüggetlen, díjmentes hitelügyintézéssel állunk rendelkezésére. Ügyfeleinknek megbízható ügyvédi háttér, energetikai tanúsítvány készítése, ingyenes kiemelt ingatlan keresési szolgáltatás áll a rendelkezésre.
Ezúton tájékoztatjuk, hogy Ön, mint érdeklődő, a hirdetésben megjelölt telefonszám felhívásával hozzájárul személyes adatai – így különösen neve és telefonszáma -, a hirdetést feladó Ferszoltex Kft. általi - biztonságos és körültekintő - kezeléséhez, nyilvántartásához. Az Immo1 Adatvédelmi aloldalán találja a teljes körű tájékoztatást. immo1.hu/adatvedelem
Hirdetés feltöltve: 2025. 07. 07. Utoljára módosítva: 2025. 09. 17.
4 szobás ikerházak ára Kecskeméten
Ebből az összehasonlításból megtudhatod, hogyan viszonyul a lakás ára a környékbeli ikerházak átlagos árához. Ez nem azt jelenti, hogy ennyivel olcsóbb vagy drágább, mint amennyit a lakás ér, hanem hogy ennyivel tér el a környékbeli átlagtól.
Az ingatlan elhelyezkedése
Cím: Kecskemét