Stay Family Park

Eladó ikerház
Kecskemét

69 000 000 Ft69 M Ft 971 831 Ft/m2
4 szoba
71 m2
építés éve:2026

Részletes adatok

Telekméret: 350 m2
Fűtés: Gázkazán
Energetikai besorolás: Nem adta meg a hirdető

Az OTP Bank lakáshitel ajánlataFizetett hirdetés

+36 70 291
Lajos Zoltán
HOUSE36 Ingatlanbázis Kft.

Érdekel az OTP Bank kedvezményes lakáshitel ajánlata? *

* A kérdésre „Igen” válasz bejelölése esetén, az „Üzenet küldése” gombra kattintva kijelentem, hogy az OTP Bank Nyrt. Adatkezelési tájékoztatójának tartalmát megismertem és tudomásul vettem.

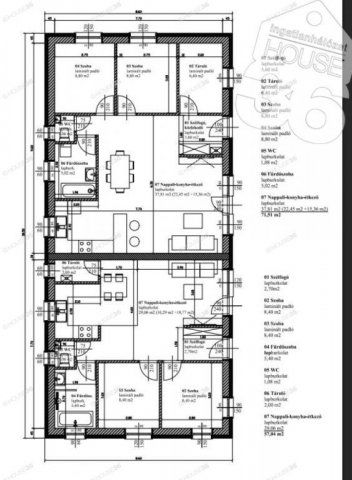
Eladó ikerház leírása

Kecskemét vonzáskörzetében Szabó Sándor Telepen, 2026 szeptemberi átadással kínáljuk megvételre, ikerház egyik felét, amely nappali + 2 szobás.

Jellemzői:

nettó 71,5 m2
ikerház belső része
nappali + 2 szoba
fürdő és WC külön
gáz cirkó​​, padlófűtés
klíma
tégla építés
választható burkolatok
START hitel igénybe vehető, 10% foglalóval
gardrób
terasz 9,4 m2


A tulajdonos kérésére az ingatlan bemutatása egy személyes konzultáció után történik, ahol részletes tájékoztatást kaphat az ingatlan paramétereiről és egyéb kényelmi szolgáltatásairól ! Figyelem az adatlap megbízónktól kapott adatok alapján készült, pontosságáért felelősséget nem tudunk vállalni!
Az iroda legfrissebb, aktuális kínálatát a HOUSE36 saját weboldalán találja!

Referencia szám: 3620729

Hirdetés feltöltve: 2025. 10. 30. Utoljára módosítva: 2025. 12. 25.

4 szobás ikerházak ára Kecskeméten

Ebből az összehasonlításból megtudhatod, hogyan viszonyul a lakás ára a környékbeli ikerházak átlagos árához. Ez nem azt jelenti, hogy ennyivel olcsóbb vagy drágább, mint amennyit a lakás ér, hanem hogy ennyivel tér el a környékbeli átlagtól.

Ennek a m² ára
Kecskemét m² ár
972 e Ft
880 e Ft -10%
Ennek az ára
Kecskemét átlagár
69 M Ft m Ft
90.3 m Ft 24%

Az ingatlan elhelyezkedése

Cím: Kecskemét

Eladó ikerházak a környékről

Eladó ikerház
Eladó ikerház

Kiskunhalas

55 M Ft
4 szoba
160 m2
Eladó ikerház
Eladó ikerház

Izsák

39.9 M Ft
300 m²
67 m2
Eladó ikerház
Eladó ikerház

Kecskemét, Mária-város, Szélmalom utca

109 M Ft
4 szoba
102 m2
Eladó ikerház
Eladó ikerház

Kecskemét

105 M Ft
4 szoba
120 m2
Eladó ikerház
Eladó ikerház

Baja

89.99 M Ft
5 szoba
150 m2
Eladó ikerház
Eladó ikerház

Kecskemét, Erzsébet-város, Sulyok utca

122.5 M Ft
4 szoba
155 m2
Eladó ikerház
Eladó ikerház

Kecskemét

49.99 M Ft
7 szoba
200 m2
Eladó ikerház
Eladó ikerház

Kecskemét

49.99 M Ft
7 szoba
200 m2
Eladó ikerház
Eladó ikerház

Baja

180 M Ft
4 szoba
300 m2
Eladó ikerház
Eladó ikerház

Kecskemét

89.9 M Ft
530 m²
98 m2
Eladó ikerház
Eladó ikerház

Kecskemét

118.5 M Ft
4 szoba
113 m2
Eladó ikerház
Eladó ikerház

Kiskunmajsa

45 M Ft
3 szoba
113 m2
Eladó ikerház
Eladó ikerház

Kecskemét

109.9 M Ft
6 szoba
170 m2
Eladó ikerház
Eladó ikerház

Kecskemét

85.9 M Ft
384 m²
94 m2
Eladó ikerház
Eladó ikerház

Kecskemét

83.9 M Ft
4 szoba
151 m2
Eladó ikerház
Eladó ikerház

Kecskemét

83.9 M Ft
4 szoba
151 m2
Eladó ikerház
Eladó ikerház

Kecskemét

85.9 M Ft
384 m²
94 m2
Eladó ikerház
Eladó ikerház

Lajosmizse

75 M Ft
5 szoba
111 m2
Eladó ikerház
Eladó ikerház

Kecskemét

87.9 M Ft
4 szoba
105 m2
Eladó ikerház
Eladó ikerház

Kecskemét

79.9 M Ft
4 szoba
124 m2
Eladó ikerház
Eladó ikerház

Kecskemét

85 M Ft
3 szoba
91 m2
Eladó ikerház
Eladó ikerház

Kecskemét

114.99 M Ft
7 szoba
200 m2
Eladó ikerház
Eladó ikerház

Kecskemét, Bethlen-város, Szarvas utca

70 M Ft
4 szoba
110 m2
Eladó ikerház
Eladó ikerház

Kecskemét

122.5 M Ft
4 szoba
155 m2

Falusi CSOK ingatlanok

Eladó családi ház
Eladó családi ház

Csokonyavisonta

22.9 M Ft
3 szoba
90 m2
Eladó családi ház
Eladó családi ház

Kenderes

149.9 M Ft
6 + 2 szoba
420 m2
Eladó családi ház
Eladó családi ház

Vasszécseny

20 M Ft
2 szoba
139 m2
Eladó családi ház
Eladó családi ház

Somogyaszaló

59.9 M Ft
3 szoba
180 m2
Eladó ikerház
Eladó ikerház

Alcsútdoboz, Külterület

37.5 M Ft
2 szoba
80 m2
Eladó családi ház
Eladó családi ház

Előszállás

69.9 M Ft
6 szoba
238 m2
Eladó családi ház
Eladó családi ház

Somogysárd

31 M Ft
3 szoba
68 m2
Eladó családi ház
Eladó családi ház

Petrivente, Kossuth Lajos utca

31.9 M Ft
3 szoba
127 m2